728x90
반응형
House With Four Roofs

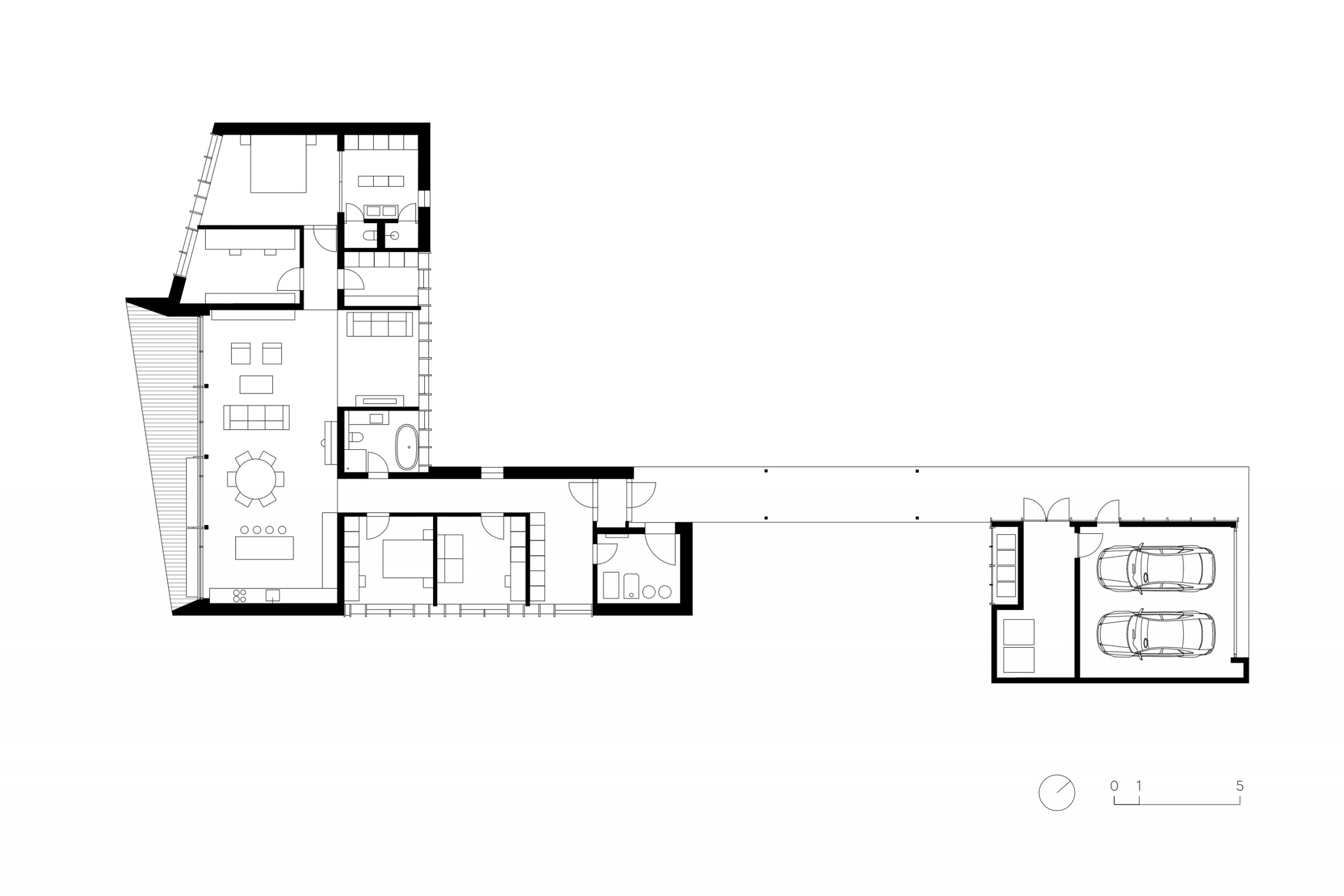
라트비아 리가에 지어진 이 주택은 L자 처럼 생긴 대지위에 지어진 집입니다.
사실 집을 짓기에는 좋은 형태의 대지는 아닙니다.
하지만 주택도 대지의 모양을 따라 독특하게 설계되었습니다.
이 집은 도로에서 집으로 들어가면서 좁고 긴 땅모양에서 넓은 땅으로 확장됩니다.
집으로 들어가는 것이 하나의 여행을 가는 것과 같은 느낌으로 설계되어
도로에서 차고를 통해 지붕이 있는 통로를 다라 현관에 들어서게 됩니다.
집에 들어서면 거실에서 가장 안쪽의 홈 오피스까지 들어가게됩니다.
4개의 건물 지붕이 다른 각도로 설정되어 독특한 모양을 갖추게 되었으며
용도마다 천장의 각도를 달리해주었습니다.
내부 인테리어는 화이트 톤을 중심으로 밝은 나무가 쓰인 깔끔한 인테리어입니다.

















Architects _ GAISS
Year _ 2019
Location _ Riga, Latvia
Photographs _ Reinis Hofmanis
728x90
반응형
'Space & Object (공간과 오브제)' 카테고리의 다른 글
| 도시 인근 숲속에 자리잡은 캔틸레버 하우스! (1) | 2021.08.09 |
|---|---|
| 바위속에 자리한 자연과 하나된 집! (0) | 2021.08.08 |
| 온실과 집이 하나로 결합된 주택! (0) | 2021.08.06 |
| 1960년대 스타일의 집에 대한 현대적 재해석! (0) | 2021.08.05 |
| 숲속으로 안내하는 이정표 같은 집! (1) | 2021.08.04 |