본문 바로가기
Space & Object (공간과 오브제)

다뜻한 느낌의 화이트 주택!

by 디디 (DD) 2021. 8. 13.
728x90
반응형

Nahsac House

Ⓒ TACO taller de arquitectura contextual

 

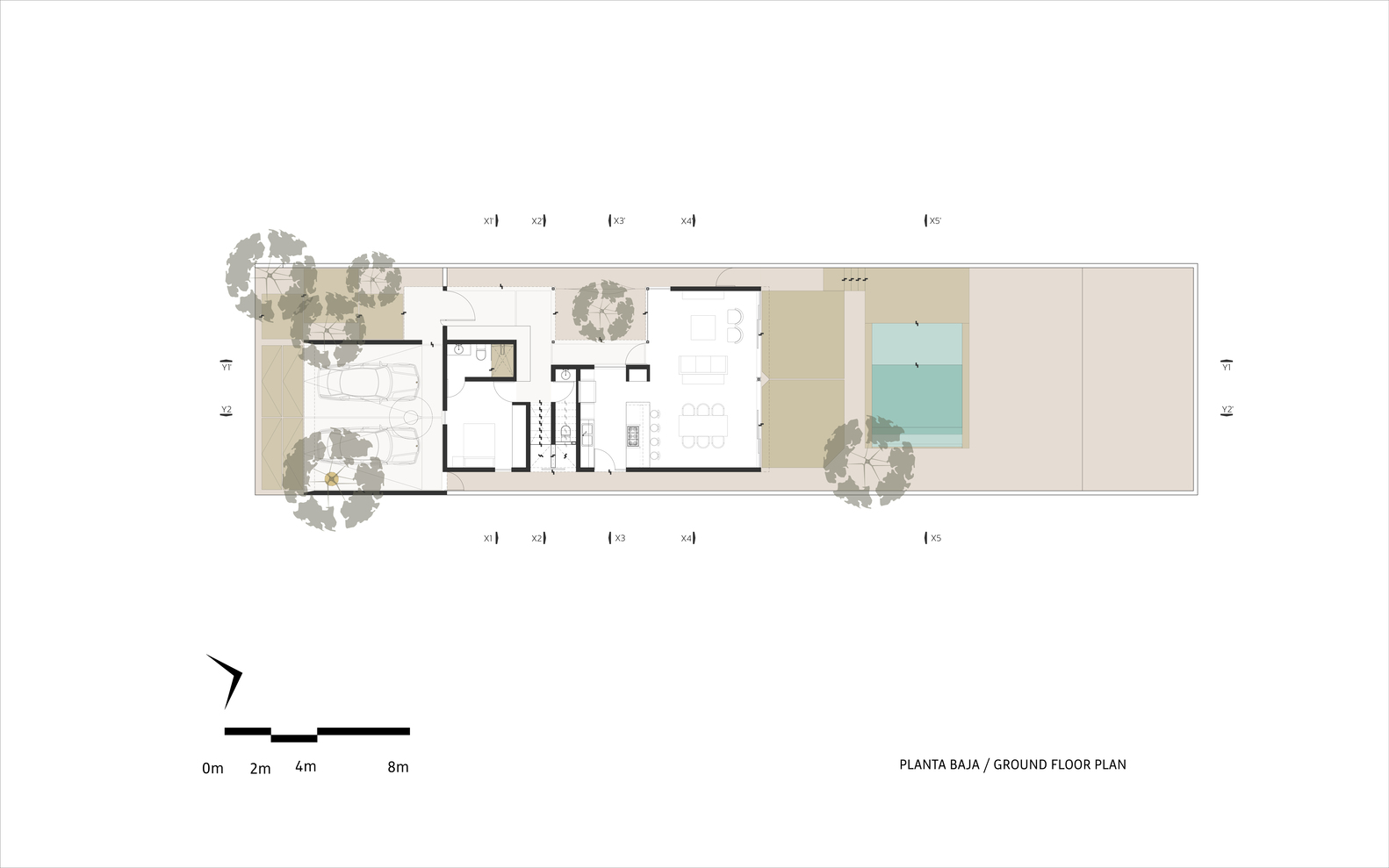
멕시코의 주거지역에 지어진 화이트 톤의 깔끔한 주택입니다.

도로쪽 정면은 프라이버시를 중시하여 개방감이 없지만

뒷쪽의 수영장과 정원이 있는 쪽으로 시원한 개방감을 가지고 있습니다.

내부 안뜰의 나무를 중심으로 ㄷ자 형태로 되어 있는 집은 안뜰이 중정 역할을 하여

채광도 확보하고 공기 순환에도 도움을 주고 있습니다.

집 외관은 화이트 톤이지만 포인트 색으로 노란색을 사용하고 내부에 인테리어에

중간톤의 나무와 주광색의 조명을 사용하여 따뜻한 느낌을 줍니다.

 

Ⓒ TACO taller de arquitectura contextual
Ⓒ TACO taller de arquitectura contextual
Ⓒ TACO taller de arquitectura contextual
Ⓒ TACO taller de arquitectura contextual
Ⓒ TACO taller de arquitectura contextual
Ⓒ TACO taller de arquitectura contextual
Ⓒ TACO taller de arquitectura contextual
Ⓒ TACO taller de arquitectura contextual
Ⓒ TACO taller de arquitectura contextual
Ⓒ TACO taller de arquitectura contextual
Ⓒ TACO taller de arquitectura contextual
Ⓒ TACO taller de arquitectura contextual
Ⓒ TACO taller de arquitectura contextual
Ⓒ TACO taller de arquitectura contextual
Ⓒ TACO taller de arquitectura contextual
Ⓒ TACO taller de arquitectura contextual
Ⓒ TACO taller de arquitectura contextual
Ⓒ TACO taller de arquitectura contextual
Ⓒ TACO taller de arquitectura contextual
Ⓒ TACO taller de arquitectura contextual
Ⓒ TACO taller de arquitectura contextual
Ⓒ TACO taller de arquitectura contextual
Ⓒ TACO taller de arquitectura contextual
Ⓒ TACO taller de arquitectura contextual
Ⓒ TACO taller de arquitectura contextual
Ⓒ TACO taller de arquitectura contextual
Ⓒ TACO taller de arquitectura contextual

 

Architects _ TACO taller de arquitectura contextual

Year _ 2021

Location _ Conkal, Mexico

Photographs _ Leo Espinosa

728x90
반응형