CHAHARGAH HOUSE

페르시아어로 4개의 장면을 뜻하는 이름을 가진 이란의 집입니다.
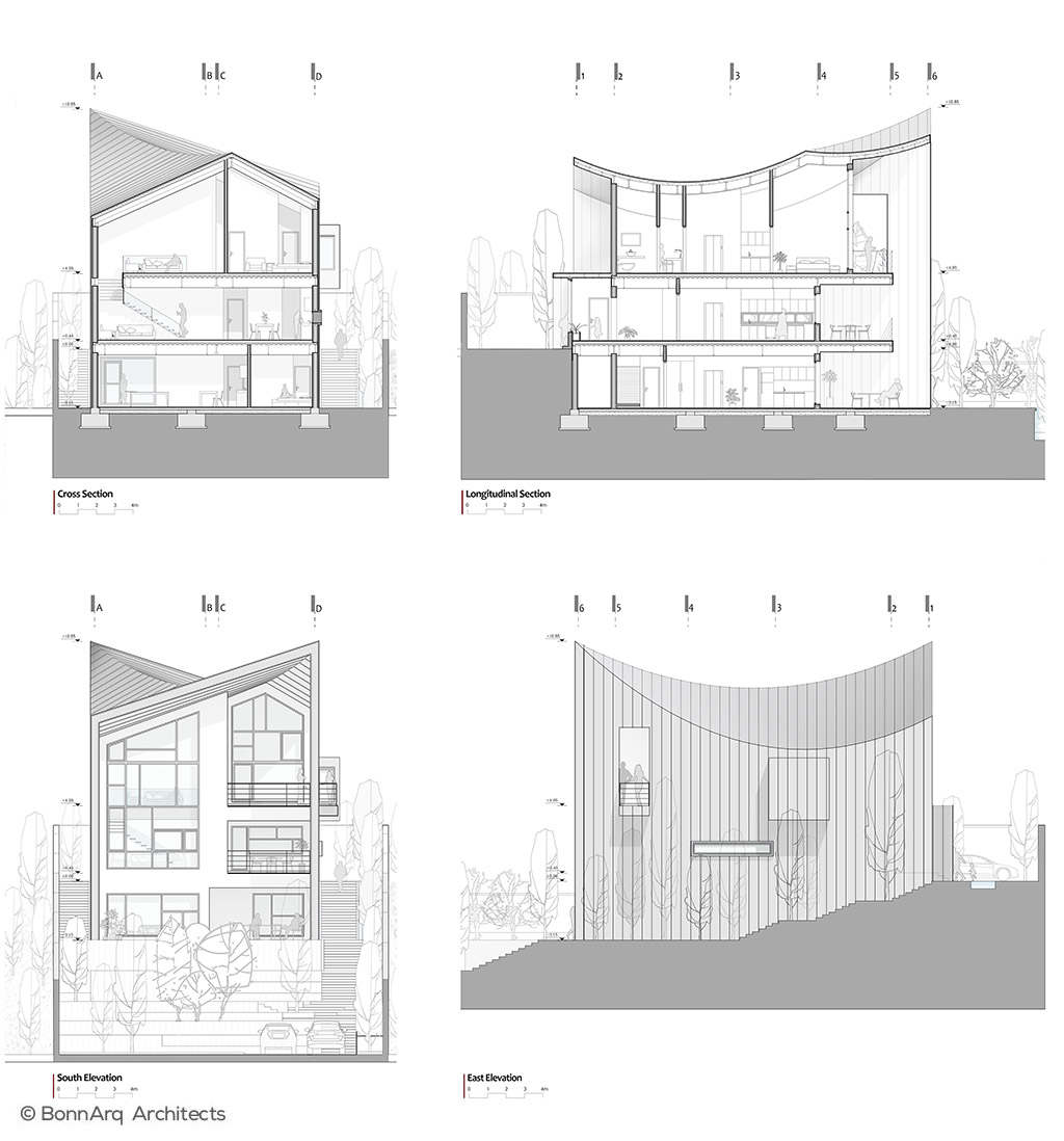
산기슭에 지어진 집은 겨울철 산악환경에 적합하도록 설계되었고 그 결과 동쪽으로는 창이 있지만
서쪽으로는 계절풍과 비로 보호되도록 일체의 창을 넣지 않았습니다.
이 집은 특히 지붕의 설계가 독특한데, 박공지붕 형태를 대각선으로 이동시켜 구부러지게 디자인 하였습니다.
때문에 남동쪽의 먼 풍경과 북쪽의 산들이 더 잘 보이게 되었습니다.
건축주의 요구로 두가지 측면에서 독립적으로 활동할 수 있도록 설계되었는데
하나는 정원과 연계된 1층으로 가족들의 여가생활과 스포츠 활동이 가능한 공간이고
또 다른 하나는 내부의 2, 3층 공간으로 휴식과 요리 식사가 가능한 일상생활 공간입니다.
남쪽으로는 창을 많이 배치한 것도 계절적 영향과 충분한 채광을 위한 선택입니다.
외관은 블랙톤으로 되어있고 내부는 반대로 화이트 톤으로 구성되어 있습니다.

































Architects _ BonnArq Architects
Year _ 2020
Location _ Damavand, Iran
Photographs _ M. Hassan Ettefagh
'Space & Object (공간과 오브제)' 카테고리의 다른 글
| 인더스트리얼 요소가 잘 구현된 영국 주택! (0) | 2021.09.09 |
|---|---|
| 감각적인 색감과 동양적인 요소가 가미된 아파트 인테리어 (1) | 2021.09.07 |
| 내력벽 철거로 개방감을 확보한 리모델링 (0) | 2021.09.04 |
| 스튜디오가 결합된 예술가의 집 (1) | 2021.09.03 |
| 자연 속 단순한 형태의 박공지붕 집! (0) | 2021.09.02 |