COLLINGWOOD

캐나다 밴쿠버의 전통 주거지역에 위치한 주택입니다.
비대칭적인 박공지북이 매력적인 이 집은 다양한 질감과 재료가
외부에 발현된 집입니다.
특히 실내 공간과 정원사이의 전환에 신경을 많이 쓴 건축물이라는 것이
건축사무소의 설명입니다.
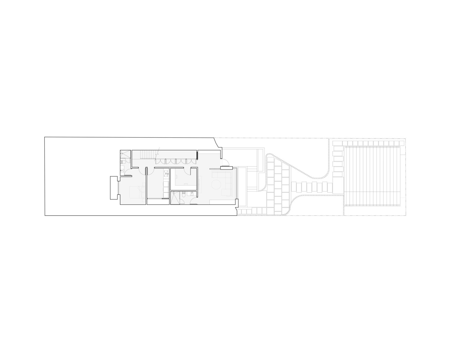
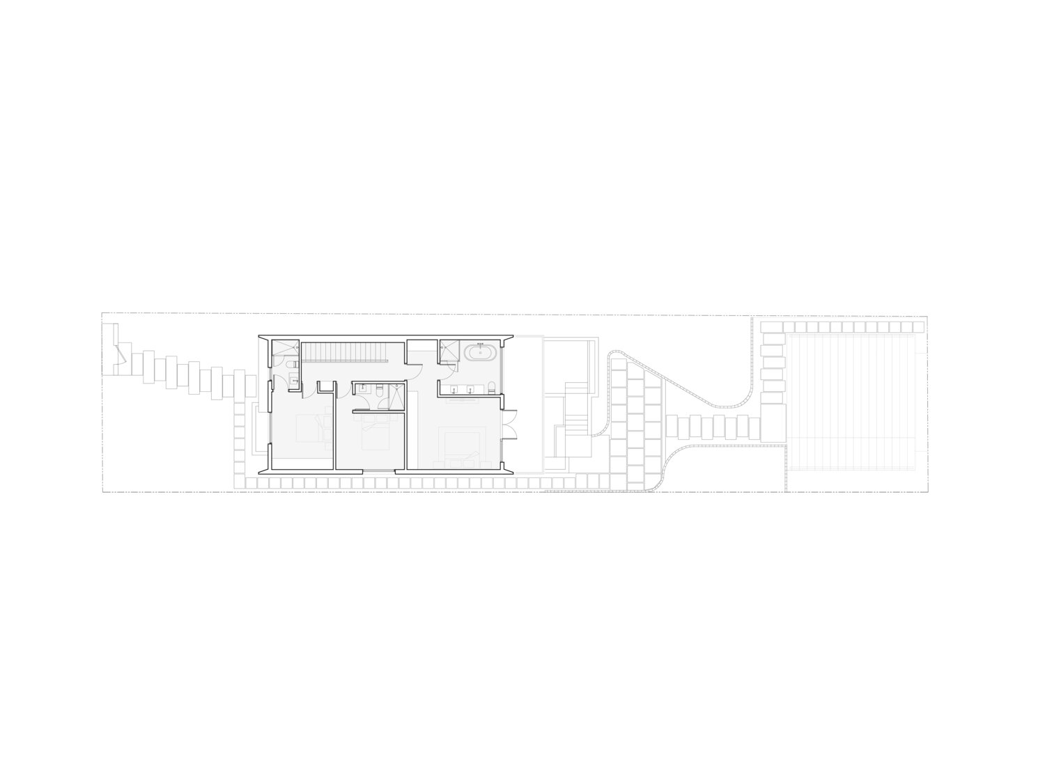
집의 내부와 외부가 전체적으로 밝은 톤으로 마감되었고 집의 외관 경계를
이루는 부분만 블랙톤으로 처리되어 집을 확실히 보여주고 있습니다.
내부도 화이트 톤과 그레이 벽면을 중심으로 나무 활용이 돋보이며
정원쪽에 큰 창들을 통해 밝고 채광이 좋은 집이 완성되었습니다.
특히 정원쪽의 창들과 방 그리고 욕실까지 창의 활용이 돋보이는 주택입니다.














Architects _ BLA Design Group / Campos studio
Year _ 2019
Location _Vancouver, Canada
Photographs _ andrew latreille
'Space & Object (공간과 오브제)' 카테고리의 다른 글
| 반은 땅에 묻힌 독특한 전원주택! (1) | 2021.09.16 |
|---|---|
| 어린시절 추억이 그대로 들어간 전원주택 (0) | 2021.09.15 |
| 북향의 악조건을 극복한 채광 좋은 집! (1) | 2021.09.13 |
| 열대 환경에 최적화 된 주택! (0) | 2021.09.10 |
| 인더스트리얼 요소가 잘 구현된 영국 주택! (0) | 2021.09.09 |