BANK BARN

버몬트의 푸른 잔디 위 언덕에 지어진 헛간 같이 생긴 집입니다.
이 집의 형태와 지어진 위치는 지역의 농업 건물들인 BANK BARN을 참고하여 지어졌습니다.
언덕의 안쪽으로 깊숙히 들어가서 자리한 위치적인 측면과 집의 기본적인 박공 형태 등은 모두 헛간을 참고 하였습니다.
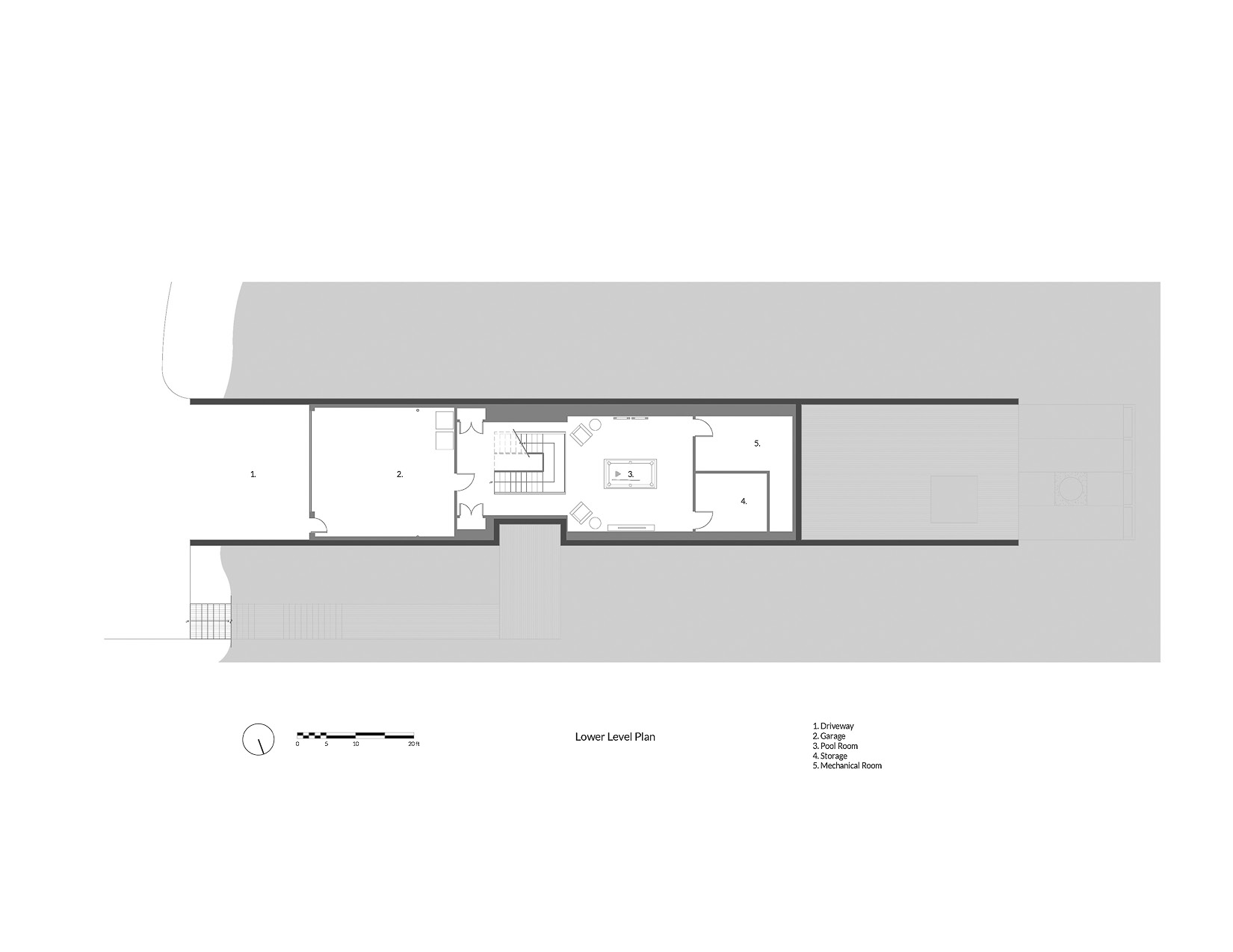
언덕 때문에 자연스럽게 1층이 땅에 묻힌 반지하 공간처럼 구성되었고 이 공간은 차고가 위치하고 있습니다.
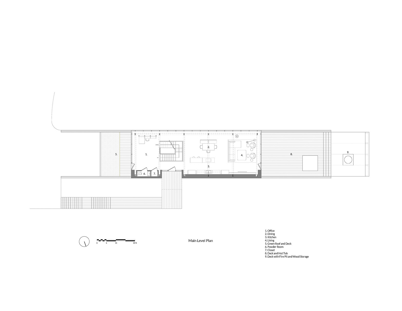
메인층인 2층은 공용 생활 공간으로 넓게 개방적인 형태를 띄고 있습니다.
개단 앞쪽에 작은 사무실을 비롯하여 거실과 주방이 자리합니다.
메인 공간은 특히 외부가 유리로 마감되어 마당으로 공간을 확장하고 자연 경관을 잘 볼 수 있게 설계되었습니다.
3층은 개인공간으로 침실과 욕실이 있습니다.
특히 2층에서 3층으로 올라가는 계단은 하나의 조형물은 연상시키며 멋스럽게 만들어졌습니다.
이 집은 여러 계산을 통해 패시브하우스에 준하는 열효율이 뛰어난 집입니다.
외관은 오래된 느낌이 드는 특수처리된 삼나무로 마감되었고
내부는 이와 상반되는 깨끗한 느낌의 화이트 톤으로 디자인 되었습니다.


















Architects _ Birdseye
Year _ 2019
Location _ Vermont, USA
Photographs _ Jim Westphalen
'Space & Object (공간과 오브제)' 카테고리의 다른 글
| 푸른 하늘과 푸른 바다가 돋보이는 화이트 하우스! (0) | 2021.09.25 |
|---|---|
| 인더스트리얼 컨셉이 잘 발현된 주택! (1) | 2021.09.24 |
| 수로변의 배를 연상시키는 독특한 집! (0) | 2021.09.21 |
| 자연과 물아일체를 강조한 에어컨 필요없는 집! (0) | 2021.09.19 |
| 삼면이 막힌 환경을 중정으로 극복한 집! (0) | 2021.09.18 |