본문 바로가기
Space & Object (공간과 오브제)

독서광을 위한 홈 인테리어!

by 디디 (DD) 2021. 11. 25.
728x90
반응형

A Home for Readers

Ⓒ ATOMAA

 

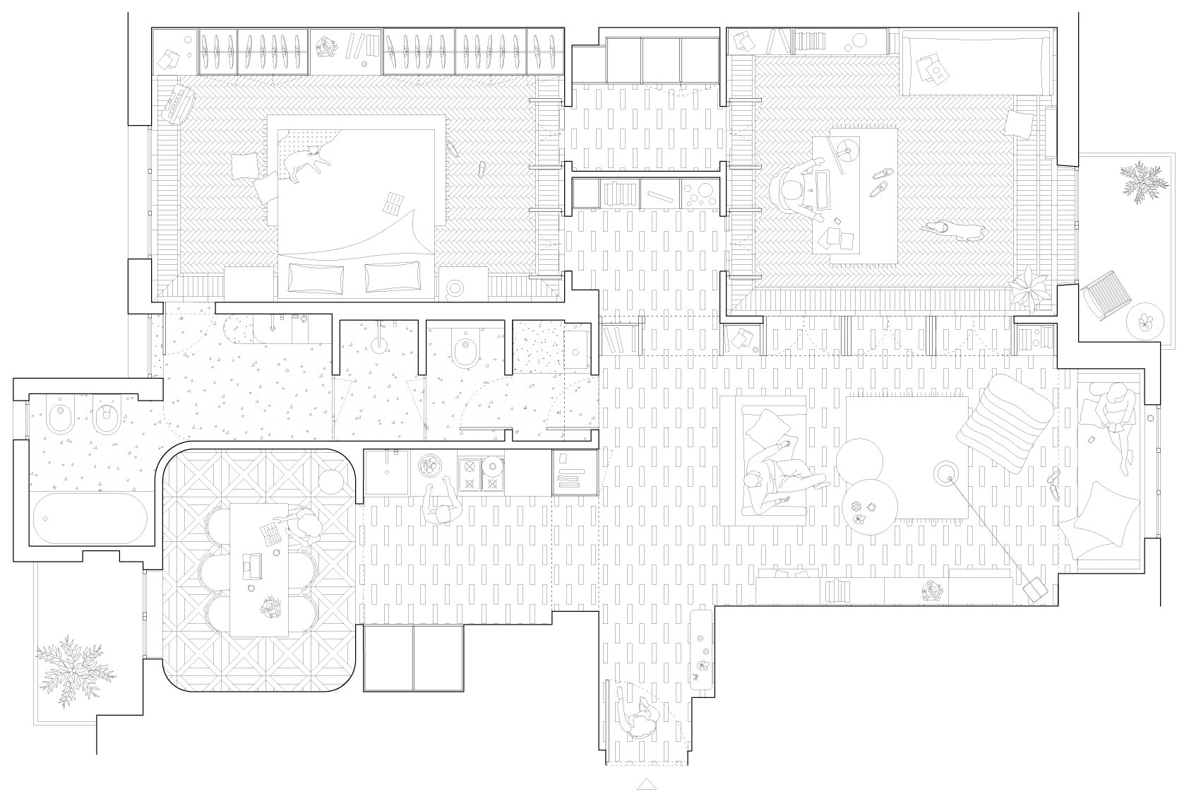
이탈리아 밀라노의 젊은 부부를 위한 아파트 인테리어입니다.

부부는 독서를 좋아하며 영화와 음악 디자인에도 관심이 많은 부부입니다.

구조적으로 많은 것을 변화시키지는 않았지만 부부의 취향을 중심으로 변화된 인테리어입니다.

하나의 큰 공간이었던 부엌 파트를 약간의 구분벽을 사용하여 오픈 된 식당을 만들어 분리시켜주었습니다.

거실 공간과 게스트 룸으로 사용가능한 서재는 하나의 공간 개념이며 문으로 분리가 가능하도록 하였습니다.

전체적으로 책장이 많은 것이 이집의 특징인데 서재와 거실은 테라조 바닥과 헤링본 나무 바닥으로 명확히 구분됩니다.

화이트 톤의 내부에 서재와 거실을 분리하는 분을 닫으면 노란 포인트 컬러가 돋보입니다.

서재와 침실 그리고 욕실에 걸쳐서 아치들이 보이는데 이는 집주인의 꿈을 간접적으로 표현한 이집의 핵심 디자인입니다.

아치와 함께 욕실은 이 집의 디자인의 중심입니다.

욕실을 부수적인 공간이 아닌 집에서 위한을 찾을 수 있는 세련된 공간으로 탈바꿈하였습니다.

그래서 색감 조합을 세련되면서도 섬세하게 배색하였고 아치도 적용하였습니다.

 

Ⓒ ATOMAA
Ⓒ ATOMAA
Ⓒ ATOMAA
Ⓒ ATOMAA
Ⓒ ATOMAA
Ⓒ ATOMAA
Ⓒ ATOMAA
Ⓒ ATOMAA
Ⓒ ATOMAA
Ⓒ ATOMAA
Ⓒ ATOMAA
Ⓒ ATOMAA
Ⓒ ATOMAA
Ⓒ ATOMAA

 

 

Architects _ ATOMAA 

Year _ 2020

Location _ Milan, Italy

Photographs _ Alberto Strada

 

 

 

728x90
반응형