728x90
반응형
Poisson Blanc

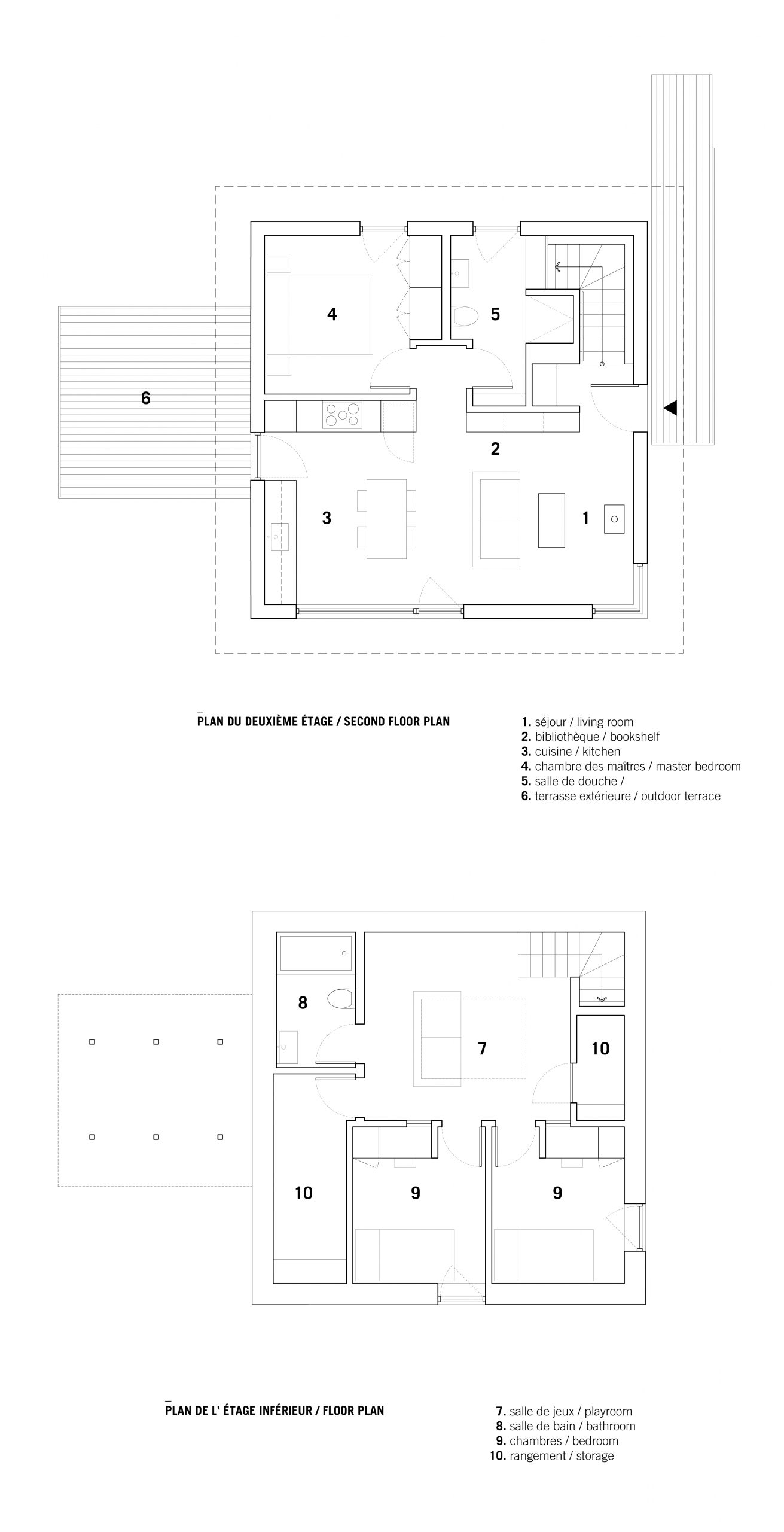
스위스 전통 가옥인 샬렛을 기본 컨셉으로 지어진 집입니다.
정사각형의 대지에 심플한 디자인으로 색톤 또한 화이트입니다.
하나의 원룸 형식으로 디자인 되었고 벽채위에 사각뿔 형태의 지붕이 얹혀져 있습니다.
내부에서 보면 꼭지점을 중심으로 이어진 틀들이 생선의 뼈를 연상한다고하여
집의 이름이 '하얀 물고기'로 지어졌습니다.
외부 뿐만아니라 내부도 화이트 톤으로 인테리어 되어있으며 회색 타일과
밝은 나무로 이루어져 따뜻하고 아늑한 느낌을 주고 있습니다.
전체적으로 집의 면적은 최소화하면서 콤팩트하게 공간을 구성하였고
색상과 디자인은 심플하고 가격 또한 저렴하게 만들어졌습니다.















Architects _ naturehumaine
Year _ 2019
Location _ Laurentides, Canada
Photographs _ Raphaël Thibodeau
728x90
반응형
'Space & Object (공간과 오브제)' 카테고리의 다른 글
| 3대가 살고 있는 앞, 뒤 반전 매력의 미니 아파트 (0) | 2021.07.29 |
|---|---|
| 모든 것이 갖춰진 별채의 변신! (0) | 2021.07.28 |
| 독특한 모양으로 특색있는 집! (0) | 2021.07.26 |
| 자연스럽게 스킵플로어 구조로 만들어진 집! (0) | 2021.07.25 |
| 건축가의 공간으로 재탄생한 집!!! (0) | 2021.07.24 |