728x90
반응형
ALLEY CAT

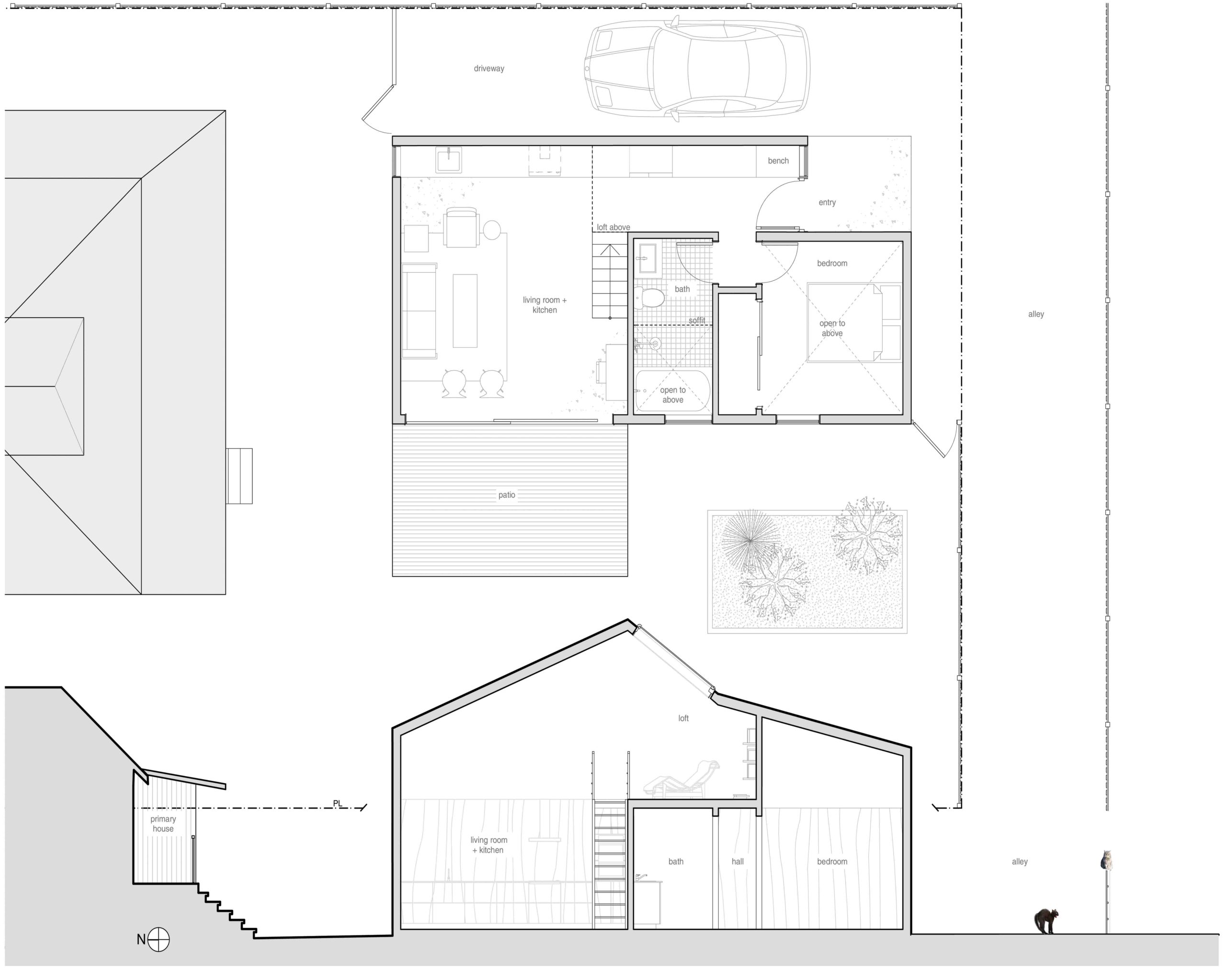
본채가 있는 주택에 지어진 별채 주택입니다.
별채지만 독립적인 생활이 가능하도록 지어진 집입니다.
고양이의 움추리고 있는 모양을 본뜬 외관이라 이름이 길고양이 입니다.
현재는 음악하는 친구들의 게스트 하우스나 가든파티 공간으로 사용중이지만
차후 여행을 많이 다니는 본인의 라이프 스타일에 따라 본채를 임대주고
자신은 이 별채에서 생활할 용도로 지어졌습니다.
외관은 회색 징크로 마무리 되었고 내부는 화이트 톤에 나무 합판으로 마감되어 따뜻한 느낌입니다.
천장 창을 비롯해 1층에 큰 통창을 통해 충분한 채광을 확보해 밝은 느낌의 집입니다.













Architects _ SHED
Location _ Seattle, USA
Photographs _ Mark Woods
728x90
반응형
'Space & Object (공간과 오브제)' 카테고리의 다른 글
| 경사지에 세워진 반듯한 주택! (1) | 2021.07.30 |
|---|---|
| 3대가 살고 있는 앞, 뒤 반전 매력의 미니 아파트 (0) | 2021.07.29 |
| 스위스 전통 가옥 샬레를 컨셉으로한 화이트 하우스! (1) | 2021.07.27 |
| 독특한 모양으로 특색있는 집! (0) | 2021.07.26 |
| 자연스럽게 스킵플로어 구조로 만들어진 집! (0) | 2021.07.25 |