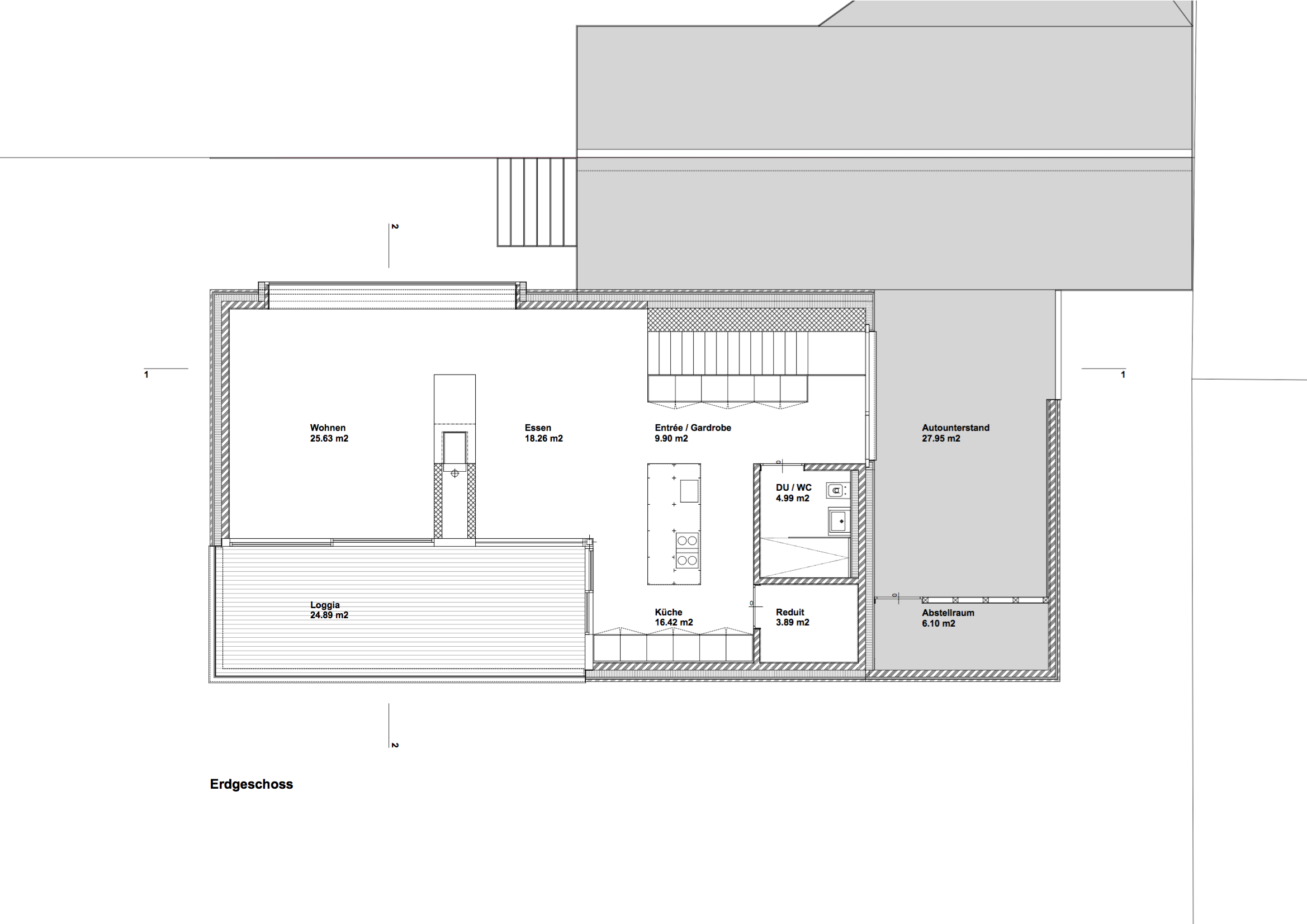
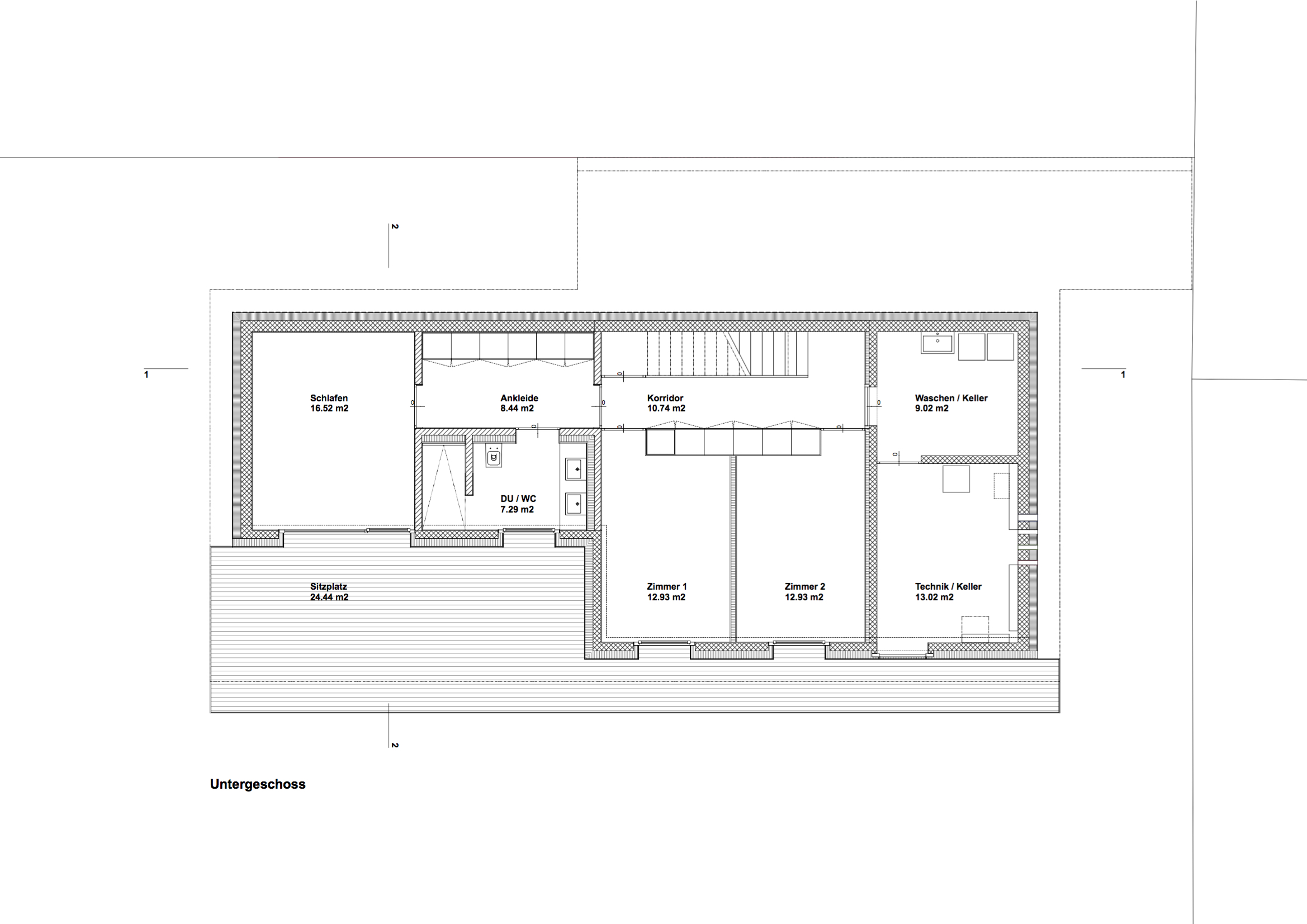
efh bettlach

위스에 건축된 이 집은 경사지에 만들어져 뒷쪽에서 보면 단층집 같고
앞쪽에서 보면 복층집 같은 느낌을 주고 있습니다.
형태는 너무나 반듯한 직선으로만 이루어진 디자인입니다.
1층 부분은 시멘트가 그대로 노출되어 있고, 2층은 목재로 마감이 되었습니다.
외관은 목재의 톤이 어두워서 시멘트와 목재가 잘 어울어져 있습니다.
내부 인테리어는 일부 벽과 계단이 노출 콘크리트이고 바닥의 회색 타일과 목재로 이루어 졌는데
내부에 쓰인 나무는 밝은 톤으로 외관과는 굉장히 다른 느낌을 주고 있습니다.
또한 밝은 톤의 나무지만 옹이가 그대로 노출된 목재를 사용하였습니다.





































Architects _ tormen architekten ag
Year _ 2020
Location _ Bettlach, Switzerland
Photographs _ Mark Drotsky Architekturfotografie
'Space & Object (공간과 오브제)' 카테고리의 다른 글
| 과거 위에 현재를 입혀 새롭게 탄생한 집! (0) | 2021.08.02 |
|---|---|
| 곡선이 돋보이는 단층 주택! (0) | 2021.07.31 |
| 3대가 살고 있는 앞, 뒤 반전 매력의 미니 아파트 (0) | 2021.07.29 |
| 모든 것이 갖춰진 별채의 변신! (0) | 2021.07.28 |
| 스위스 전통 가옥 샬레를 컨셉으로한 화이트 하우스! (1) | 2021.07.27 |