Gloma House

포루투갈에 세워진 회색의 단층 주택입니다.
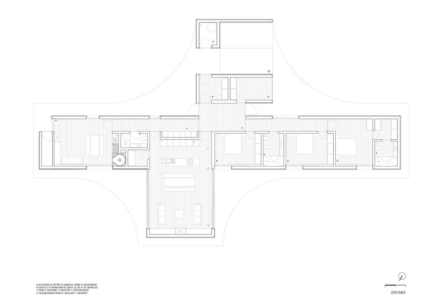
위아래 커다란 콘크리트 플래이트를 중심으로 어긋난 십자가 모양을 하고 있습니다.
이렇게 주택을 단층으로 지으면서 십자로 만든 이유는 집의 모든 곳에서
외부와 연결성을 높여 자연과 쉽게 동화될 수 있도록 디자인 하였습니다.
그러면서 위아래 플레이트에 곡선을 넣어 주어 자연스럽게 발코니가 만들어졌습니다.
위아래 플레이트는 노출 콘크리특가 그대로 보여지고 외관 벽은 회색 도장으로 마감하였습니다.
내부도 천장은 노출 콘크리트 일부와 화이트 마감 그리고 벽은 화이트 마감 바닥은 나무로 마감하였습니다.
채도가 낮은 재료들과 도장을 사용하여 전체적으로 차분한 분위기의 집입니다.
바닥의 나무 포인트로 온기를 조금 불어넣어 주었습니다.
































Architects _ Bruno Dias Arquitectura
Year _ 2019
Location _ Leiria, Portugal
Photographs _ Hugo Santos Silva
'Space & Object (공간과 오브제)' 카테고리의 다른 글
| 게스트하우스 개념이 들어선 노부부의 집! (0) | 2021.08.03 |
|---|---|
| 과거 위에 현재를 입혀 새롭게 탄생한 집! (0) | 2021.08.02 |
| 경사지에 세워진 반듯한 주택! (1) | 2021.07.30 |
| 3대가 살고 있는 앞, 뒤 반전 매력의 미니 아파트 (0) | 2021.07.29 |
| 모든 것이 갖춰진 별채의 변신! (0) | 2021.07.28 |