Park Roof House

집에서 멀리 나가지 않아도 식물과 태양을 즐기고 그러면서도 프라이버시가 보호되는
그런 집을 원했던 건축주의 희망데로 집의 옥상을 공원처럼 꾸며 놓은 베트남 주택입니다.
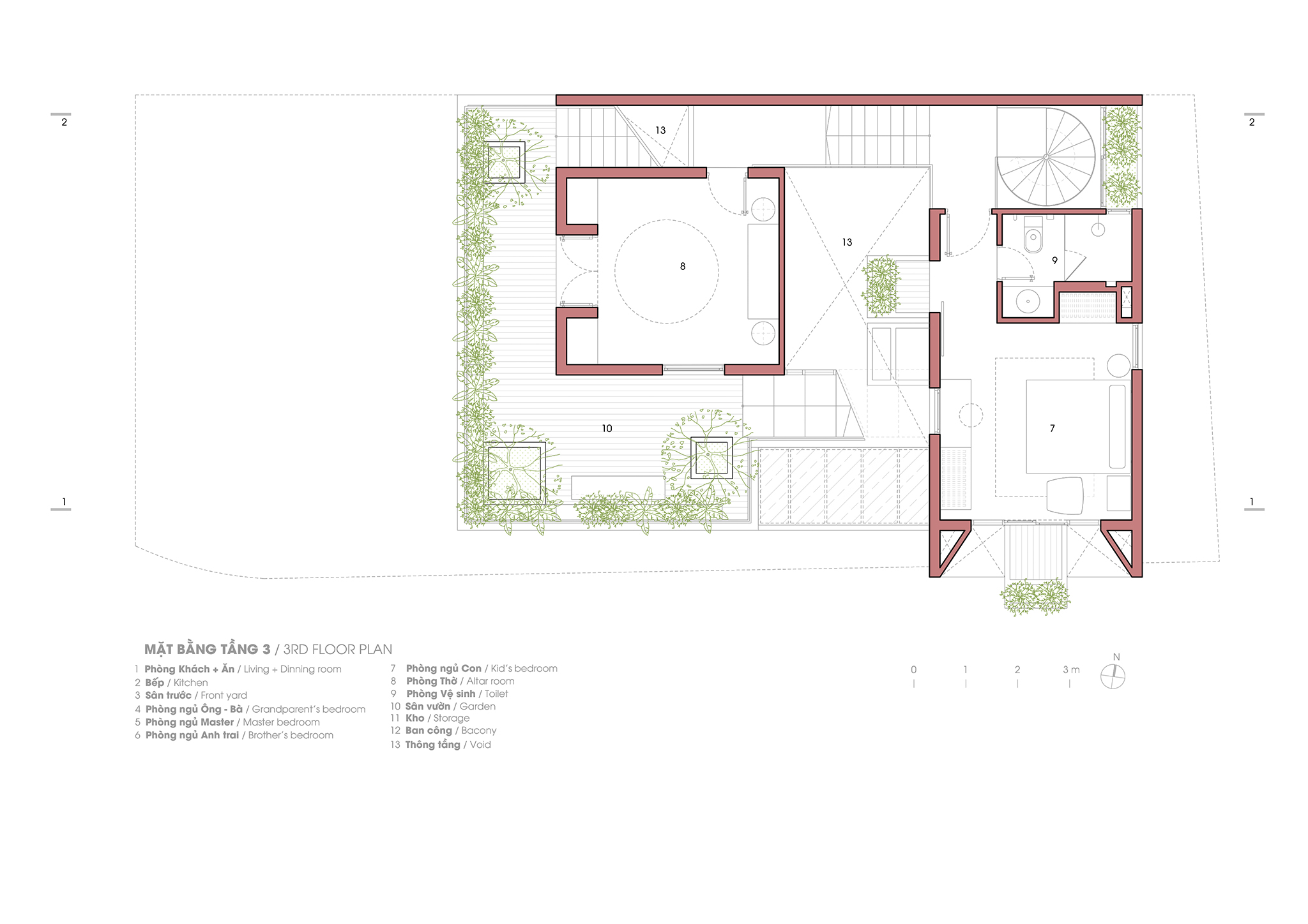
거실 층고를 높이기 위해 스킵플로어 구조로 집을 지으면서 양쪽의 다른 플로어 사이에
공간을 주어 높은 천고를 실현하였습니다.
집 전반적으로 식물들이 많이 배치되어 있지만 특히 옥상에는 계단식의 공원을 만들어
운동을 하거나 휴식을 취할 수 있는 충분한 공간을 구성하였습니다.
내외부 모두 화이트 톤의 벽과 벽돌이 조화를 이루고 있으며 문과 가구에 적절히
나무가 배치되어 식물과 함께 따듯함을 느낄 수 있는 공간입니다.





















Architects _ MDA Architecture
Year _ 2019
Location _ Ho Chi Minh City, Vietnam
Photographs _ Quang Tran
'Space & Object (공간과 오브제)' 카테고리의 다른 글
| 전망을 위한 설계가 적용된 언덕위의 집! (1) | 2021.08.21 |
|---|---|
| 경사지의 검은 별장! (0) | 2021.08.20 |
| 베란다가 마당으로 내려온 집! (0) | 2021.08.18 |
| 우산 처럼 넓은 지붕을 가진 심플 하우스! (0) | 2021.08.16 |
| 세로 나무 판재가 매력적인 집 (0) | 2021.08.15 |