728x90
반응형
Buxton

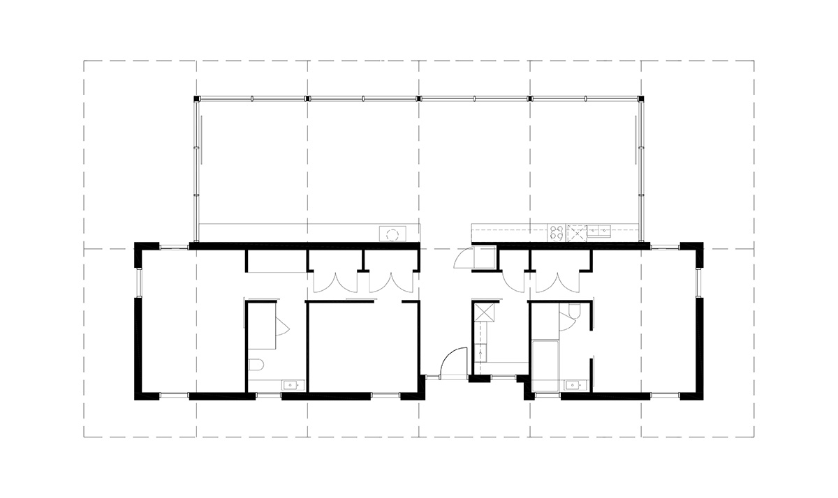
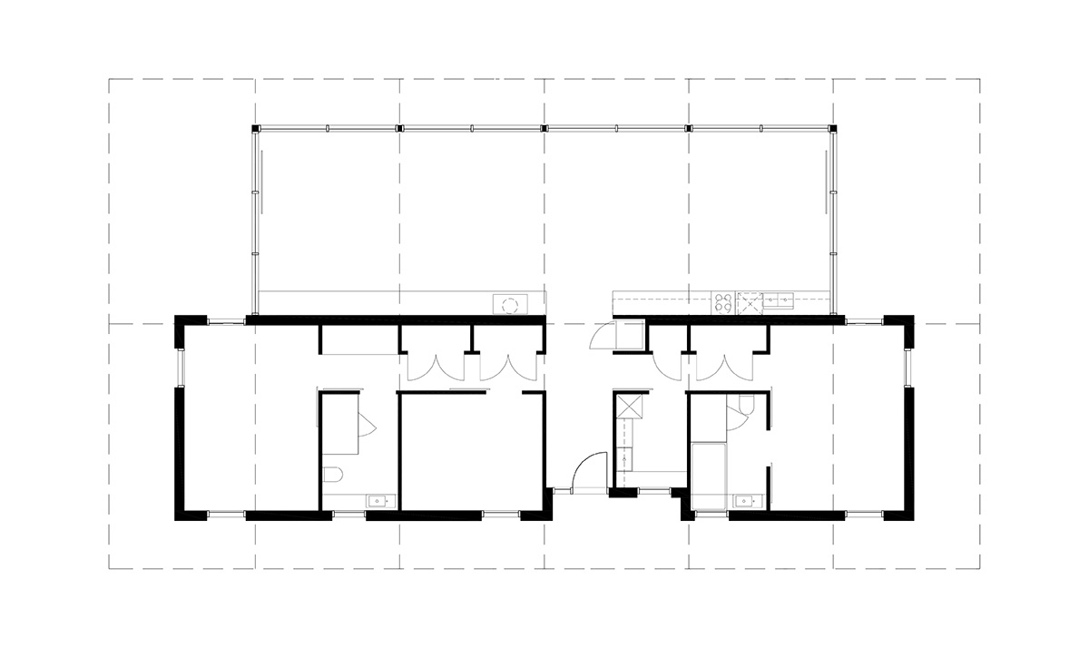
호주 벅스턴에 위치한 단순한 형태의 주택입니다.
단층 주택에 집보다 훨씬 넓은 지붕을 가지게 설계된 것이 특징입니다.
남반구다 보니 북쪽으로 개방적으로 설계되어 거실과 공용공간에 충분한 채광을 확보하고
남쪽 뒷쪽으로는 벽채를 설치하여 개별 방들을 배치하였습니다.
주택 형태처럼 공간 구성도 심플하게 구성하였으며 내부와 외부에 콘크리트와 함께
나무 소재 마감이 잘 어울어 집니다.
자연속에 그대로 있는 것처럼 6만평의 대지에 개간하지 않고 지어졌습니다.

















Architects _ Format Architects
Year _ 2019
Location _ Buxton, Australia
Photographs _ ernesto arriagada
728x90
반응형
'Space & Object (공간과 오브제)' 카테고리의 다른 글
| 옥상에 공원을 품은 집! (0) | 2021.08.19 |
|---|---|
| 베란다가 마당으로 내려온 집! (0) | 2021.08.18 |
| 세로 나무 판재가 매력적인 집 (0) | 2021.08.15 |
| 다뜻한 느낌의 화이트 주택! (0) | 2021.08.13 |
| 미니멀한 노출콘크리트 집! (0) | 2021.08.12 |