MEETING HOUSE

붉은 기와 지붕들이 빼곡히 들어선 포르투갈 소도시 중심가에 위치한 화이트 톤의 모던 주택입니다.
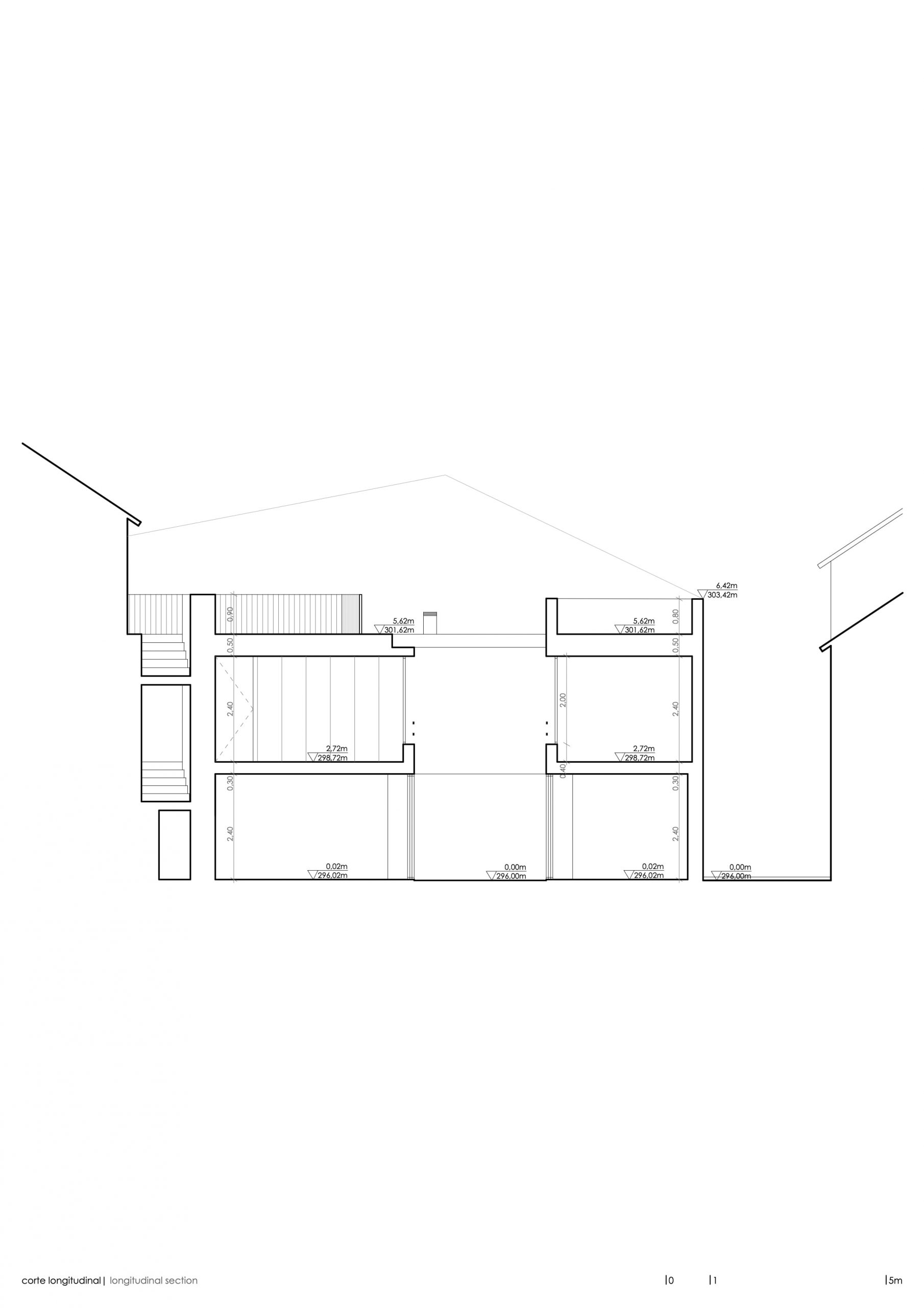
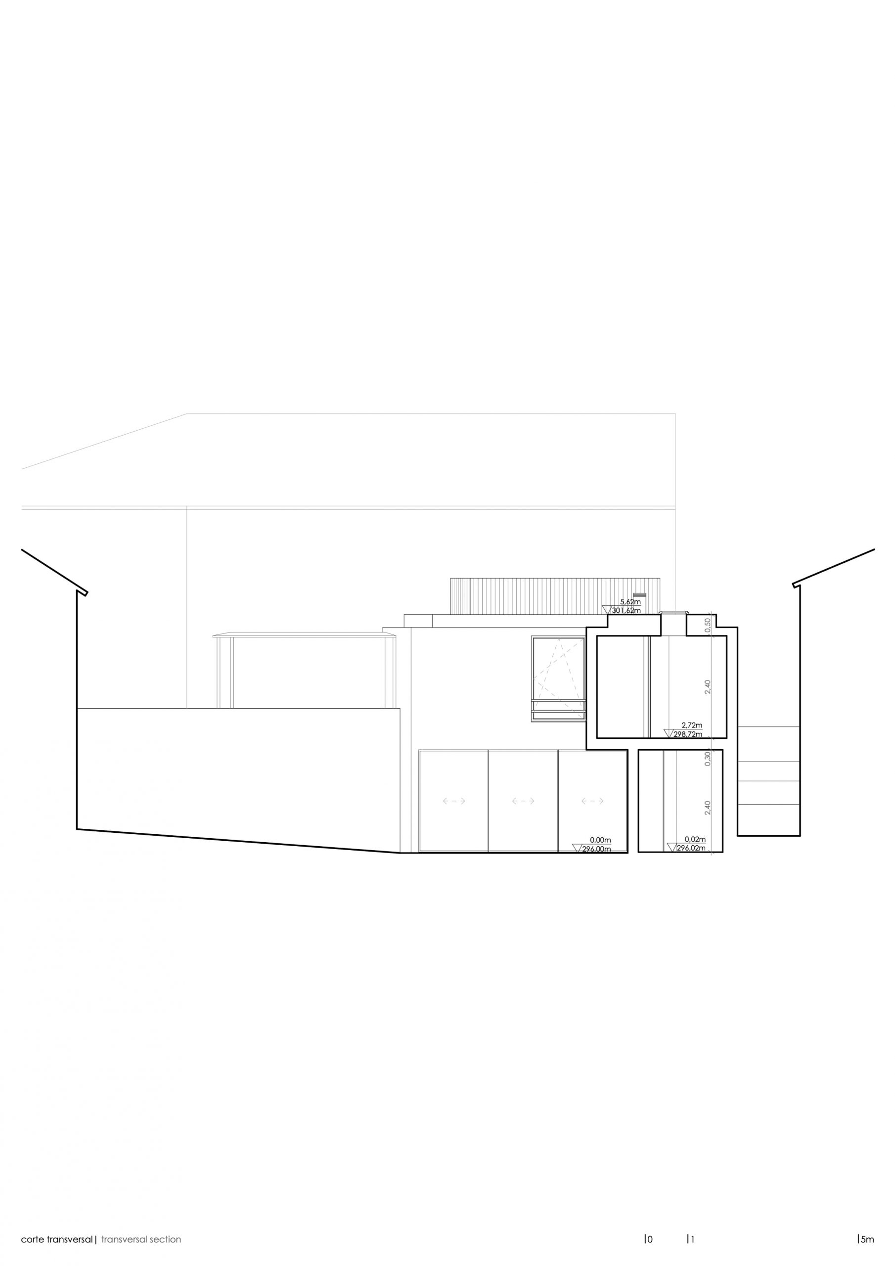
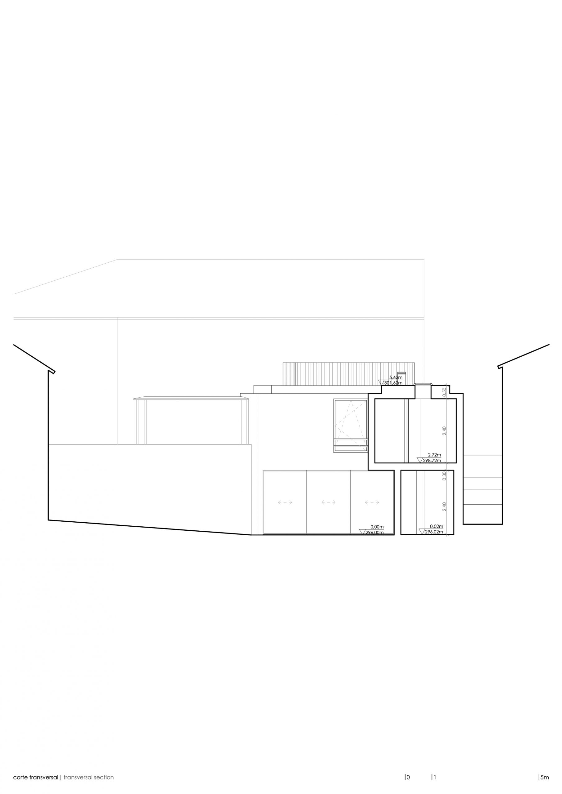
2.5면이 옆의 집들에 막혀 있는 창고 건물을 현대식으로 모던하게 리모델링 하였습니다.
거실과 주방을 사이에 두고 주차장으로 쓸 수 있는 작은 마당을 두었습니다.
마당을 중심으로 거실과 주방에는 전면 통유리를 설치해 개방감도 주었습니다.
작은 마당과 마당과 연결되는 집 앞 작은 광장 그리고 통유리를 열면 거실과 주방까지
모두 개방할 수 있는 구조가 가능한 설계입니다.
하지만 마당의 슬라이딩 도어를 닫으면 프라이버시가 충분히 보호되는 양면성을 띄고 있습니다.
집 외관과 같이 내부 인테리어도 화이트 톤이며 바닥을 나무로 깔고 곳곳에 나무 가구를 두어
따뜻한 인테리어를 연출하고 있습니다.




























Architects _ waataa (we are all together around architecture)
Year _ 2018 ~2020
Location _ Tondela, Portugal
Photographs _ waataa
'Space & Object (공간과 오브제)' 카테고리의 다른 글
| 바다에 진심으로 지어진 집! (1) | 2021.08.29 |
|---|---|
| 서로 다른 마감들이 조화로운 주택! (0) | 2021.08.27 |
| 중정이 돋보이는 미니멀 하우스! (2) | 2021.08.24 |
| 자연속에 숨겨진듯한 조용한 별장! (0) | 2021.08.23 |
| 벽면 가득 책꽂이가 눈에띄는 아파트 인테리어! (1) | 2021.08.22 |