본문 바로가기
Space & Object (공간과 오브제)

다문화 가정이 조화롭게 살아가는 벽돌집

by 디디 (DD) 2021. 10. 13.
728x90
반응형

OldMeetsNew House

Ⓒ Block Architects

 

베트남 남부 메콩강 하류 연안도시인 짜빈에 지어진 주택입니다.

짜빈은 과거 캄보디아 영토였으나 1750년대에 배트남에 편입되었습니다.

이러한 특성으로 캄보디아계의 크메르인과 크메르크롬족이 많이 거주하고 있습니다.

건축주 가족역시 베트남인과 크메르인 그리고 중국인이 함께 살고 있는 다문화 가정입니다.

이러한 연유로 집의 건축에서 가족의 유대감과 조화를 우선으로 설계가 이루어졌습니다.

외부의 벽돌은 집 전체를 보호하는 역할고 내부를 필터링하는 스크린 역할을 하고 있습니다.

또한 내부의 공기가 순환이 가능하도록 조적을 통해 공간이 확보되었습니다.

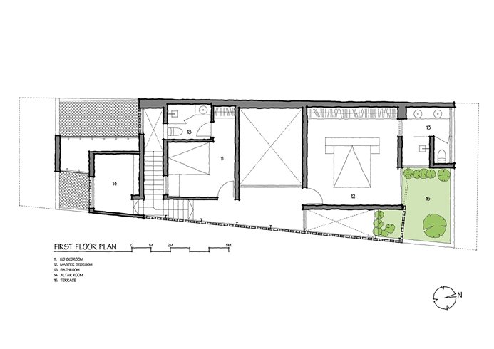
집의 구조는 배트남 전통가옥에서 가져와 거실, 식당, 주방을 가운데에 배치하고 집의 양 끝에 

침실을 배치하였습니다. 특히 각각의 공간이 일렬로 배치되어 빛과 순환에 용이한 구조입니다.

 

Ⓒ Block Architects
Ⓒ Block Architects
Ⓒ Block Architects
Ⓒ Block Architects
Ⓒ Block Architects
Ⓒ Block Architects
Ⓒ Block Architects
Ⓒ Block Architects
Ⓒ Block Architects
Ⓒ Block Architects
Ⓒ Block Architects
Ⓒ Block Architects
Ⓒ Block Architects
Ⓒ Block Architects
Ⓒ Block Architects
Ⓒ Block Architects
Ⓒ Block Architects

 

 

Architects _ Block Architects

Year _ 2018

Location _ Trà Vinh, Vietnam

Photographs _ Quangdam

 

728x90
반응형