The Pavilion House

스위스의 작은 마을에 콘크리트 골조를 바탕으로 목조 지붕을 덮은 집입니다.
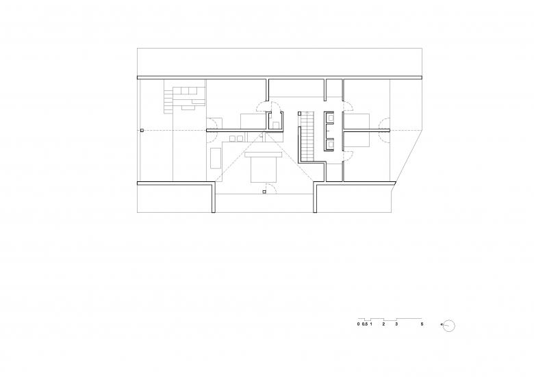
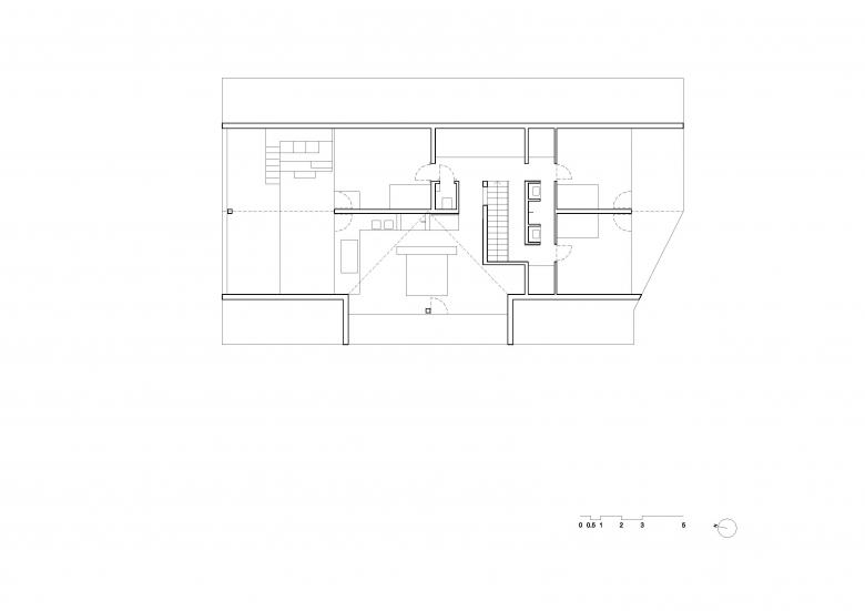
박공지붕을 집의 면적보다 더 넓게 만들어 독특한 구조가 만들어졌습니다.
그러면서 1층을 오픈형 주방과 거실로 설계하여 우리나라 정자 같은 느낌이 드는 건축물입니다.
마감을 최대한 하지 않고 노출콘크리트와 나무의 조화로 주거 공간이란 느낌을 최대한 배제한 것이 특징입니다.
설계자는 헛간 같은 느낌이 들도록 의도했다고 합니다.
1층이 개방적이고 노출콘크리트 위주의 거친 느김이라면
2층의 방이 있는 곳은 나무로 마감되어 따듯한고 포근한 느낌의 공간입니다.
두개 층이 조화롭게 어우러져 강약의 조화가 돋보이는 집입니다.















Architects _ gus wüstemann architects
Year _ 2020
Location _ Buchberg, Switzerland
Photographs _ Bruno Helbling
'Space & Object (공간과 오브제)' 카테고리의 다른 글
| 겉과 속의 대비가 돋보이는 친환경적 수상가옥! (0) | 2021.11.16 |
|---|---|
| 중정이 돋보이는 사색을 위한 집! (0) | 2021.11.15 |
| 것과 속이 다른 느낌의 아담한 주택! (1) | 2021.10.29 |
| 자연속의 브릿지형 목조주택! (0) | 2021.10.27 |
| 자연과 경계를 허문 미니멀 하우스! (1) | 2021.10.25 |
