본문 바로가기
Space & Object (공간과 오브제)

중정이 돋보이는 사색을 위한 집!

by 디디 (DD) 2021. 11. 15.
728x90
반응형

Casa LEnS

Ⓒ Obra Arquitetos

 

식물을 바라보고 사색을 위한 공간 구성이라는 컨셉으로 만들어진 집입니다.

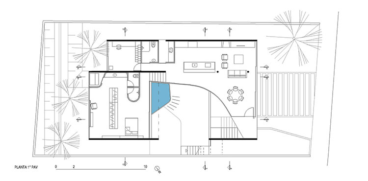
컨셉처럼 중정이 중심을 이루면서 그 공간의 자연이 가장 돋보이도록 설계되었습니다.

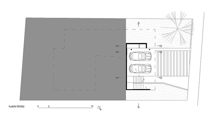
건축지형의 비탈을 그대로 살려 중정에 활용하였습니다.

중정면의 유리도 곡선을 사용하여 만들었는데, 시각적으로 방해받지 않도록 하기 위함이며

직선을 사용했을 때 절단되는 느낌을 최소화 하려고 하였습니다.

중앙 곡선 유리는 자연을 관찰하는 하나의 렌즈와도 같은 역할입니다.

시각의 개방감을 통해 다른 공간의 가족 구성원과도 더욱 친밀하게 느끼도록 설계되었습니다.

또한 이 집은 집에서 보는 자연이 중정을 통해 옥상으로 연결되며 옥상에서 

이 지역의 자연을 시각적 방해 없이 볼 수 있는 시각의 확장을 유도하고 있습니다.

내부와 외부 전체적으로 노출 콘크리트로 마감 되었으며 포인트로 블랙이 프레임에 적용되었습니다.

노출 콘크리트는 이 집의 컨셉인 자연과도 자연스럽게 어울리고 있습니다.

 

Ⓒ Obra Arquitetos
Ⓒ Obra Arquitetos
Ⓒ Obra Arquitetos
Ⓒ Obra Arquitetos
Ⓒ Obra Arquitetos
Ⓒ Obra Arquitetos
Ⓒ Obra Arquitetos
Ⓒ Obra Arquitetos
Ⓒ Obra Arquitetos
Ⓒ Obra Arquitetos
Ⓒ Obra Arquitetos
Ⓒ Obra Arquitetos
Ⓒ Obra Arquitetos
Ⓒ Obra Arquitetos
Ⓒ Obra Arquitetos
Ⓒ Obra Arquitetos
Ⓒ Obra Arquitetos
Ⓒ Obra Arquitetos
Ⓒ Obra Arquitetos
Ⓒ Obra Arquitetos
Ⓒ Obra Arquitetos

 

 

Architects _ Obra Arquitetos 

Year _ 2014~2016

 

Location _ São José dos Campos, Brazil

Photographs _ Nelson kon

 

 

 

728x90
반응형