Villa in Vlastibořice

체코 자연보호구역인 보헤미안 파라다이스에 지어진 계단식 주택입니다.
천연소재를 최대한 활용하여 단순한 공간을 만들어 달라는 것이 건축주의 의도 였습니다.
이것을 최대한 반영하여 외관이 온통 자연 석재로 만들어 졌고
단순한 직선 형태의 집이 탄생하였습니다.
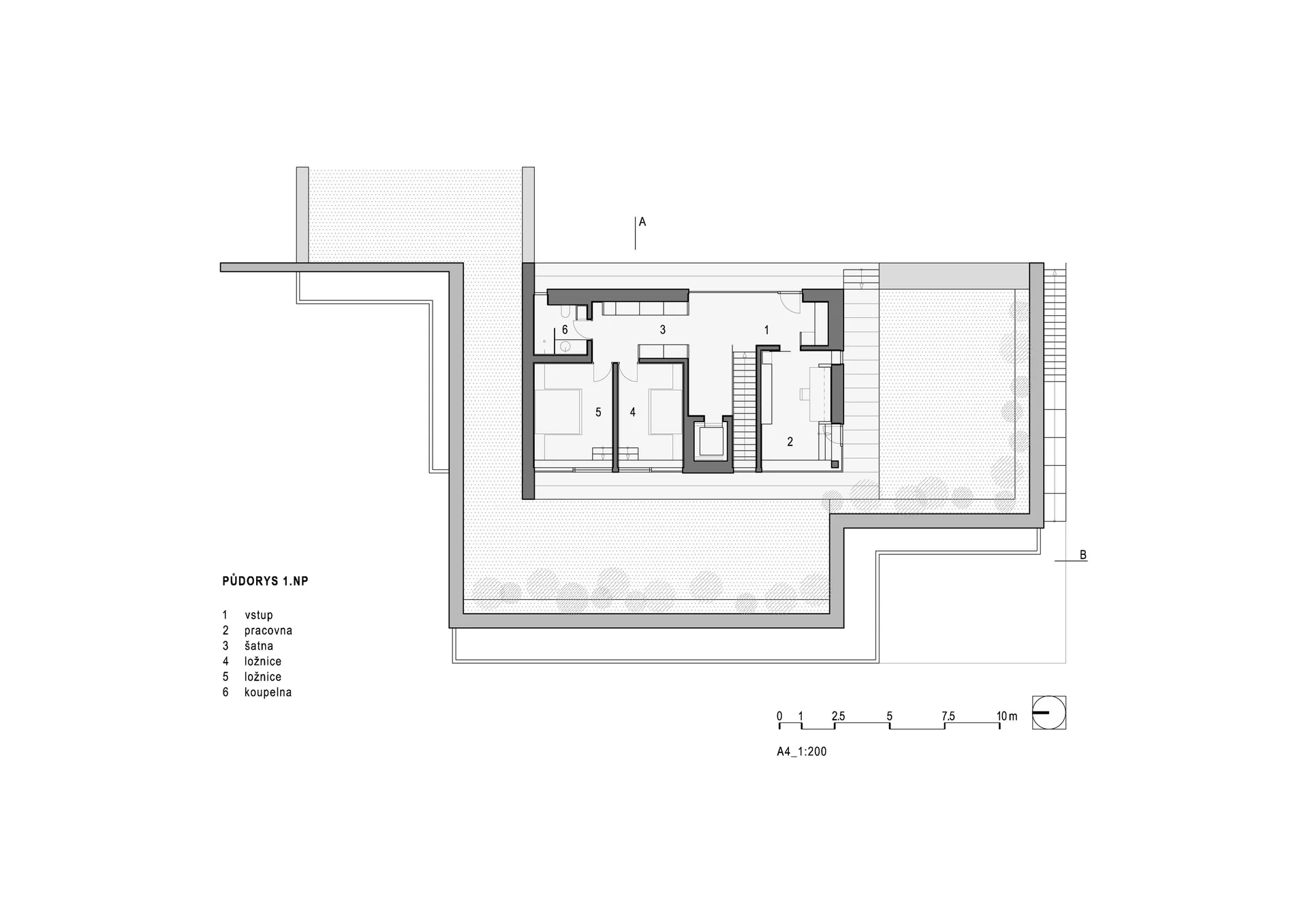
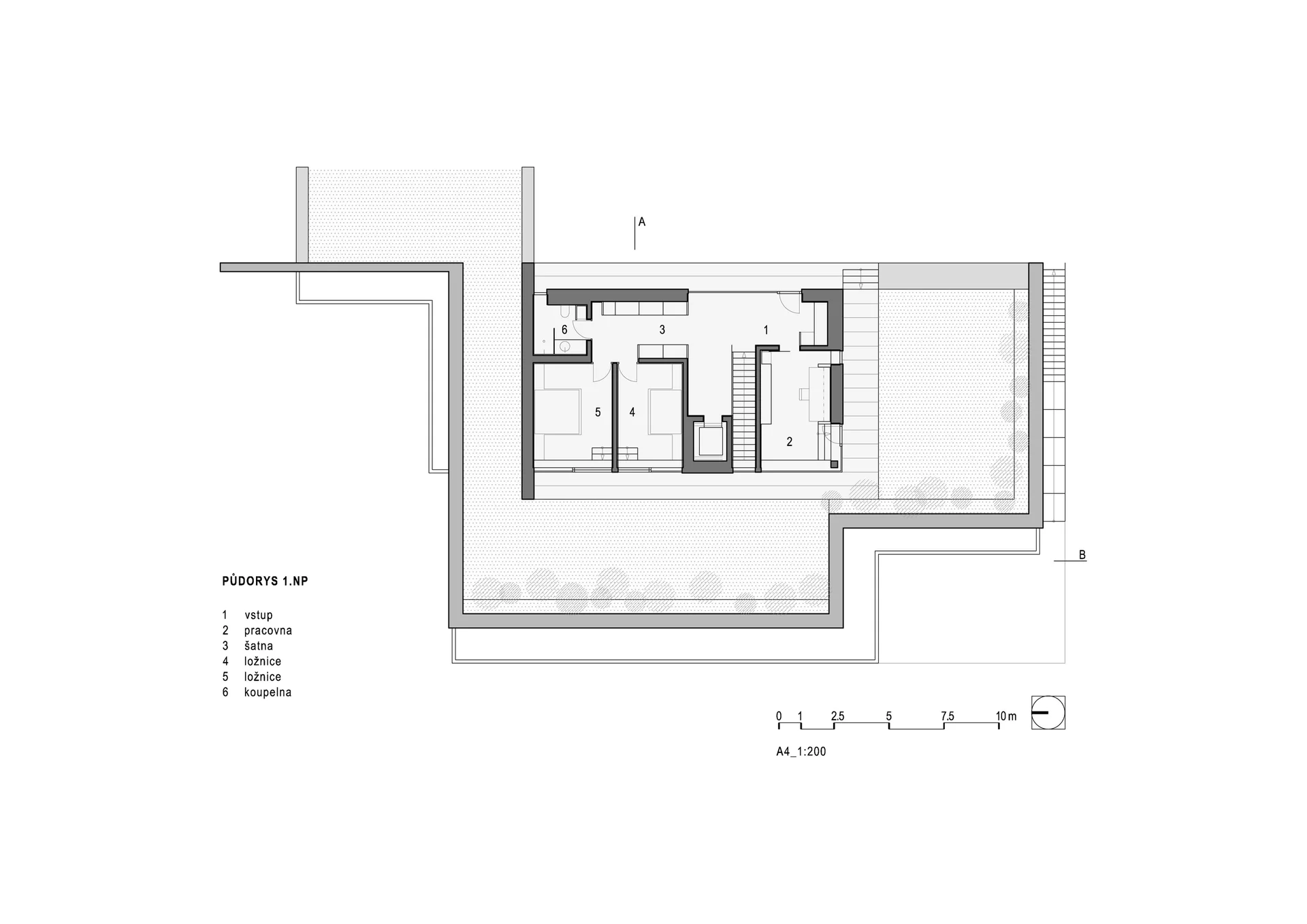
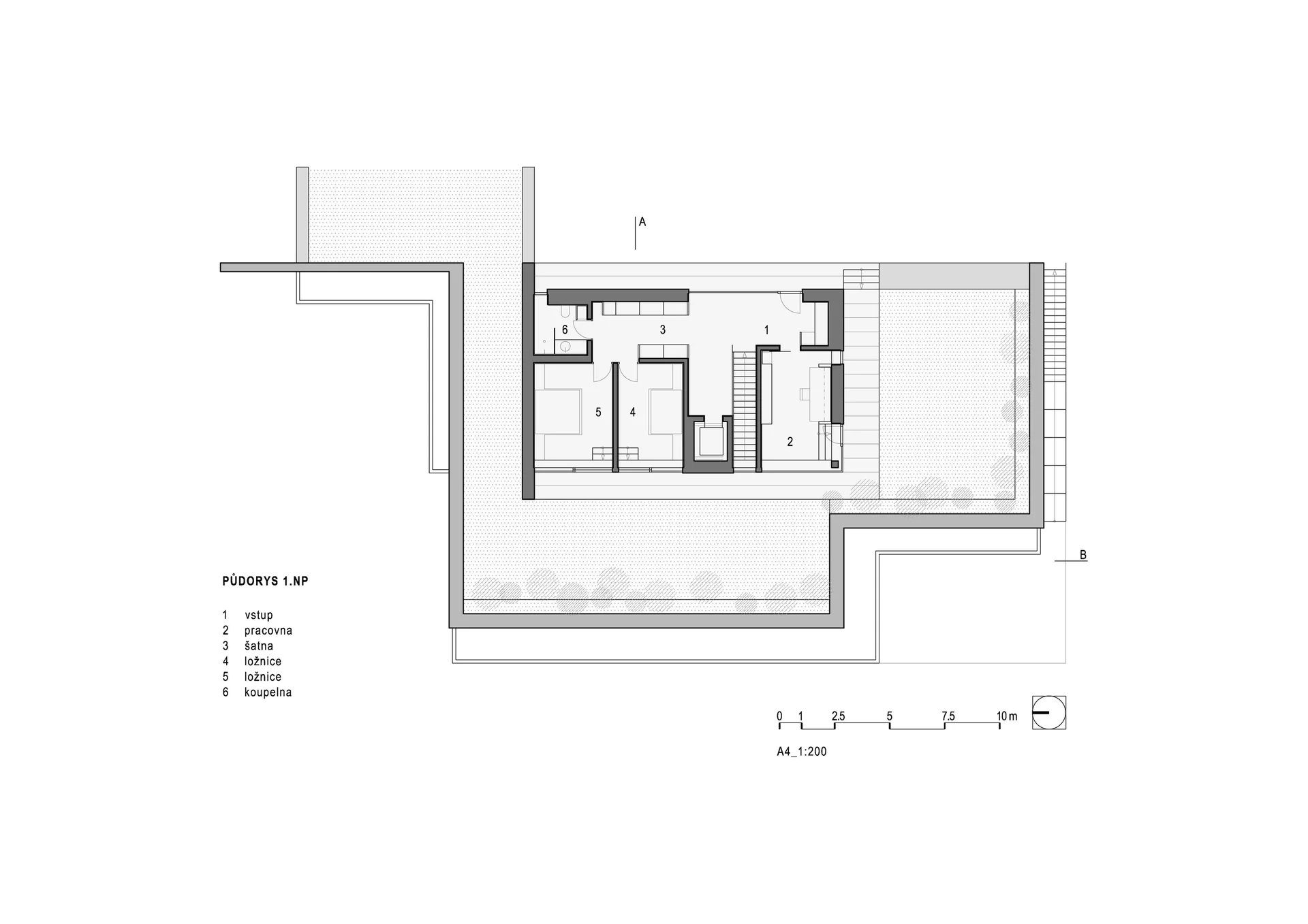
별도의 입구가 설치된 2층에는 홈 오피스와 게스트룸이 배치되었고
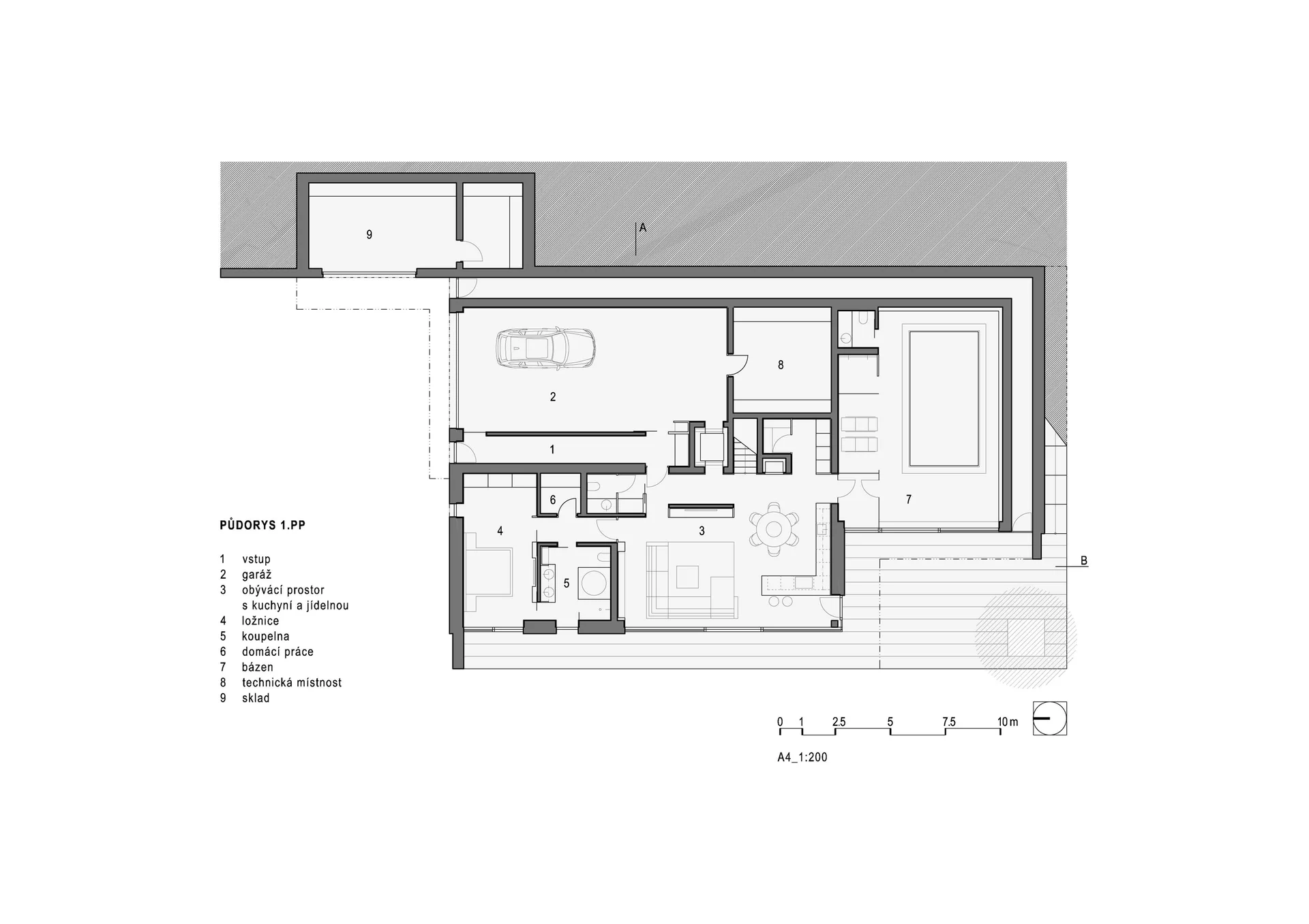
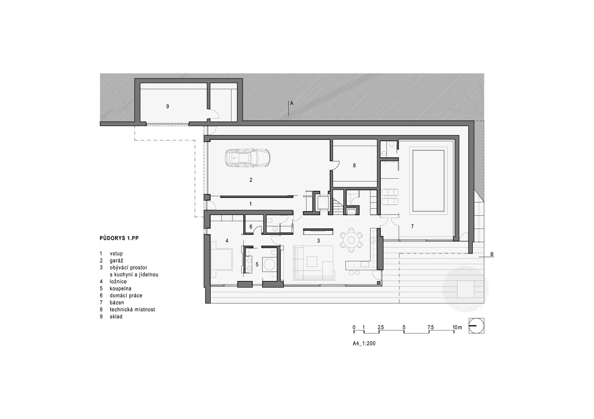
일부가 지중으로 들어가도록 설계된 1층에는 수영장과 함께 주 생활공간이 들어가 았습니다.
집도 계단식이지만 전체적인 대지를 형성하는 마당도 계단식으로 만들어져
비탈진 대지를 잘 활용하고 있습니다.
내부 인테리어는 전체적으로 화이트 톤에 블랙과 나무 대리석 등이 적절하게 조화되어 있습니다.

























Architects _ SIAL architects and engineers
Year _ 2020
Location _ Vlastibořice, Czech Republic
'Space & Object (공간과 오브제)' 카테고리의 다른 글
| 리스본에 들어선 밝은 그레이 하우스! (0) | 2022.01.24 |
|---|---|
| 프라이버시와 조망을 모두 만족한 해안가 집! (0) | 2022.01.23 |
| 무채색의 무한한 인테리어! (0) | 2022.01.21 |
| 호수를 바라보며 자연과 함께 하는 검은집! (0) | 2022.01.20 |
| 제주도 감성 스테이 소개 5탄 (일일시호/선흘림/더스테어오름) (0) | 2022.01.19 |
