Memphremagog lake house

앞쪽으로 호수가 펼쳐진 경사면에 각기 다른 기능을 지닌 3개의 볼륨이 돋보이는 교외의 주택입니다.
돌과 철과 나무의 소재들이 모던하게 어울어져 어느것 하나 튀는 것 없이 잘 정돈되어 있습니다.
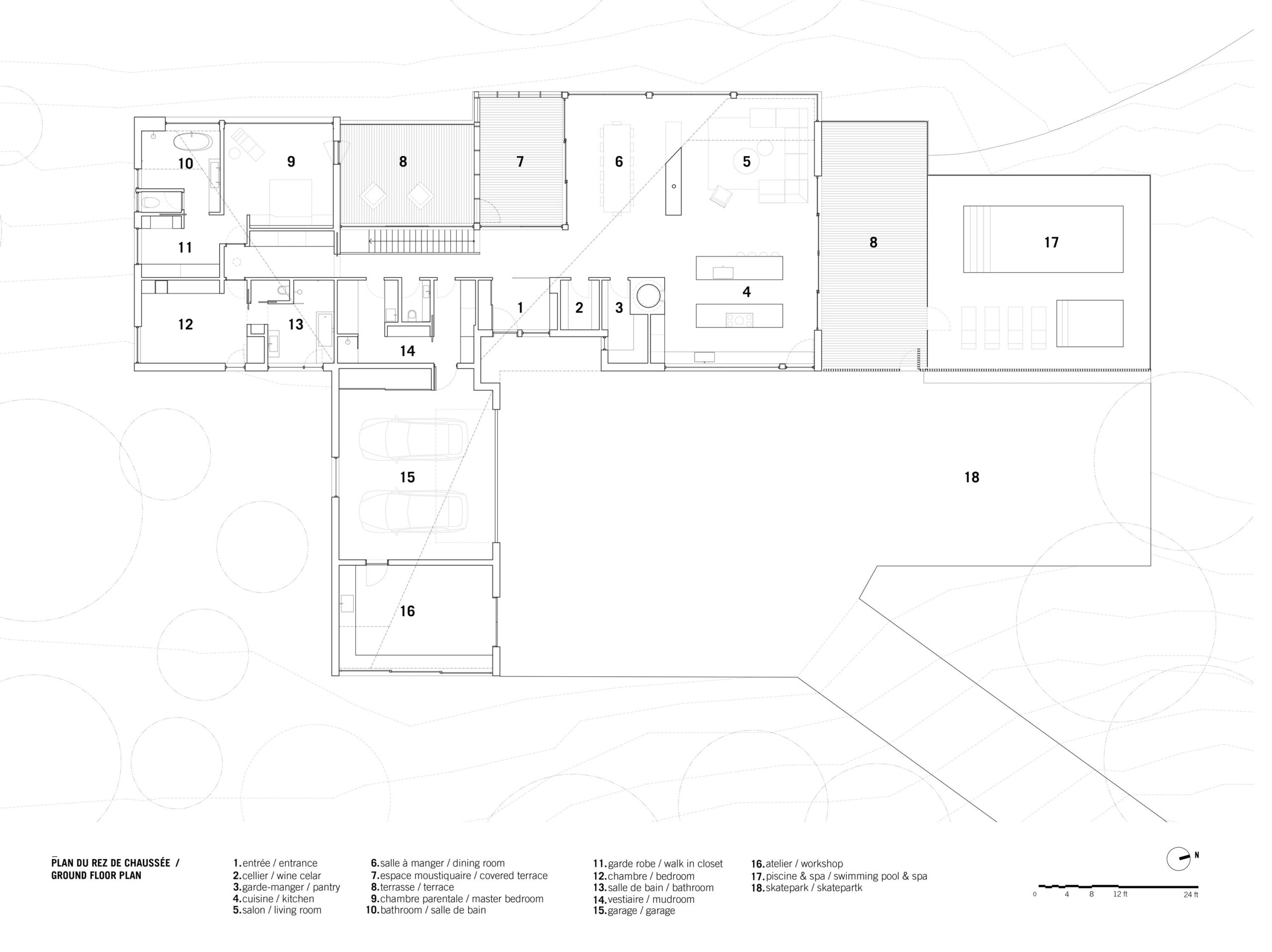
첫번째 볼륨에는 생활공간이 두번째 볼륨에는 작업장과 주차장이 그리고 마지막 볼륨에는 야간 공간을 포함하고 있습니다.
각기 다른 기능의 볼륨을 하나의 디자인으로 잘 엮어 내었고 외관의 빈티지한 나무는 전혀 나무 같지 않은 모던한 느낌을 주고 있습니다.
내부에는 따뜻한 느낌의 일반 나무를 사용하였으며, 강철 재료들과의 조화를 통해 차가운 느낌을 상쇄하고 있습니다.
아래 호수쪽에서 바라보면 주변나무에 걸린듯한 나무위 집처럼 보이면서 독특한 풍경을 만들어냅니다.
건축주는 친구들과 모일 수 있는 모던한 스타일의 따뜻한 장소를 원했고 그에 잘 부합하는 장소입니다.





























Architects _ naturehumaine
Year _ 2020
Location _ Cantons de l'Est, Canada
Photographs _ Adrien Williams
'Space & Object (공간과 오브제)' 카테고리의 다른 글
| 소박하지만 독특한 산아래 별장 (0) | 2021.05.08 |
|---|---|
| 70년 벽돌집의 재탄생! (0) | 2021.05.07 |
| 자연과 일부로 숲과 동화되는 집! (0) | 2021.05.04 |
| 시원한 개방감이 돋보이는 모던 하우스 (0) | 2021.05.03 |
| 작지만 확장이 가능한 협소주택 (0) | 2021.05.02 |