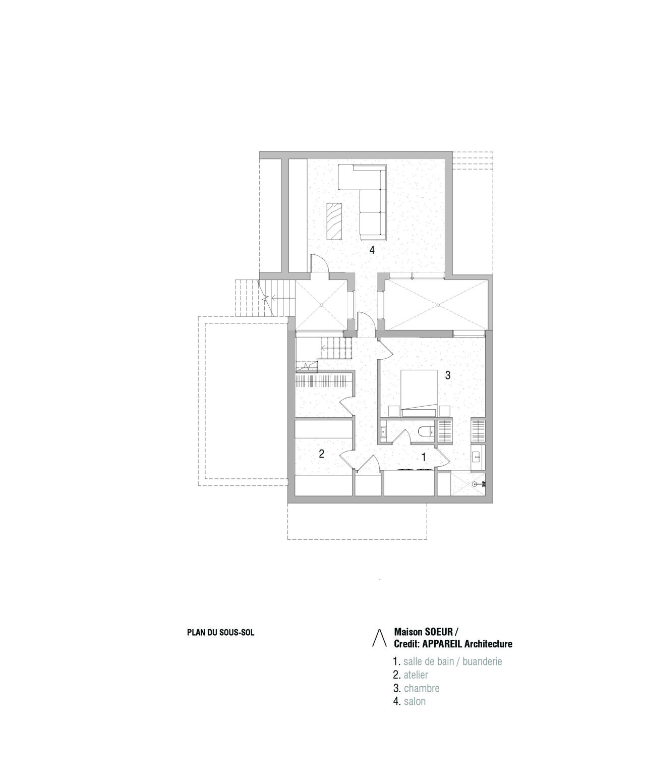
MAISON SOEUR

1950년대 몬트리올 지역 서민들의 주거지에 있던 전형적인 형태의 벽돌 주택입니다.
최대한 외관은 보존하면서 현대식으로 리모델링 하는 것이 이 집의 목적입니다.
벽돌집의 형태와 볼륨감을 유지하며 모던한 내부 인테리어를 통해 새로운 집의
이미지를 잡아가고 건축주의 요구사항을 충족시켰습니다.
넓은 창을 배치해 개방감을 주었으며 조명을 통해 새로움을 부여하였습니다.
모노톤의 색감은 모던한 느낌을 주면서 인테리어 포인트로 나무를 사용해 따뜻함도 놓치지 않았습니다.
포근하면서 현대적인 인테리어가 돋보이는 집입니다.












Architects _APPAREIL Architecture en collaboration avec Catherine Gauthier
Year _ 2019
Location _ Montréal, Canada
Photographs _ Félix Michaud
'Space & Object (공간과 오브제)' 카테고리의 다른 글
| 마당의 단풍나무가 돋보이는 세련된 집! (0) | 2021.05.09 |
|---|---|
| 소박하지만 독특한 산아래 별장 (0) | 2021.05.08 |
| 돌, 철, 나무가 모던하게 잘 어울어진 주택! (1) | 2021.05.05 |
| 자연과 일부로 숲과 동화되는 집! (0) | 2021.05.04 |
| 시원한 개방감이 돋보이는 모던 하우스 (0) | 2021.05.03 |