PEARL HOUSE

캐나다의 몬트리올에 위치한 단풍나무가 돋보이는 집입니다.
기존 구옥을 증축하여 리모델링된 주택으로 벽돌과 블랙으로 정리된 모습이 굉장히 세련된 모습입니다.
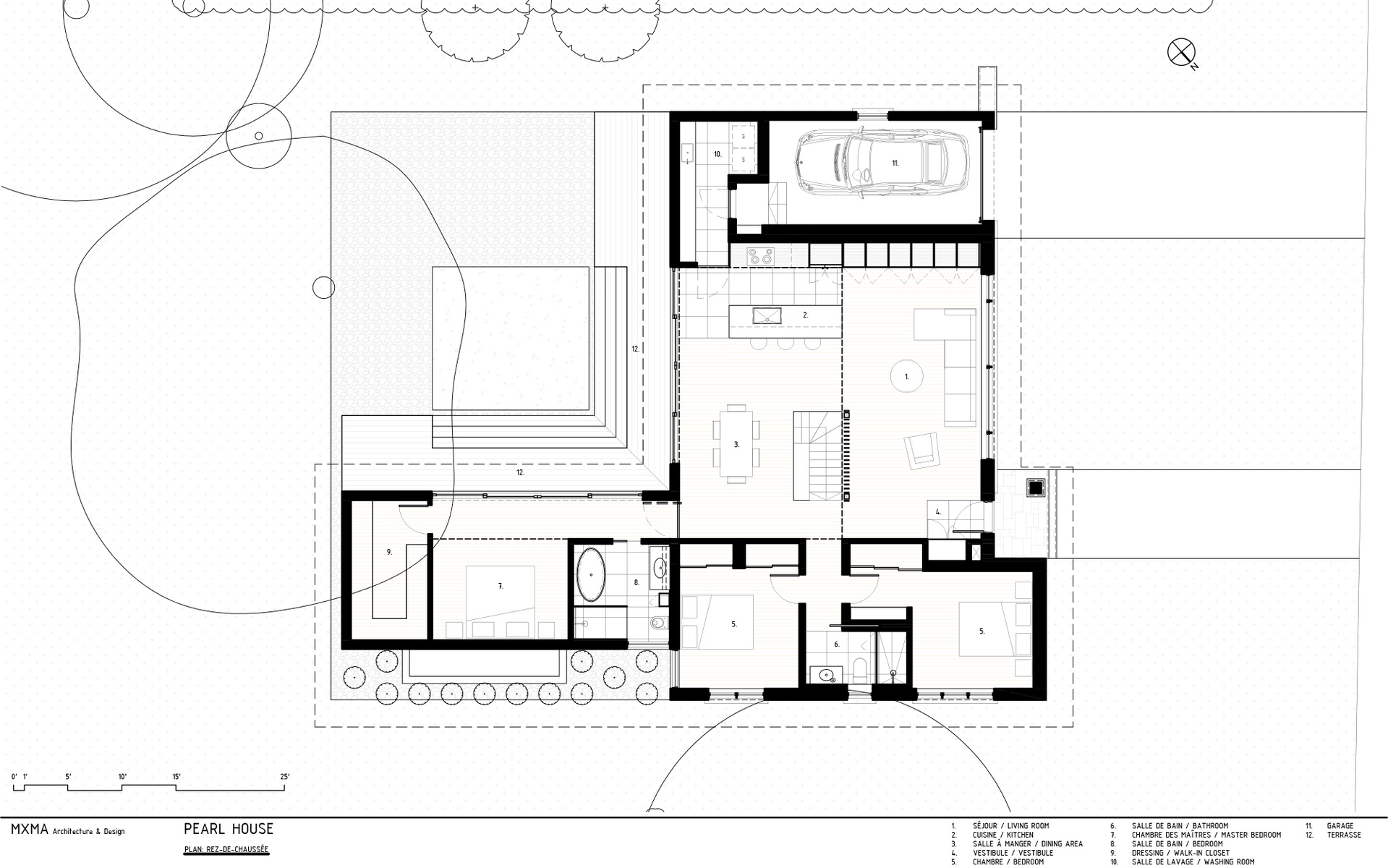
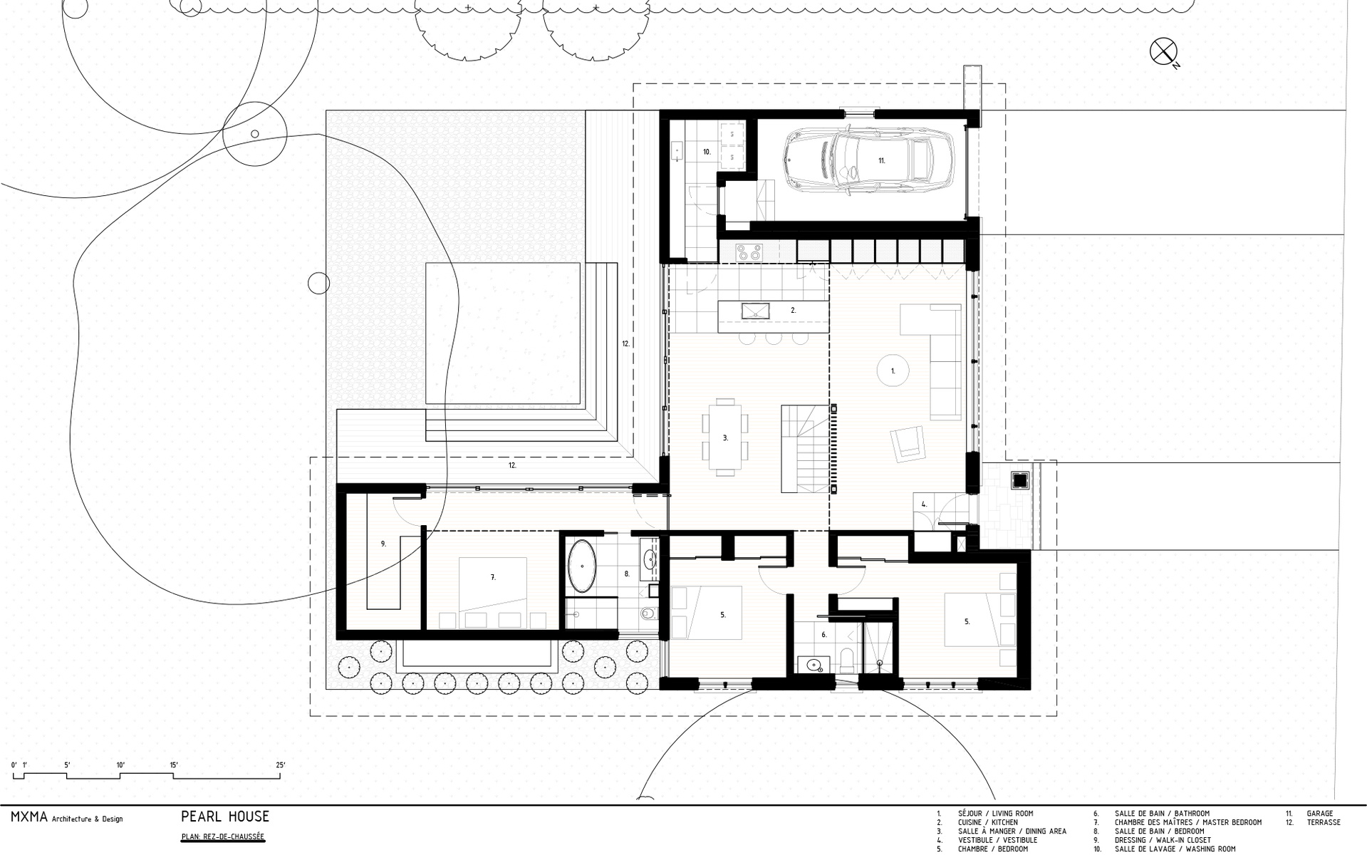
기존 주택에서 증축 부분의 일부를 덜어냄으로써 집은 L자 모양으로 변형되었고
이러한 설계로 인해 단풍나무가 돋보일 수 있게 되었습니다.
또한 절개된 설계로 인해 집 전체적으로 풍부한 채광을 가질 수 있게 되었습니다.
벽돌과 나무의 따뜻한 느낌의 주택에 블랙을 더해서 세련미를 놓치지 않고 모던한 느낌을 더해주었습니다.
마당은 L자 모양의 집으로 인해 포근한 느낌이 들면서 나무데크로 아이들이 편하게 놀고 쉴 수 있도록 설계되었습니다.
내부 인테리어에도 나무와 흰벽에 블랙을 가미해서 대조적이면서도 세련된 느낌을 외부에서부터 연장하고 있습니다.





















Architects _ MXMA Architecture & Design
Year _ 2018
Location _ Montréal, Canada
Photographs _ Annie Fafard+ Maxime Moreau
'Space & Object (공간과 오브제)' 카테고리의 다른 글
| 집안 곳곳이 작품이 되는 미술관 같은 집! (0) | 2021.05.11 |
|---|---|
| 단순함과 프라이버시에 맞춰진 순백의 하우스! (0) | 2021.05.10 |
| 소박하지만 독특한 산아래 별장 (0) | 2021.05.08 |
| 70년 벽돌집의 재탄생! (0) | 2021.05.07 |
| 돌, 철, 나무가 모던하게 잘 어울어진 주택! (1) | 2021.05.05 |