728x90
반응형
Woning HOEV

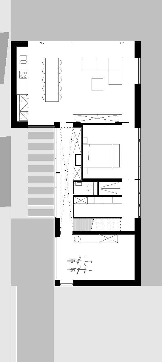
미니멀한 콘크리트 사각 볼륨의 집은 굉장히 개방적으로 설계되었습니다.
특히 후면 파사드쪽의 넓은 통창은 내부와 외부를 유기적으로 연결하고 있습니다.
정원과 침실, 주방, 거실과의 이러한 개방성은 집을 확장하고 정원을 집 내부로 가져오는 효과까지 주고 있습니다.
이렇게 개방적이지만 이 집은 단열에 굉장히 많은 공을 들였습니다.
콘크리트 구조물 설계에서부터 에너지를 적게 사용할 수 있는 많은 요소들이 포함되었습니다.
또한 이웃의 일조권을 생각하여 태양이 우리집으로 인해 옆집에 피해가 가지 않도록 설계되었습니다.
외부 콘크리트는 미래지향적인 느낌을 주지만 나무와 같이 사용하여 따뜻한 느낌을 추가해주었습니다.
인테리어는 노출 콘크리트에 어울리는 블랙톤으로 잘 정리되었습니다.












Architects _ STAM architecten
Year _ 2015
Location _ Antwerpen, Belgium
Photographs _ Yannick Milpas
728x90
반응형
'Space & Object (공간과 오브제)' 카테고리의 다른 글
| 밝은 분위기의 집으로 탈바꿈한 리노베이션 (0) | 2021.05.28 |
|---|---|
| 숲 속 창고의 화려한 변신! (0) | 2021.05.26 |
| 조금은 삐딱한 순백의 미니멀 하우스 (0) | 2021.05.24 |
| 농가 주택의 현대적 재해석! (0) | 2021.05.22 |
| 물결을 연상하는 나무 천장 인테리어가 매력적인 집! (0) | 2021.05.21 |