Casa LP

상파울루의 빌라 마달레나는 브라질에서 보헤미안의 문화 예술의 중심지로 알려진 곳입니다.
주변에 여러 미술관과 화려한 매장들 독특한 레스토랑과 스튜디오들이 눈을 즐겁게 하는 곳인데
이 집은 주변과는 반대로 밖에서 보면 아주 편안함을 줄 수 있는 회색의 노출 콘크리트로 지어진 집입니다.
하지만 내부는 차분한 노출 콘크리트와는 달리 화려하고 활기차게 꾸며져 있습니다.
패턴타일로 꾸민 벽면부터 다양한 그림 장식들 소품들까지 동네 분위기를 잘 표현하고 있습니다.
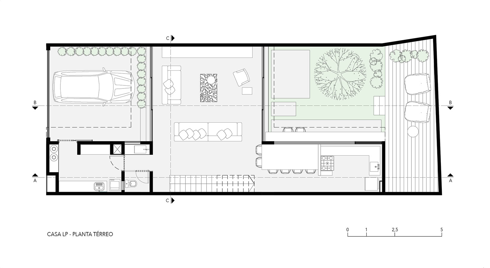
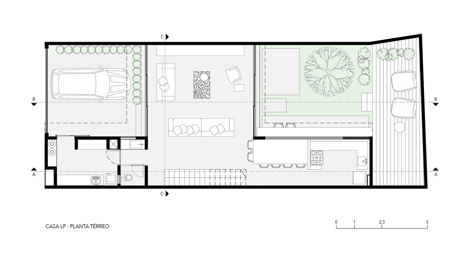
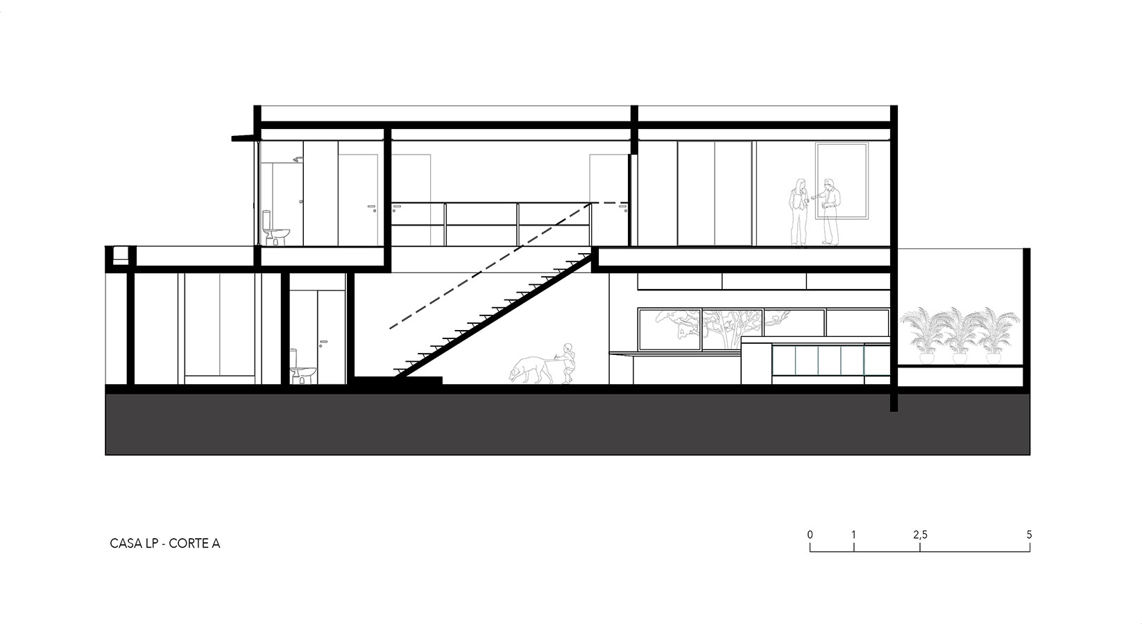
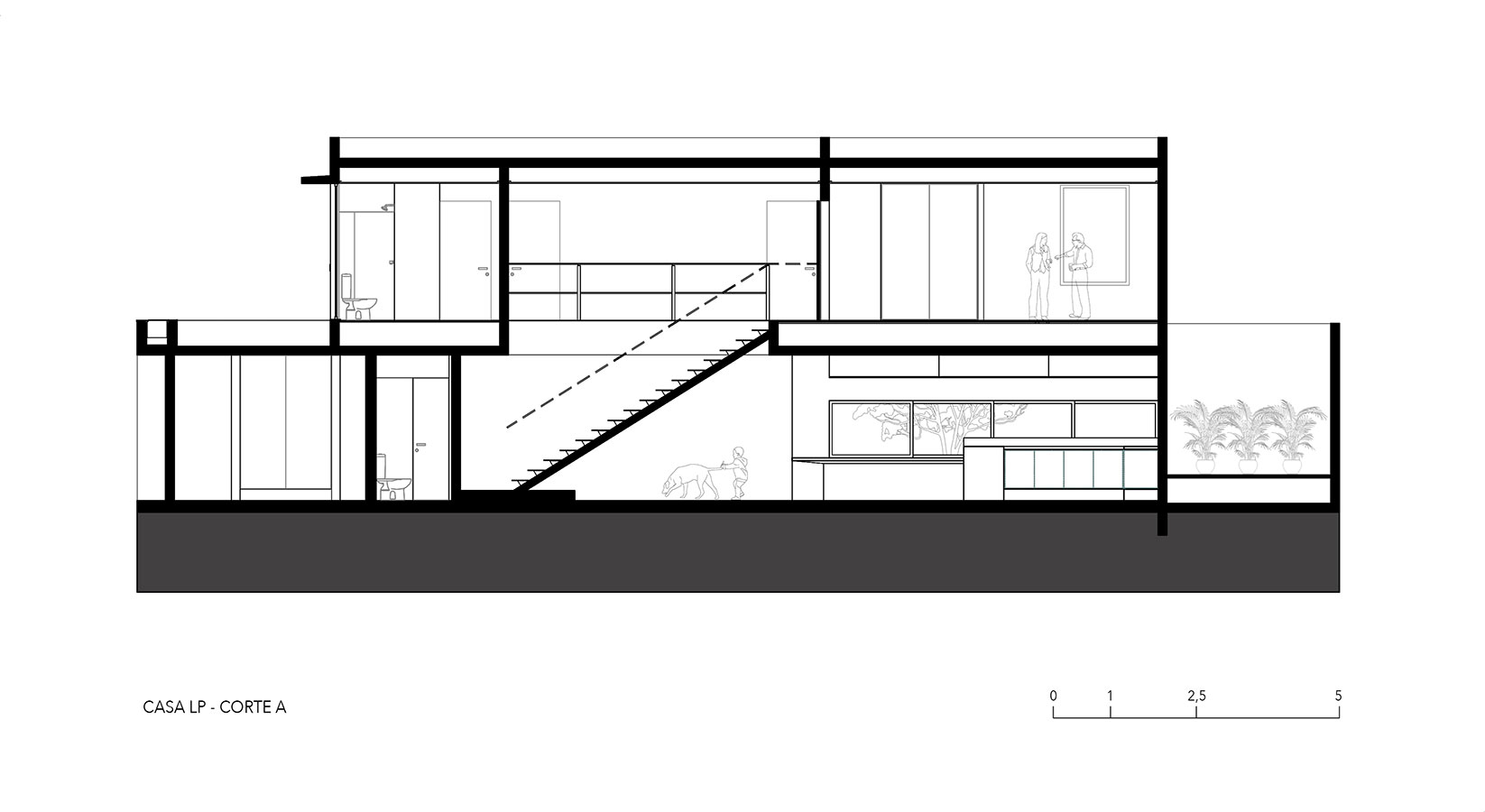
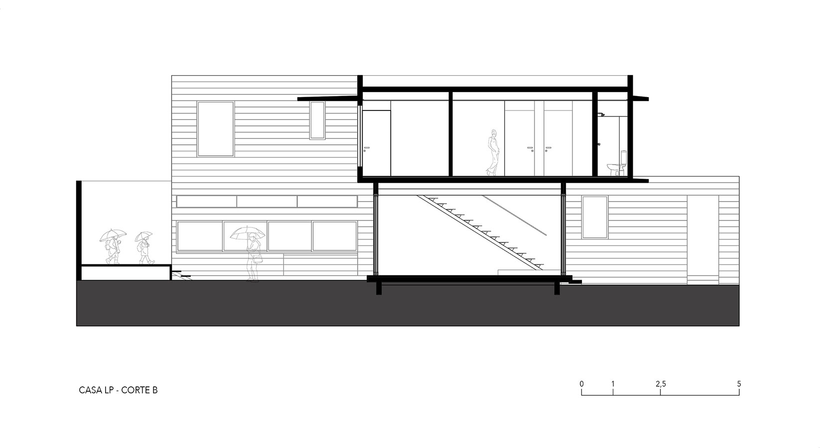
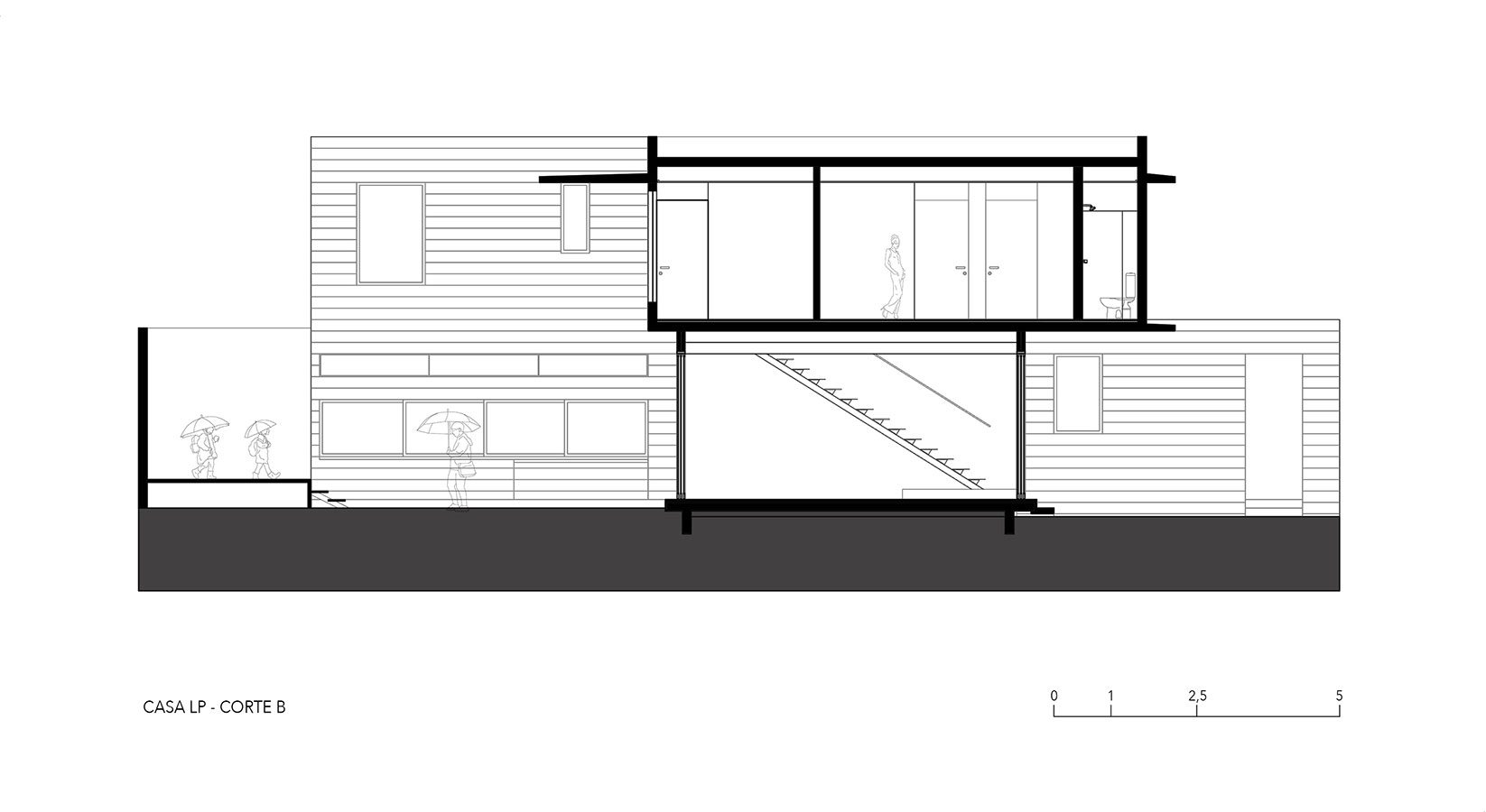
1층은 공용공간으로 주방과 다이닝룸이 중심이며 마당까지 오픈된 형태로 설계되었습니다.
개인공간은 2층에 위치하고 있으며 프라이버시를 잘 보호하고 있습니다.






















Architects _ luiz paulo andrade arquitetos
Year _ 2017
Location _ São Paulo, Brazil
Photographs _ Sidney Doll
'Space & Object (공간과 오브제)' 카테고리의 다른 글
| 공간을 자유롭게 변형할 수 있는 집 (0) | 2021.06.26 |
|---|---|
| 8개의 기둥 프레임으로 완성된 집! (0) | 2021.06.25 |
| 부부를 위한 커다란 방주! (0) | 2021.06.22 |
| 포틀랜드의 세련된 현대식 레지던스! (0) | 2021.06.21 |
| 순백의 미니멀 하우스! (0) | 2021.06.20 |