Ensayo LEVITA

이 집을 설명하려면 먼저 땅을 살펴보아야합니다.
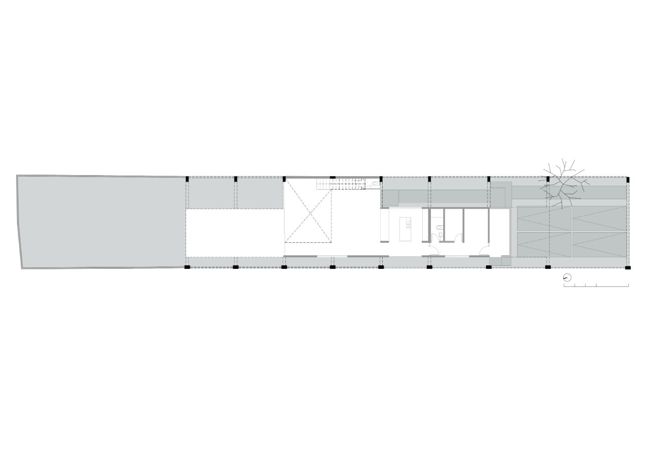
집이 건축된 땅은 가로 8.7m 세로 58.26m 의 세로로 굉장히 긴 직사각형의 당입니다.
이런 땅 때문에 8개의 4.5m 간격의 기둥 프레임이 활용되었습니다.
이 콘크리트 프레임은 다른 구조적 도움이 없이도 다양한 볼륨을 지지할 수 있습니다.
또한 이 프레임은 차후 집이 여러이유로 변형될 때도 굉장히 유용하고 쉬운 구조적 변형을 제공할 것입니다.
좁은 땅으로인한 채광과 환기의 문제를 옆면의 벽을 없애주어 해결하였습니다.
과감한 옆면의 벽제거를 통해 빛을 쉽게 받아들이고 환기가 매우 쉽도록 하였습니다.
시각적으로 거슬릴 수 있는 벽면은 식물을 통해서 해결해주었습니다.
집의 많은 부분이 노출콘크리트가 그대로 드러나며 전반적으로 그레이톤으로 형성되었습니다.
1층에 공용공간을 두고 2층에 개인 방들과 욕실을 두어 공간적 분리도 완벽하게 해주었습니다.




































Architects _ Bauen
Year _ 2020
Location _ Asunción, Paraguay
Photographs _ Daniel Ojeda
'Space & Object (공간과 오브제)' 카테고리의 다른 글
| 외관이 코르텐강으로 마무리 된 독특한 집! (0) | 2021.06.27 |
|---|---|
| 공간을 자유롭게 변형할 수 있는 집 (0) | 2021.06.26 |
| 무채색의 집에 화려한 인테리어가 돋보이는 집! (0) | 2021.06.23 |
| 부부를 위한 커다란 방주! (0) | 2021.06.22 |
| 포틀랜드의 세련된 현대식 레지던스! (0) | 2021.06.21 |