Brick Vault House

스페인 산타바바라에 위치한 하얀집은 초록색의 프레임이 눈에 띄는 집입니다.
사각형의 육면체 철골 프레임을 중심으로 화이트벽과 벽돌로 지어져있습니다.
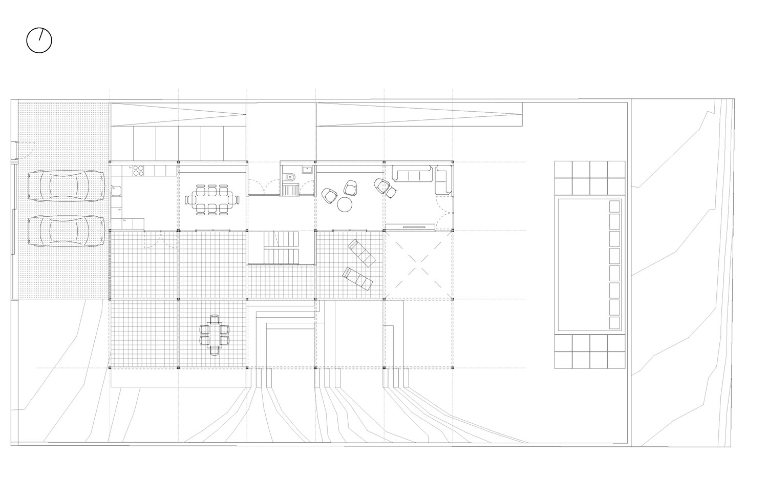
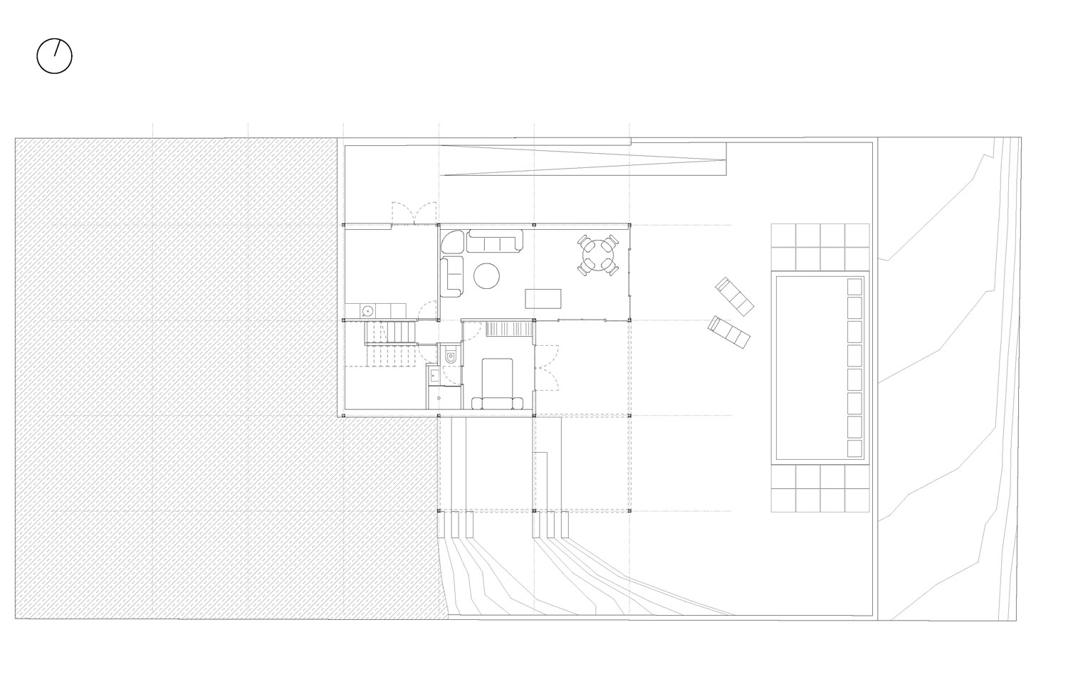
3층으로 된 집은 모듈로 인한 테라스의 연계 덕분에 안과 밖의 경계가 모호합니다.
제일 아래층에는 수영장을 향해 있는 침실 하나와 가족실이 그리고 2층에는 주방과 식당, 거실이
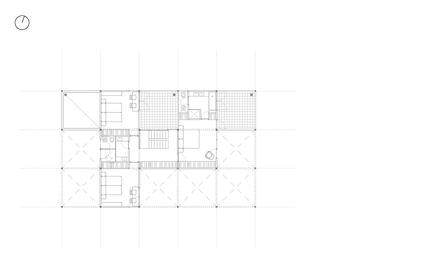
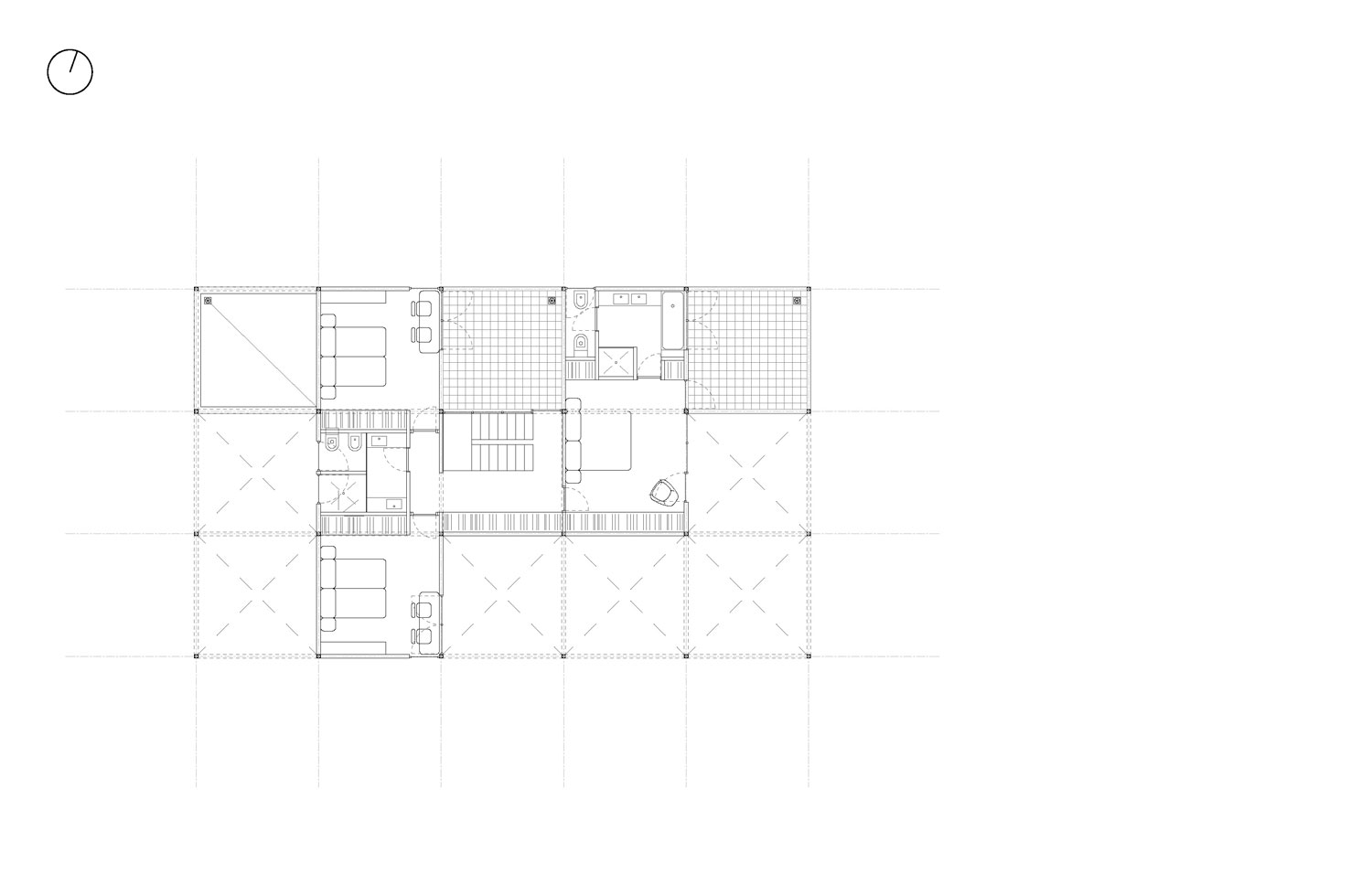
3층에는 침실과 욕실이 갖추어져 있습니다.
좀 독특한 점은 벽돌이 아치를 이루는 천장인데 1892년 미국에서 특허를 받은 구아스타비노
타일 아치 시스템입니다.
차후 철골 프레임으로 인해 주택의 확장이 용이한 특징이 있으며 콘크리트를 사용하지 않아
집의 탄소배출량 또한 매우 적은 수준입니다.
































Architects _ Space Popular
Year _ 2019
Location _ Valencia, Spain
Photographs _ Mariela Apollonio
'Space & Object (공간과 오브제)' 카테고리의 다른 글
| 엄마의 마음으로 만든 집! (0) | 2021.07.07 |
|---|---|
| 반층 리모델링의 놀라운 효과! (0) | 2021.07.06 |
| 3층 높이에 천고를 가진 집! (0) | 2021.07.04 |
| 자연과의 조화를 중요하게 생각하며 지어진 집! (0) | 2021.07.03 |
| 아치들이 돋보이는 아담한 집! (0) | 2021.06.30 |