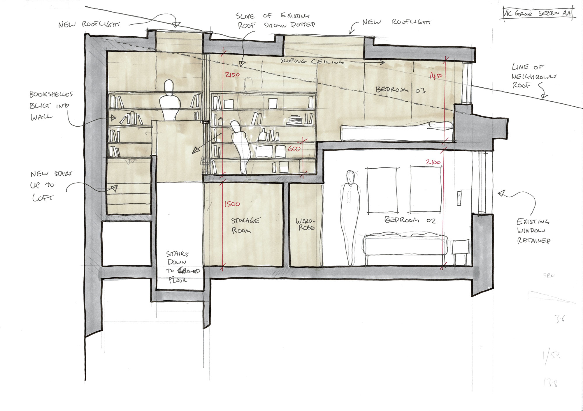
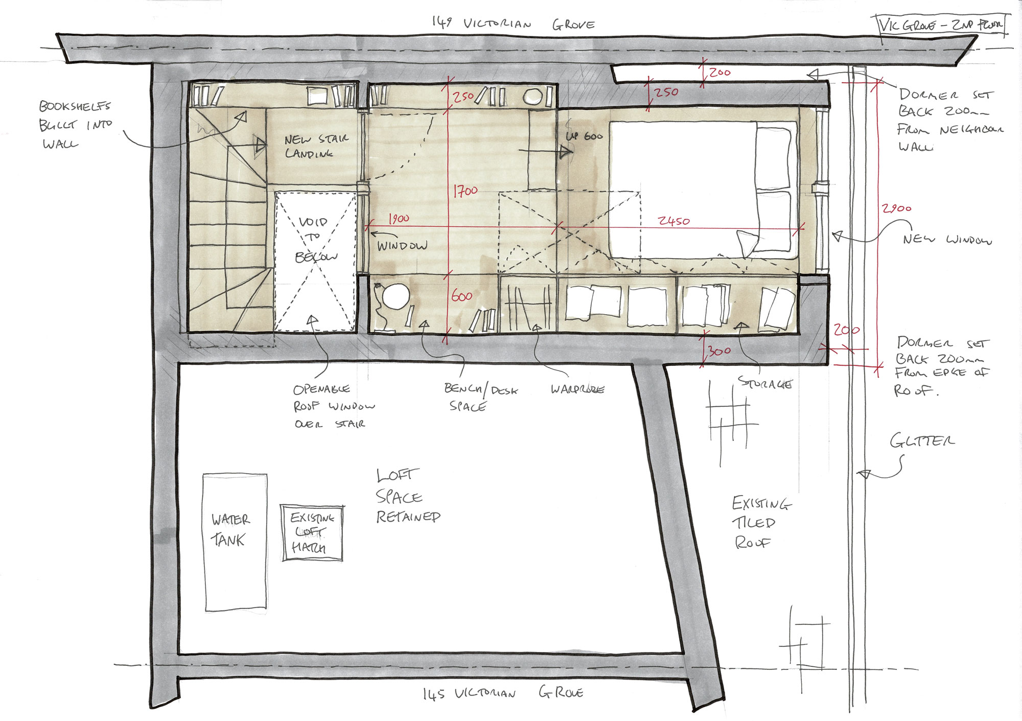
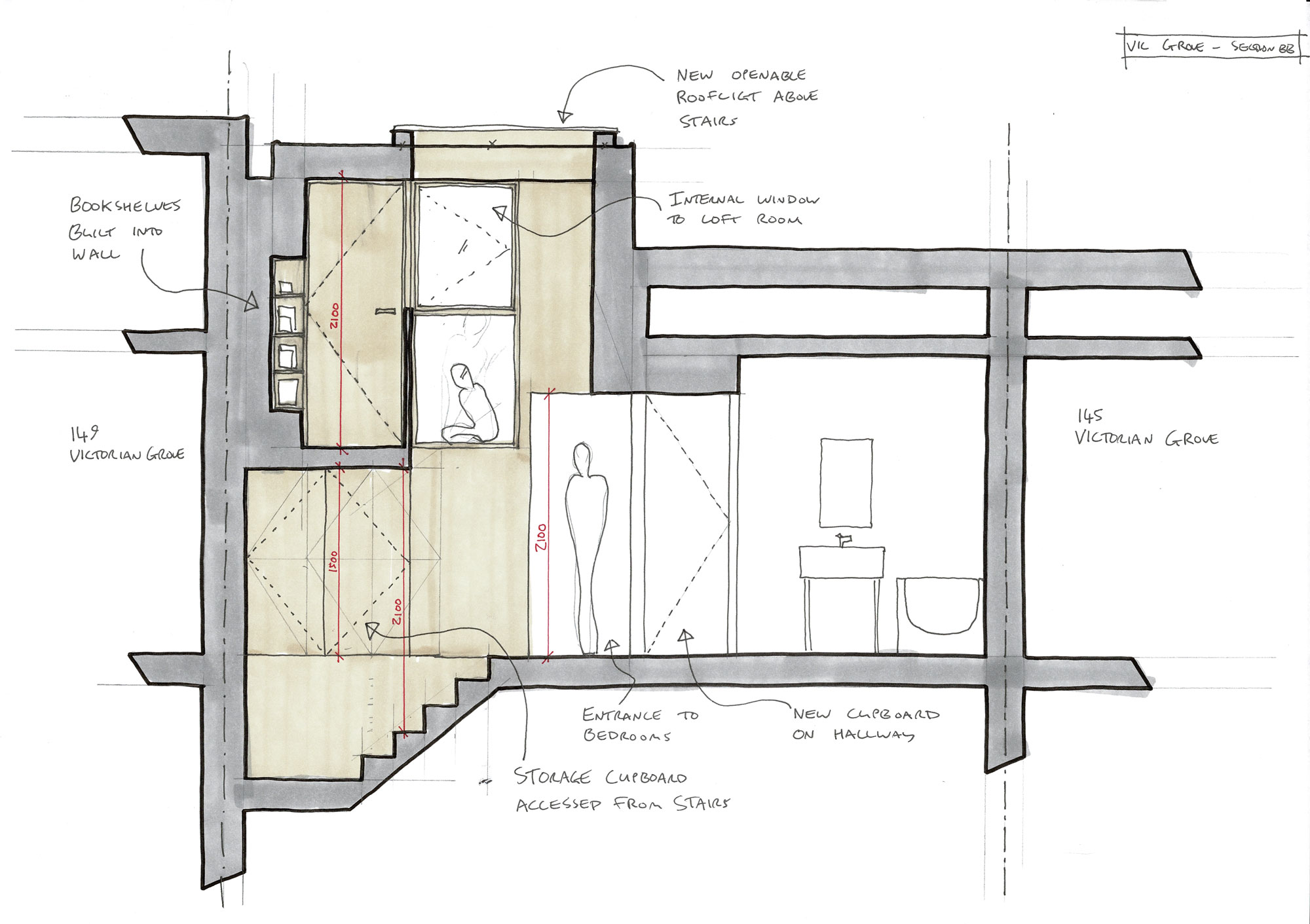
Two and a Half Storey House

지역의 도시계획 규제 때문에 층수를 증축할 수 없는 이 지역에 좋은 리모델리 사례입니다.
기존의 2층 주택에서 공간을 확보하기 위해 2층의 비활동 공간의 천장을 낮추고
법적으로 가능한 높이만큼 최대한 증축하여 새롭게 탄생한 집입니다.
턱이져서 높아진 공간에 침대를 두었으며 2층부터 2.5층으로 올라가는 부분과 새로생긴
2.5층에는 밝은 나무로 마감하여 따듯하고 아늑한 공간이 되었습니다.
또한 청장에 창을 내어 채광을 확보하고 있습니다.
이러한 시도는 같은 지역에서 제약을 받는 여러 집들에게도 좋은 본보기입니다.















Architects _ Bradley Van Der Straeten
Year _ 2020
Location _ London, UK
Photographs _ French and Tye
'Space & Object (공간과 오브제)' 카테고리의 다른 글
| 기능적으로 잘 분리되고 미래까지 생각한 집! (1) | 2021.07.08 |
|---|---|
| 엄마의 마음으로 만든 집! (0) | 2021.07.07 |
| 격자형 입체 구조가 모듈화된 독특한 집 (0) | 2021.07.05 |
| 3층 높이에 천고를 가진 집! (0) | 2021.07.04 |
| 자연과의 조화를 중요하게 생각하며 지어진 집! (0) | 2021.07.03 |