728x90
반응형
Semi Semi

토론토의 작은 코너 대지위에 지어진 두 채의 집입니다.
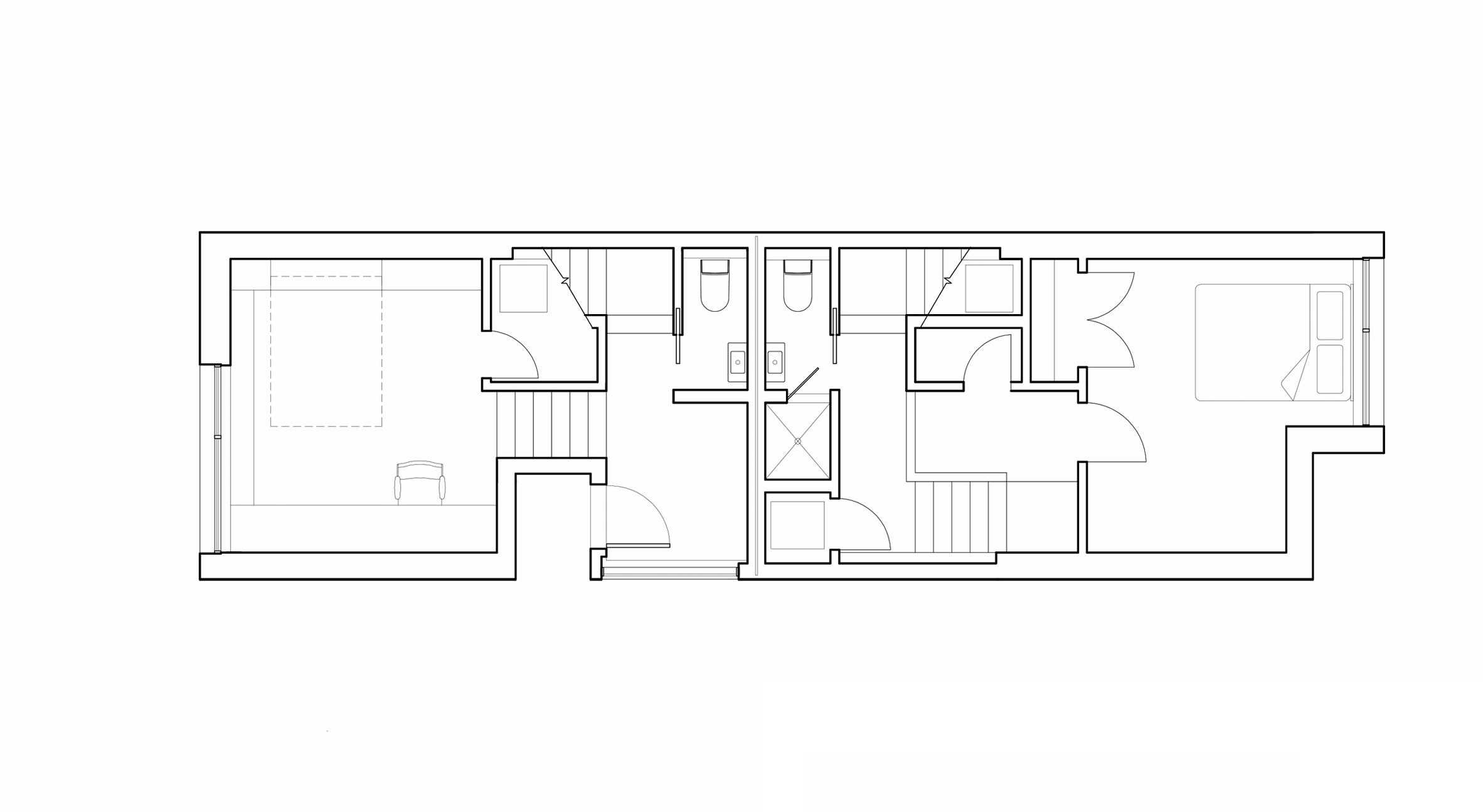
35평 땅에 지어진 28평 크기의 두 집은 효율적인 출입문 형성을 위해 각각 다른층에 출입문을 두었습니다.
3층의 스킵플로어 형태의 건물은 한곳은 1층에 다른 한곳은 2층에 출입문이 있습니다.
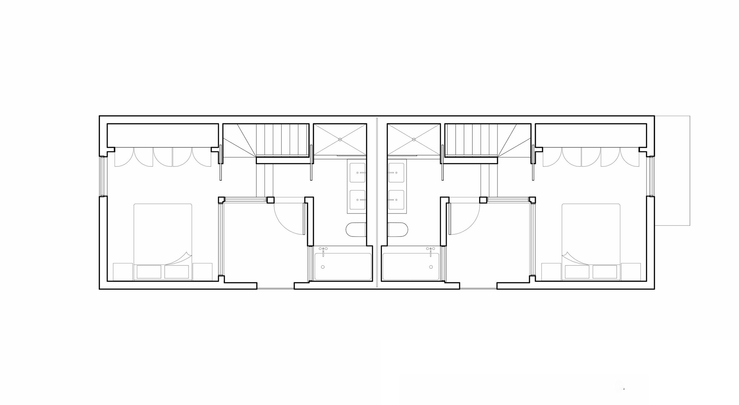
두집은 벽면 한쪽을 맞대고 있는데 욕실과 옷장 계단등을 맞대고 있어서
생활 소음으로부터 비교적 자유로울 수 있었습니다.
집이 서로 맞다아 있는 회색 패널 부분이 있고 각각의 건물은 양 옆의 흰색 건물입니다.
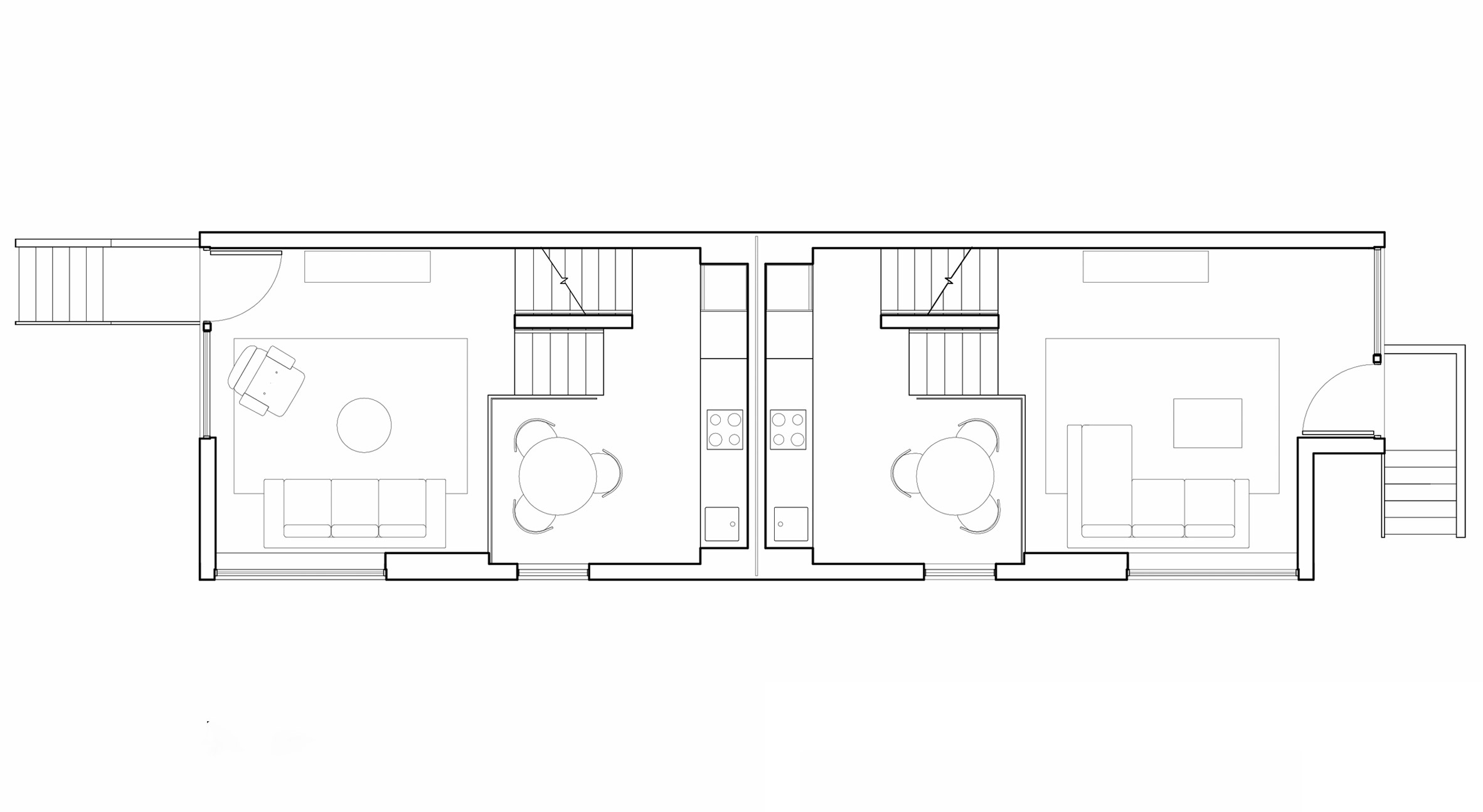
3층에 침실을 두고 2층에 거실과 주방을 그리고 1층은 각각 작업실과 작은방을 두었습니다.
내부는 전반적으로 화이트 톤의 인테리어를 중심으로 나무를 사용하여 온기를 더했습니다.
채광을 위해 내부에 개방형 계단을 두었고 큰 창과 타공 패널을 적절히 사용하였습니다.












Architects _ COMN Architects
Location _ Toronto, Canada
Photographs _ Doublespace Photography
728x90
반응형
'Space & Object (공간과 오브제)' 카테고리의 다른 글
| 목재 외장이 돋보이는 아늑한 집! (0) | 2021.07.13 |
|---|---|
| 숲과 호수로 둘러 쌓인 핀란드 전원주택 (0) | 2021.07.12 |
| 마감 되지 않은 거친 질감을 잘 살려낸 집! (0) | 2021.07.09 |
| 기능적으로 잘 분리되고 미래까지 생각한 집! (1) | 2021.07.08 |
| 엄마의 마음으로 만든 집! (0) | 2021.07.07 |