k41

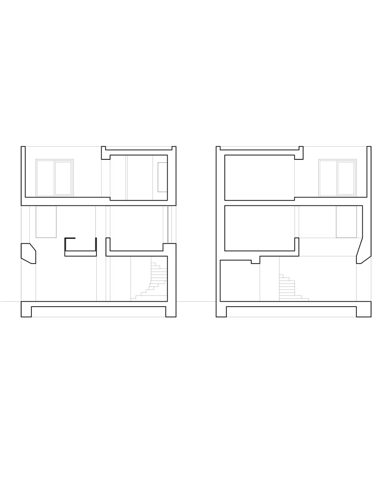
네덜란드 위트레흐트에 있는 작은 섬에 지어진 큐브 모양의 집입니다.
이 곳은 50여 개의 택지가 있는데 영어로 큐브 아일랜드인 섬에 집들을
큐브 모양으로 지어야만 하는 독특한 규정을 가지고 있습니다.
단독 주택의 규격은 9m x 9m x 9m 또는 10m x 10m x 10m 로만 지을 수 있습니다.
이 집은 9m 로 지어진 집입니다.
모두 같은 규격으로 지어져야 하지만 이 집은 굉장히 미니멀 하고 독특한 외관으로
다른 집들과 비교하여도 돋보이는 매력을 지니고 있습니다.
외관은 블랙 톤의 벽돌로 되어 있고 내부는 화이트 톤에 나무가 어울어져 깔끔한 인테리어입니다.





















Architects _ pasel.künzel architects
Year _ 2017~2020
Location _ Utrecht, Netherlands
Photographs _ Marcel van der Burg, Amsterdam
'Space & Object (공간과 오브제)' 카테고리의 다른 글
| 계획을 잘 갖춰 만들어진 협소주택! (0) | 2021.07.22 |
|---|---|
| 화이트 톤과 나무가 이상적으로 조화를 이룬 집! (0) | 2021.07.21 |
| 숲속 헛간 같은 스튜디오 겸 하우스! (0) | 2021.07.19 |
| 동양적인 여백의 미가 돋보이는 집! (1) | 2021.07.18 |
| 무채색을 중심으로한 인테리어 디자인 (0) | 2021.07.16 |