Camp O

건축가를 위한 주거 겸 스튜디오가 결합된 집입니다.
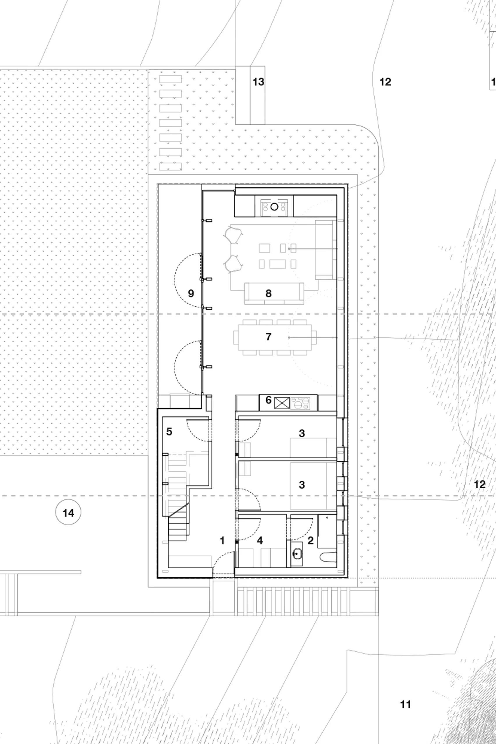
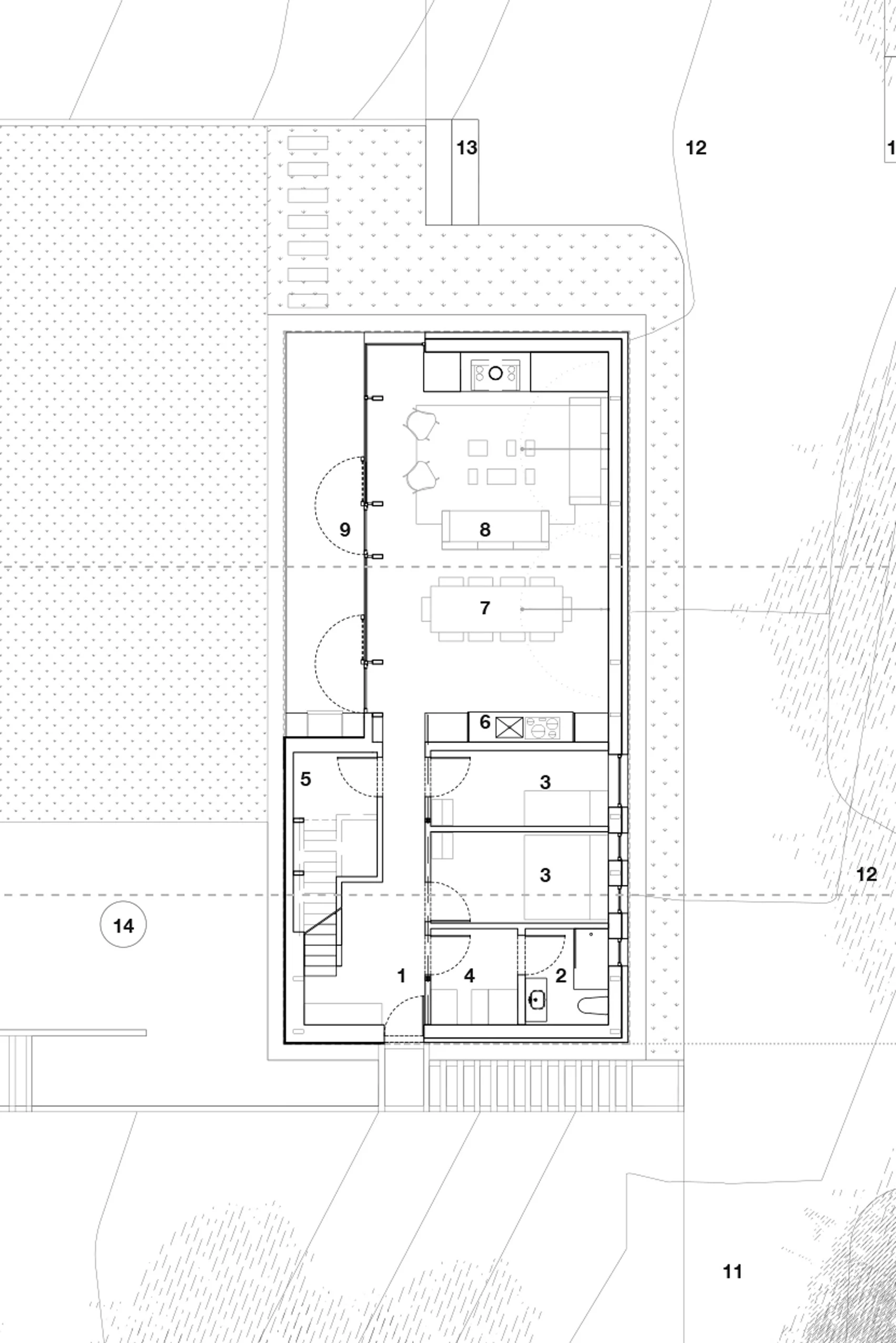
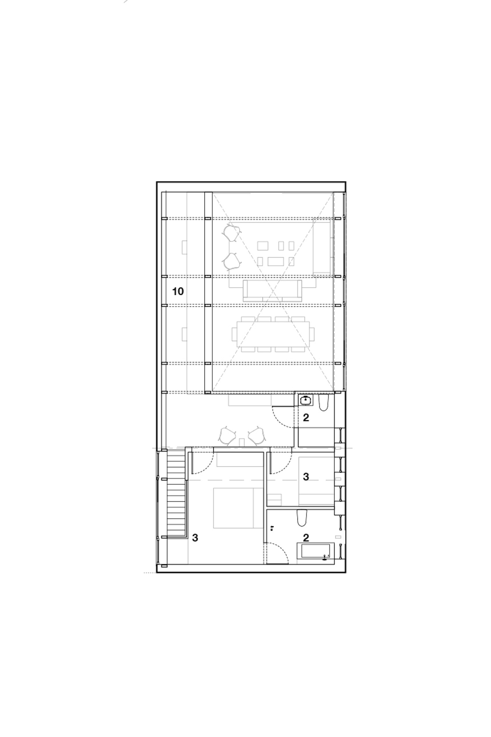
길고 좁은 대지에 지어진 헛간 같은 모양의 집은 단순한 모양이지만
그만큼 숲속에서 자연에 영향을 미치지 않기 위한 하나의 방법입니다.
두개의 볼륨이 서로 다른 방향으로 지붕을 기울여 맞대고 있습니다.
아래쪽 3면은 콘크리트로 그대로 노출되어 있습니다. 한 쪽 면은 유리로 되어 있고
위쪽에는 삼나무로 되어 있습니다. 나무 쪽도 마감 없이 건축 기둥과 볼트들이 그대로 보여집니다.
나무는 곤충이나 물과 불에 강하도록 일부러 그을려 사용하는 방법을 택했습니다.
보통주택의 천고보다 2배 정도 높은 천고 때문에 집이 넓고 시원해 보입니다.
전명과 일부 후면 창을 통해 충분한 채광이 확보되고 환기 또한 원활하게 할 수 있습니다.














Architects _ Maria Milans Studio
Location _ Catskills, USA
Photographs _ Montse Zamorano
'Space & Object (공간과 오브제)' 카테고리의 다른 글
| 화이트 톤과 나무가 이상적으로 조화를 이룬 집! (0) | 2021.07.21 |
|---|---|
| 미니멀한 큐브 하우스! (0) | 2021.07.20 |
| 동양적인 여백의 미가 돋보이는 집! (1) | 2021.07.18 |
| 무채색을 중심으로한 인테리어 디자인 (0) | 2021.07.16 |
| 타워형 침실을 가진 화이트 하우스! (0) | 2021.07.15 |