Casa SD

화이트 벽돌로 심플하게 디자인된 스페인의 집입니다.
외부 디자인과 내부 인테리어 모두 화이트 톤을 중심으로
밝은톤의 나무가 보조를 이루는 디자인입니다.
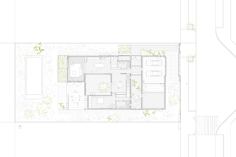
이 집의 핵심은 중정에 있습니다.
주변에 뛰어난 경관이 없으므로 중정을 만들어 집의 중심이
중정으로 쏠리도록 한 것이 설계의 포인트입니다.
중정을 중심으로 거실, 침실, 주방들이 둘러져 있고 서로 연결되어 있지만
확실한 경계를 두어 공간의 특징들을 살려두었습니다.
곳곳에 테라스를 많이 배치하여 내부와 외부의 연결성을 강화하였습니다.





























Architects _ Escribano Rosique architects
Year _ 2020
Location _ Valladolid, Spain
Photographs _ Juan Carlos Quindos
'Space & Object (공간과 오브제)' 카테고리의 다른 글
| 건축가의 공간으로 재탄생한 집!!! (0) | 2021.07.24 |
|---|---|
| 계획을 잘 갖춰 만들어진 협소주택! (0) | 2021.07.22 |
| 미니멀한 큐브 하우스! (0) | 2021.07.20 |
| 숲속 헛간 같은 스튜디오 겸 하우스! (0) | 2021.07.19 |
| 동양적인 여백의 미가 돋보이는 집! (1) | 2021.07.18 |