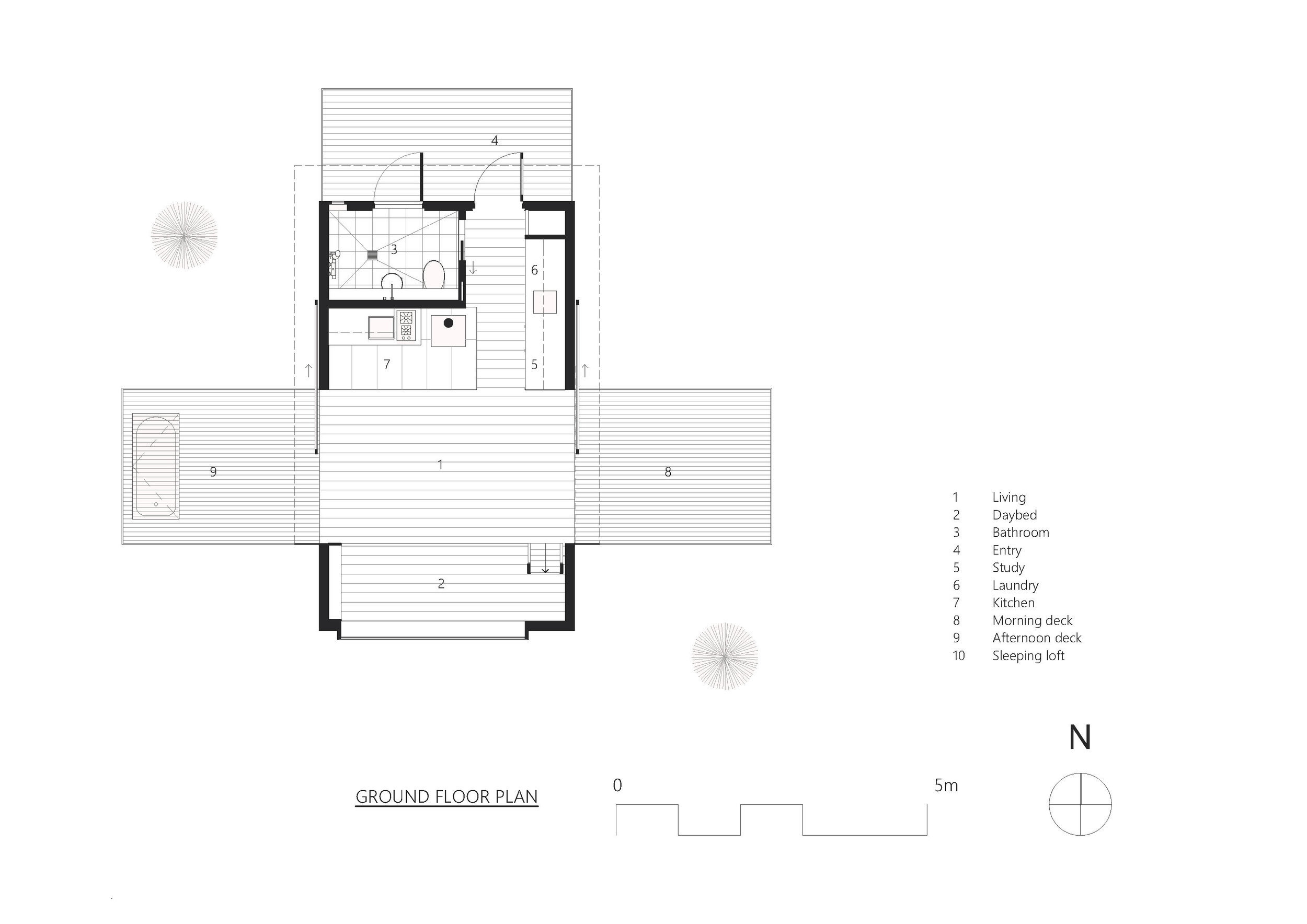
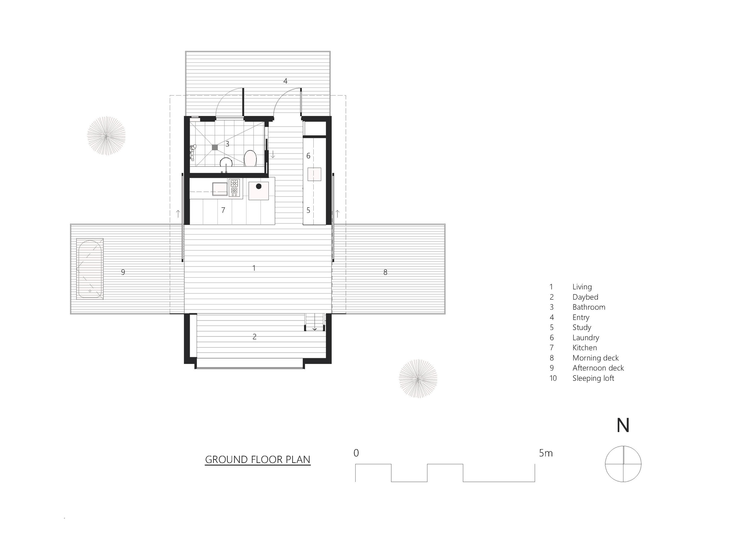
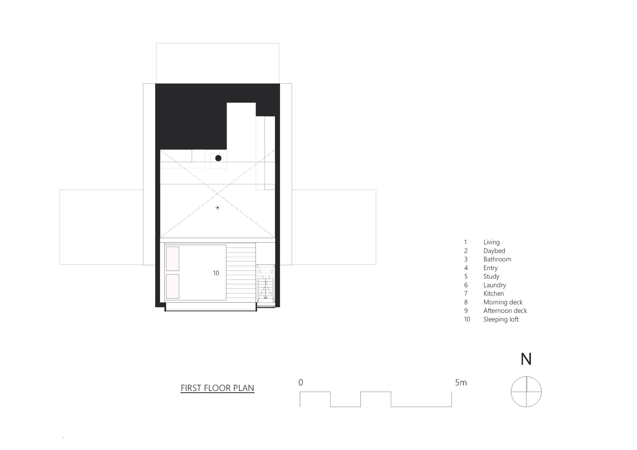
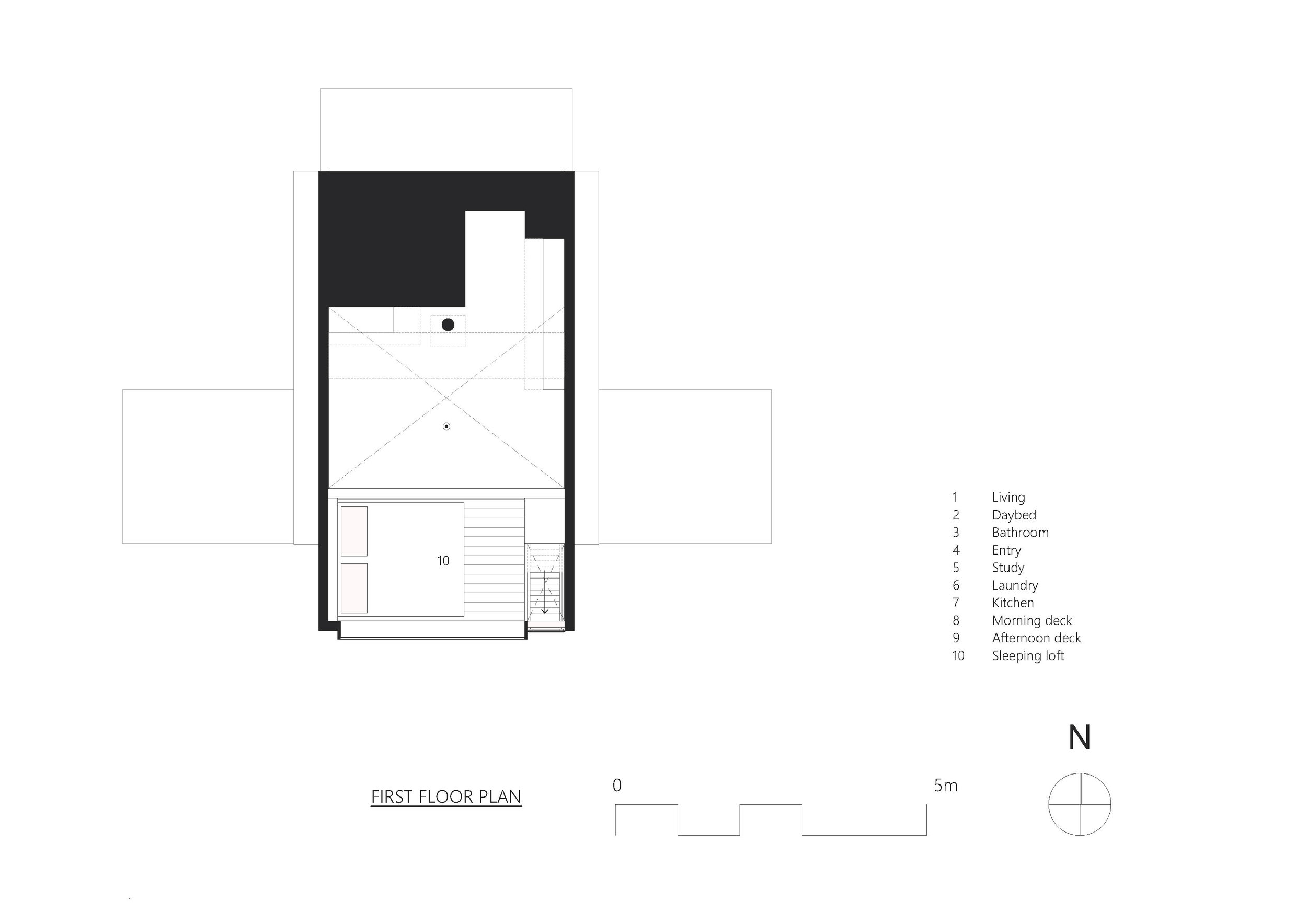
BRUNY ISLAND HIDEAWAY

호주 최남단 태즈매니아의 브루니 섬에 위치한 아주 작은 숙소입니다.
오지에 지어져 있어서 수도나 전기 가스등을 가져 올 수 없는 곳에 있어
자체적으로 해결할 수 있도록 빗물 집수 시설과 태양광 발전시설, 장작 난로, 가스 온수기가 설치되었습니다.
특히 지붕의 각도를 주면서 태양광 패널을 설치해 햇빛을 잘 받을 수 있도록 하였습니다.
외부는 불에 강한 자재를 사용하였으며 산불에 강한 목재를 사용하였습니다.
내부는 전반적으로 밝은 톤의 목재를 사용하여 따뜻하고 아늑한 느낌이 들도록 하였습니다.
특히 창문은 반투명 유리를 사용하였는데 이는 프라이버시를 보호하면서 숲속의 산새들이 부딪히는 것도 방지하고 있습니다.
오지에서 아늑하게 하루를 보낼 수 있는 아름다운 숙소입니다.



















Architects _ Maguire and Devine Architects
Year _ 2017
Location _ Tasmania, Australia
Photographs _ Rob Maver
'Space & Object (공간과 오브제)' 카테고리의 다른 글
| 미니멀한 노출콘크리트 집! (0) | 2021.08.12 |
|---|---|
| 디자인과 색이 전혀 다른 두 볼륨이 결합된 주택! (0) | 2021.08.11 |
| 도시 인근 숲속에 자리잡은 캔틸레버 하우스! (1) | 2021.08.09 |
| 바위속에 자리한 자연과 하나된 집! (0) | 2021.08.08 |
| 대지의 모양을 적극 활용한 집! (0) | 2021.08.07 |