Afra House

블랙과 화이트의 대조를 이루고 있는 모던한 주택입니다.
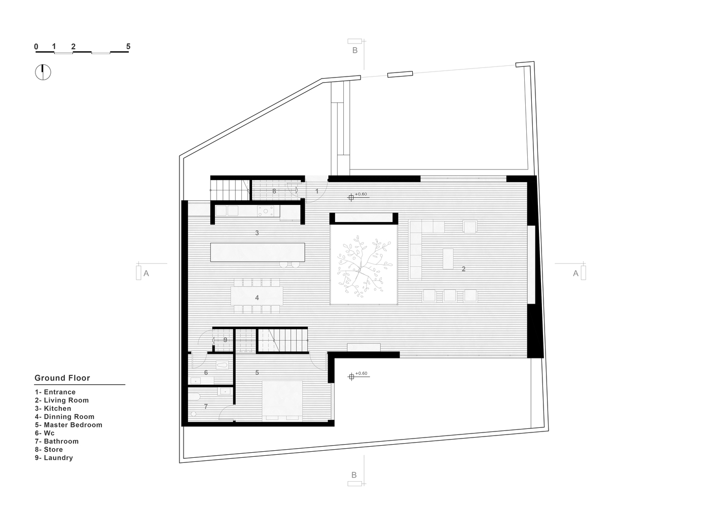
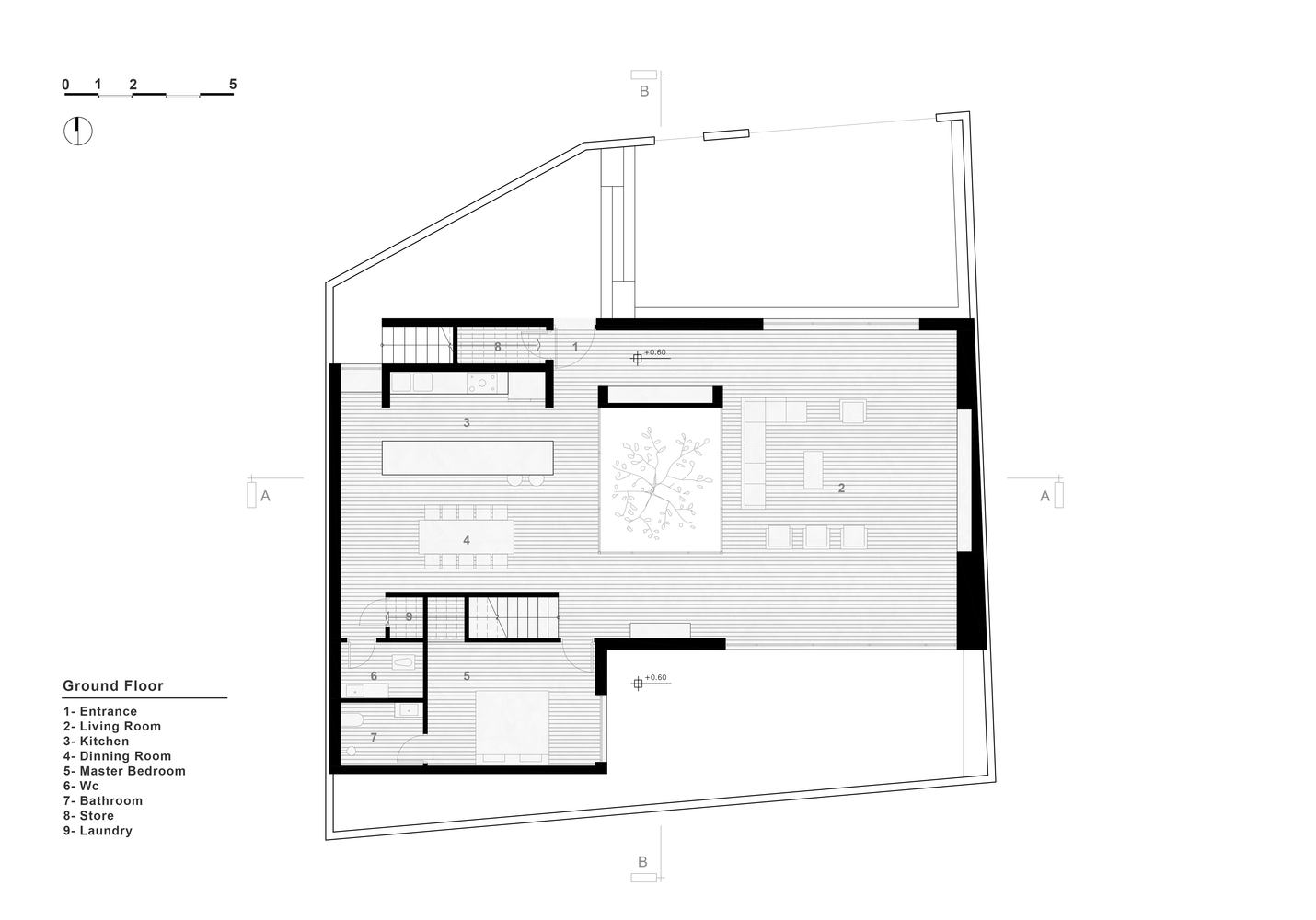
사생활을 중요하게 생각하는 건축주의 의견을 반영하여 공간 분리가 설계의 중요한 포인트 였습니다.
그리하여 사각박스 형태의 화이트 볼륨에는 공용공간인 거실과 테라스가 들어섰고
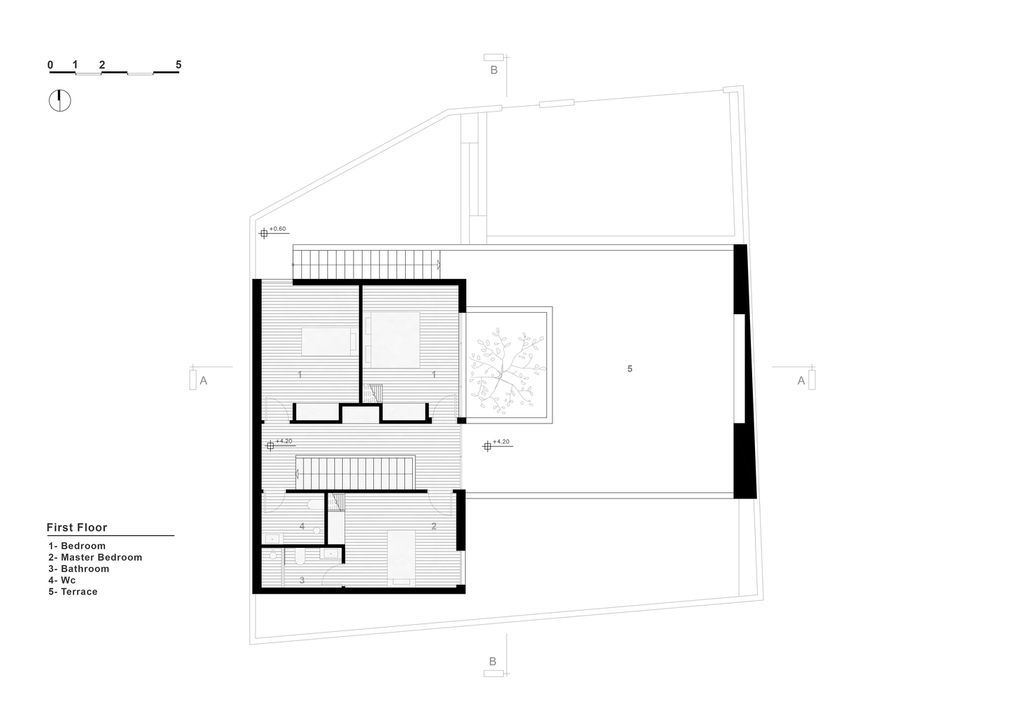
박공지붕 모양의 블랙 볼륨에는 침실과 욕실의 개인 공간이 들어섰습니다.
그리고 두 볼륨이 겹치는 공간에는 준공용공간인 주방과 식당이 배치되었습니다.
공용공간과 준공용공간을 분리하는 역할을 하며 채광도 확보하는 중정이 두 공간사이에 놓여 있습니다.
중정 안에는 단풍나무가 한 그루 서있는데 그 단풍나무를 이곳 사투리로 'Afra'라고 합니다.
인테리어는 화이트 톤이 중심이며 포인트로 약간의 블랙과 나무가 사용되었습니다.






























Architects _ DAAL Studio
Year _ 2019
Location _ ROYAN, IRAN
Photographs _ Deed Studio
'Space & Object (공간과 오브제)' 카테고리의 다른 글
| 다뜻한 느낌의 화이트 주택! (0) | 2021.08.13 |
|---|---|
| 미니멀한 노출콘크리트 집! (0) | 2021.08.12 |
| 오지에 지어진 미니멀한 숙소! (0) | 2021.08.10 |
| 도시 인근 숲속에 자리잡은 캔틸레버 하우스! (1) | 2021.08.09 |
| 바위속에 자리한 자연과 하나된 집! (0) | 2021.08.08 |