House 4AK

남아프리카공화국 케이프타운에서 동쪽으로 약 70km 떨어진 대서양 연안 마을 클라인몽드에 위치한 하얀 벽돌집입니다.
이 집은 남아프리카 고유의 식물종인 핀보스로 조경을 한 것이 특징입니다.
디자인 컨셉 또한 핀보스 정원을 뚫고 올라온 벽돌집이라는 컨셉으로 설계되었습니다.
예산이 넉넉하지 않아 현지에서 가장 구하기 쉬운 재료인 벽돌과 콘크리트를 사용하여 지어졌습니다.
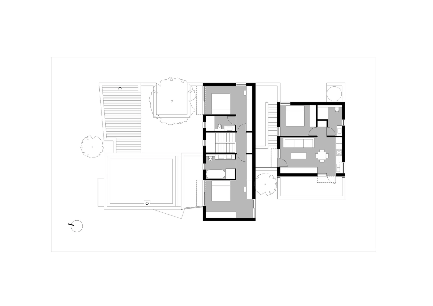
ㄷ자로 설계된 집은 안쪽의 마당이 각 구역의 상호작용을 활발하게 도와줍니다.
특히 공용공간인 거실과 주방 식당에서 안마당으로 쉽게 공간이 확장되도록 설계한 것이 이 집의 특징입니다.
2층의 방이 있는 공간은 1층 현관의 처마역할도 하고 있습니다.
외관은 벽돌이지만 화이트로 도색되어 질감은 거칠지만 깨끗한 느낌을 주고 있습니다.
내부 역시 화이트 벽돌이 주벽을 이루고 천장은 노출 콘크리트입니다.
내부는 온종일 천창을 통해 빛이 움직이며 채광을 확보해줍니다.





















Architects _ SWANSILVA ARCHITECTURE
Year _ 2019
Location _ Kleinmond, Republic of South Africa
Photographs _ Markus Jordaan / Epitome Studios
'Space & Object (공간과 오브제)' 카테고리의 다른 글
| 빛과 그림자로 하나의 작품이 되는 집! (1) | 2021.10.10 |
|---|---|
| 경치도 생활도 2가지로 활용 가능한 집! (0) | 2021.10.09 |
| 다양한 질감으로 재미를 더한 집! (0) | 2021.10.07 |
| 도서관을 집안으로 들여온 소통형 가족공간이 확보된 집! (0) | 2021.10.06 |
| 미완성을 설계와 골조의 완벽함으로 커버한 집! (0) | 2021.10.05 |