728x90
반응형
CASA ST

볼리비아 산타크루즈의 주택단지에 지어진 주택입니다.
강 기둥과 보로 이루어진 주택은 도로쪽 전면은 창문없이
붉은 벽돌로 마감하여 프라이버시를 보호하고
뒷쪽은 기둥을 제외한 부분을 유리로 마감하여 정면과는 상반되게
시각적으로도 개방되고 형태도 개방형으로 설계되어
집에서부터 마당까지 하나의 연결성을 가져가도록 설계되었습니다.
외부는 블랙의 기둥과 붉은 벽돌이 조화롭고 내부는 블랙 기둥에
콘크리트각 그대로 노출된 그레이 톤이 잘 어울어지게 디자인 되었습니다.
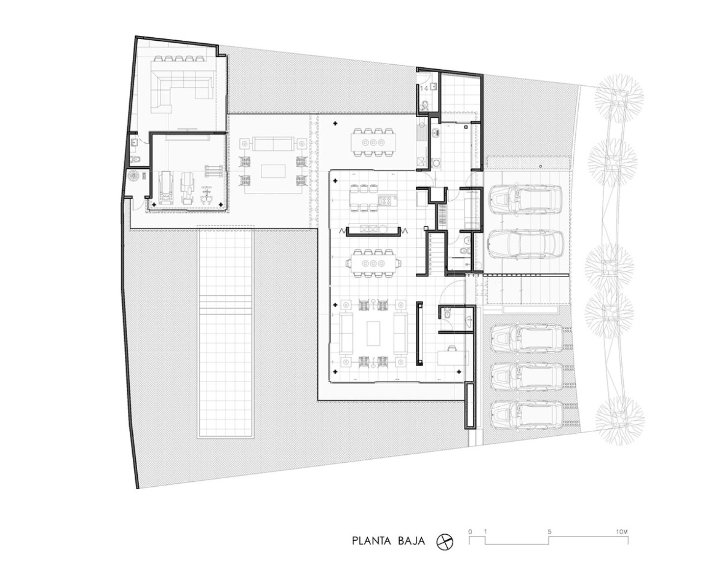
개방형 1층에는 거실과 주방 외부공간으로 구성되었고
2층에 오피스 공간과 여러 방들이 일렬로 배치되어 있습니다.









Architects _ Sommet
Year _ 2018
Location _ Santa Cruz, Bolivia
Photographs _ Cristobal Palma
728x90
반응형
'Space & Object (공간과 오브제)' 카테고리의 다른 글
| 숲속의 까만집! (0) | 2022.01.07 |
|---|---|
| 은퇴한 부모를 위해 건축가 아들이 만든 집! (0) | 2022.01.06 |
| 제주도 감성 스테이 소개 4탄 (시절인연/오오오하우스/말로나) (0) | 2022.01.04 |
| 중정이 돋보이는 지속가능한 주택! (0) | 2021.12.27 |
| 색대비를 통해 모던함을 만들어낸 주택! (1) | 2021.12.21 |