House COVE(R)

기존의 2층 주택을 그대로 두면서 새로운 건물을 지어 집을 좀 더 확장시키는 프로젝트입니다.
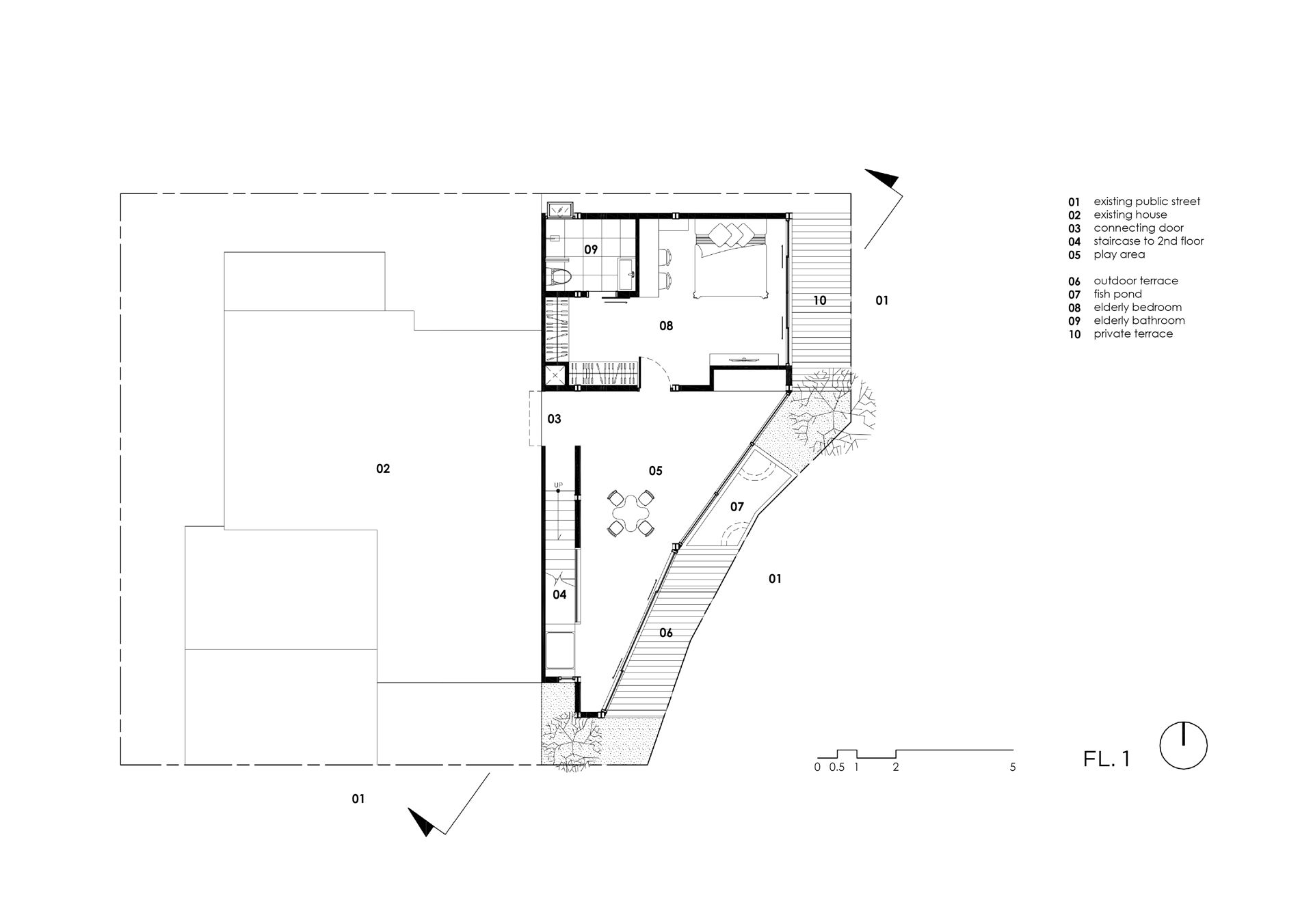
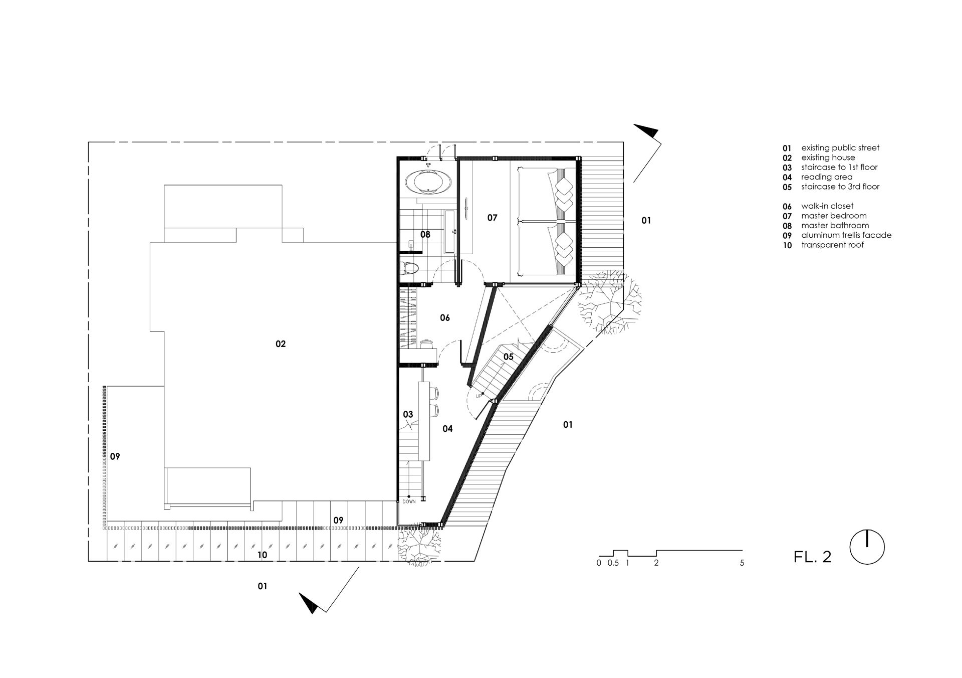
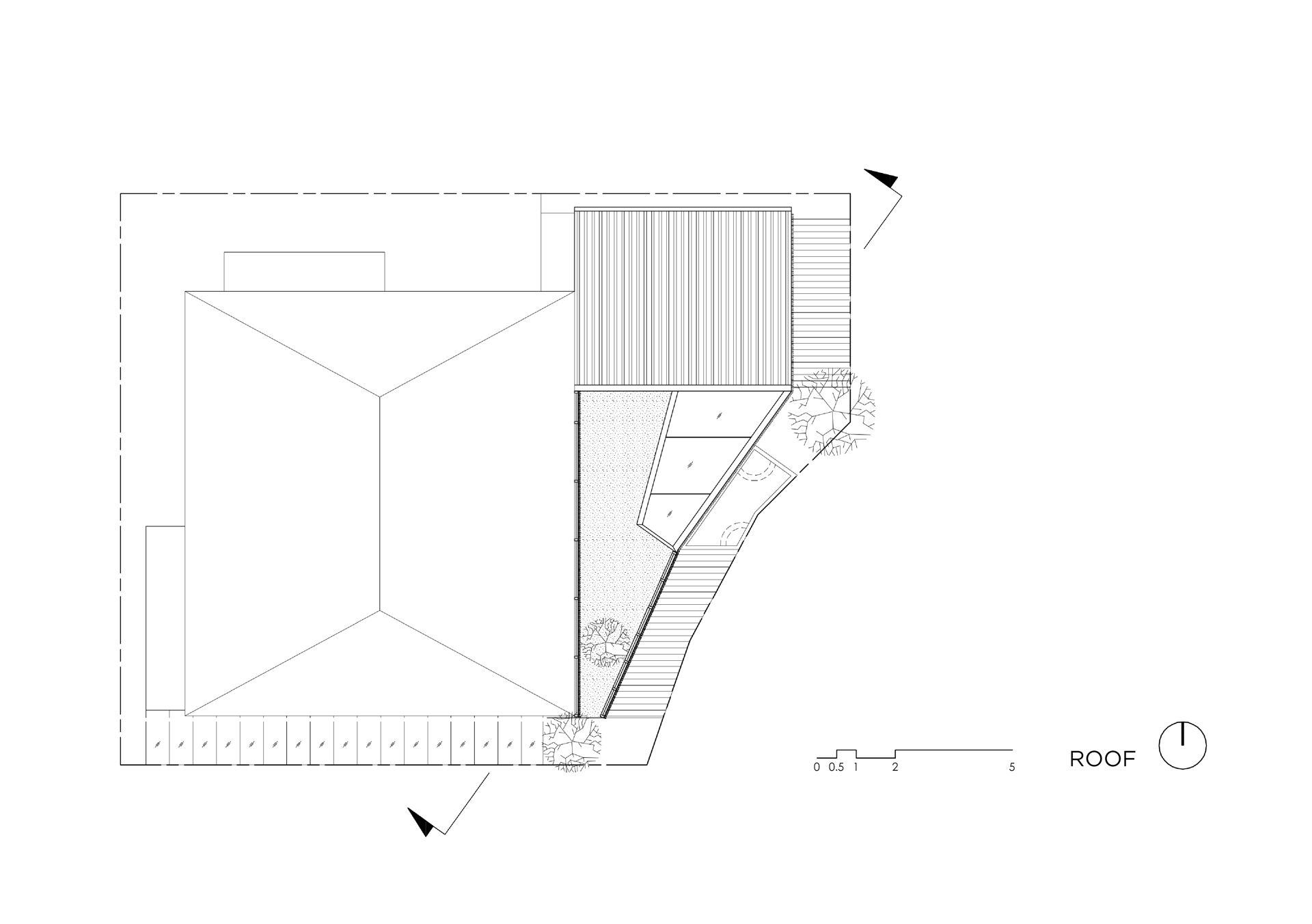
원래 있던 주택에 확장 형태여서 남은 짜투리 공간에 집을 올리는 것이라 삼각형 모양의 땅으로 인해
삼각형 모양의 새로운 주택이 탄생하였습니다.
3층의 작은 하얀 집이 새로 지어졌으며 공간의 작기 때문에 3층으로 지어 졌습니다.
하나의 집으로 통일감을 주기위해 기존에 집에는 하얀 각재 파이프가 새롭게 입혀졌습니다.
새로운 집은 기존의 마당에 새워졌기 때문에 마당 공간 확보를 위해 새로운 집의 옥상을 활용하여
마당을 만들어 주었으며 계단을 양쪽으로 배치해 이동이 자연스럽게 순환될 수 있도록 하였습니다.
인테리어도 외관이 연장된 화이트 톤이며 포인트로 나무를 사용하여 따뜻함을 더해주었습니다.









































Architects _ TOUCH Architect
Year _ 2021
Location _ Samutprakan, Thailand
Photographs _ Anan Naruphantawat
'Space & Object (공간과 오브제)' 카테고리의 다른 글
| 모서리가 없는 집! (0) | 2021.06.09 |
|---|---|
| 오래 전부터 이곳에 있던 바위 같은 집! (1) | 2021.06.08 |
| 과거와 현대를 이어주는 집! (0) | 2021.06.06 |
| 층별로 용도가 확실히 다른 집! (1) | 2021.06.05 |
| 미술관처럼 리모델링 된 시골집! (0) | 2021.06.04 |