CASA AA

빨간 벽돌 베이스에 모서리가 둥근 화이트 볼륨이 올라간 매력적인 집입니다.
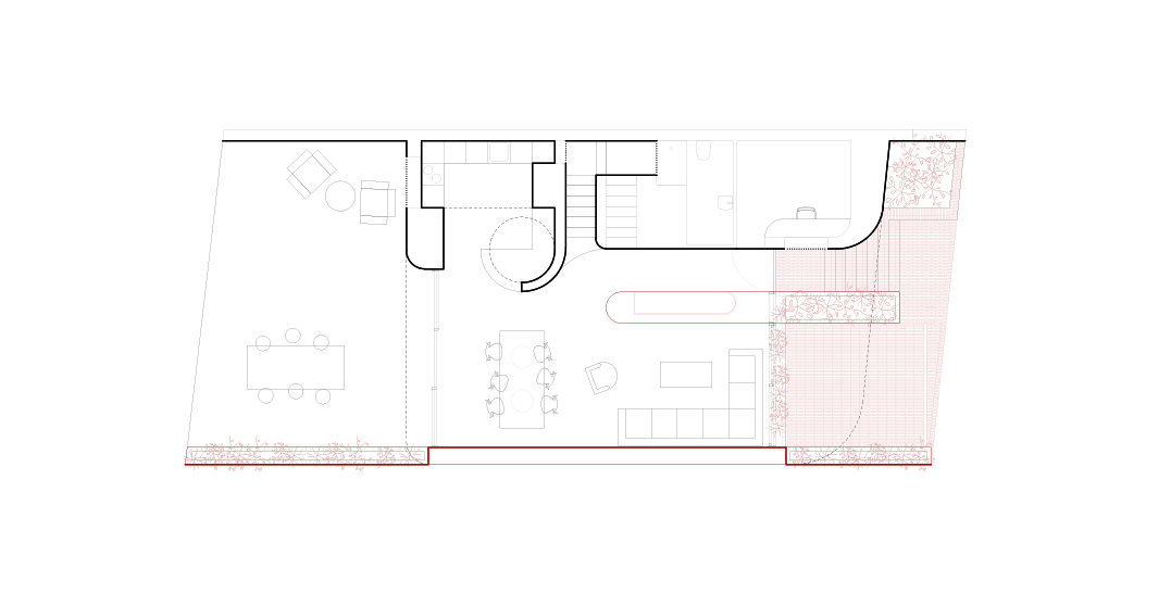
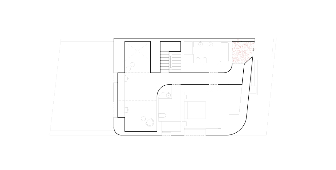
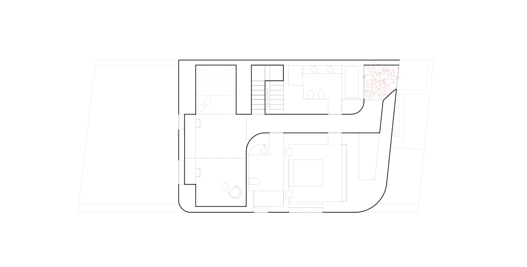
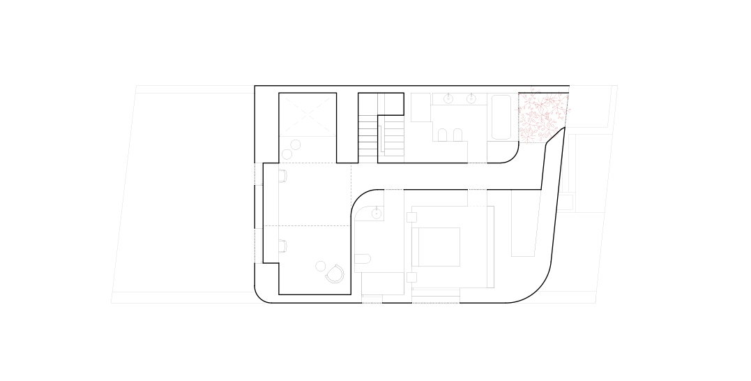
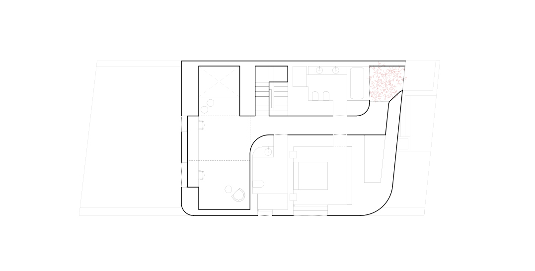
집의 보이는 면들은 어느 것이 주된 면이 없도록 각 면의 모서리를 없앤 것이 특징입니다.
모서리를 없애줌으로써 연속적인 느낌이 들도록 하였고 주변환경의 일부인 것처럼 디자인 되었습니다.
내부의 디자인도 외부의 연장선으로 톤도 화이트 톤으로 디자인 되었고
포인트 컬러로 버건디 컬러가 사용되어 외관과 흡사한 느낌을 주고 있습니다.
또한 내부에도 직선과 함께 곡선을 적절히 사용하여 외관 디자인과 유사한 느낌을 주고 있으며
더 넓어 보이는 효과도 주고 있습니다.
어떠한 면도 우선시 하지 않는 디자인 철학이 만들어낸 매력적인 집입니다.



























Architects _ HORMA studio
Year _ 2021
Location _ Valencia, Spain
Photographs _ Mariela Apollonio
'Space & Object (공간과 오브제)' 카테고리의 다른 글
| 독특한 집이 컨셉인 집! (0) | 2021.06.13 |
|---|---|
| 직선 구조를 활용해 건축비를 낮춘 집! (0) | 2021.06.11 |
| 오래 전부터 이곳에 있던 바위 같은 집! (1) | 2021.06.08 |
| 하얀 집으로 재탄생한 주택! (0) | 2021.06.07 |
| 과거와 현대를 이어주는 집! (0) | 2021.06.06 |